|
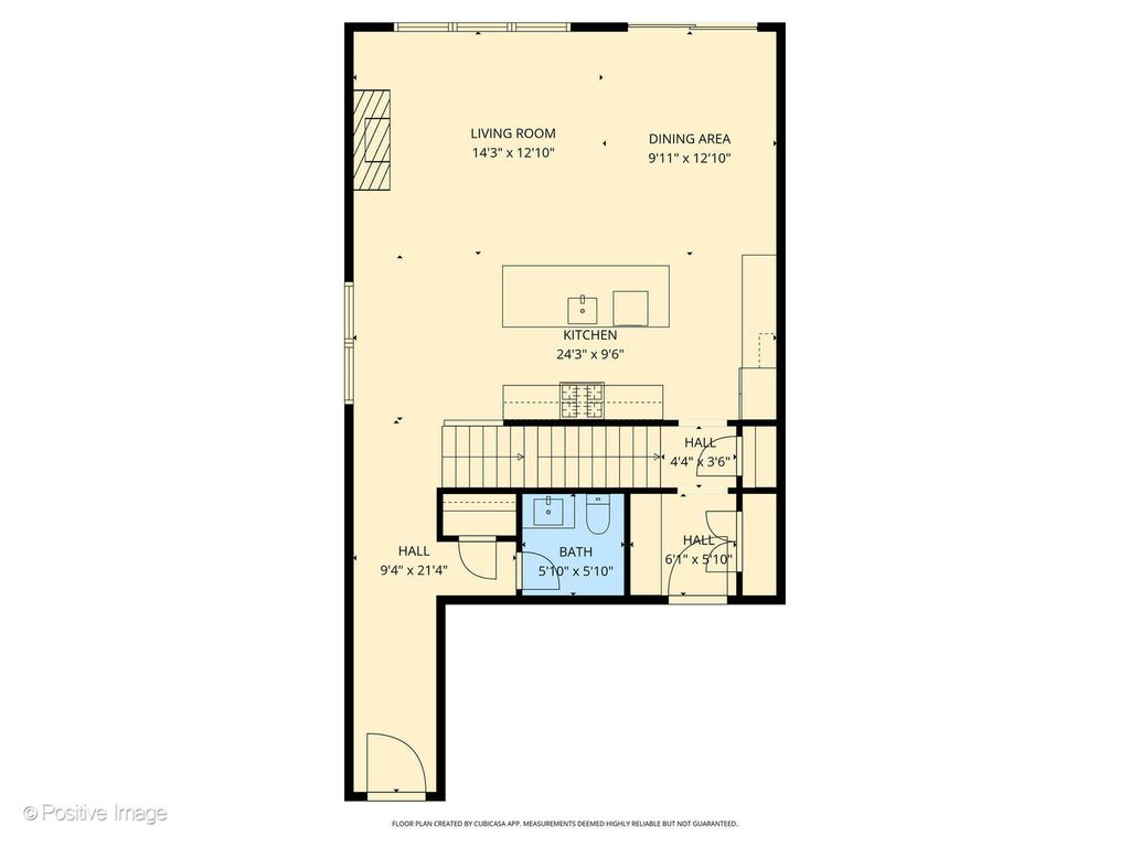
This stunning new construction duplex offers all the amenities of a single-family home, perfectly situated in the heart of Elmhurst. Designed by a local luxury home builder, this project is sure to impress with its modern finishes and functional layout, catering to the most discerning buyers. The main level showcases an open concept living space, ideal for entertaining. The high-end kitchen is magazine-worthy, featuring quartz countertops, Wolf/Subzero appliances, a custom hood, and a stylish zelige tile backsplash. The living room shines with white oak flooring, large windows, and a cozy gas fireplace. Adjacent to the dining space, a sliding door opens directly onto a concrete patio and a fully fenced backyard, perfect for outdoor enjoyment. Additional main level features include a spacious mudroom, pantry, powder room, and coat closet. An attached two-car garage adds further convenience. Upstairs, each of the three bedrooms includes an en suite bathroom. The primary suite is a true retreat with a spa-like bathroom, complete with a soaking tub, oversized shower, and double vanity. Custom his-and-her walk-in closets are an unexpected surprise. The second floor also houses a dedicated laundry room. The fully finished basement offers endless possibilities. With a wet bar, spacious recreation room, ample storage, and a full bathroom, it provides flexible space for a family room, exercise area, or playroom. Centrally located in downtown Elmhurst with parks and excellent schools nearby, this home provides easy access to shopping, dining, entertainment, and public transit, making it a prime location for vibrant urban living.
| DAYS ON MARKET | 3 | LAST UPDATED | 1/29/2026 |
|---|---|---|---|
| YEAR BUILT | 2025 | COMMUNITY | Elmhurst |
| GARAGE SPACES | 2.0 | COUNTY | DuPage |
| STATUS | Active | PROPERTY TYPE(S) | Condo/Townhouse/Co-Op |
| School District | York Community High School |
|---|---|
| Elementary School | Hawthorne Elementary School |
| Jr. High School | Sandburg Middle School |
| High School | York Community High School |
| ADDITIONAL DETAILS | |
| AIR | Central Air |
|---|---|
| AIR CONDITIONING | Yes |
| APPLIANCES | Bar Fridge, Dishwasher, Disposal, Dryer, Humidifier, Microwave, Range, Range Hood, Stainless Steel Appliance(s), Washer, Wine Refrigerator |
| AREA | Elmhurst |
| BASEMENT | Finished, Full, Sump Pump, Yes |
| CONSTRUCTION | Other |
| FIREPLACE | Yes |
| GARAGE | Attached Garage, Yes |
| HEAT | Forced Air, Natural Gas |
| INTERIOR | Beamed Ceilings, Open Floorplan, Pantry, Walk-In Closet(s), Wet Bar |
| LOT | 0 |
| LOT DIMENSIONS | 31 X 150 |
| PARKING | Concrete, Garage Door Opener, Attached, Garage |
| SEWER | Public Sewer |
| STORIES | 2 |
| WATER | Public |
MORTGAGE CALCULATOR
TOTAL MONTHLY PAYMENT
0
P
I
*Estimate only
| SATELLITE VIEW |
| / | |
We respect your online privacy and will never spam you. By submitting this form with your telephone number
you are consenting for Humderto
Garcia to contact you even if your name is on a Federal or State
"Do not call List".
Listed with Compass
The data relating to real estate for sale on this web site comes in part from the Broker ReciprocitySM Program of MRED. All real estate listings are marked with the Broker ReciprocitySM logo or the MRED Broker ReciprocitySM thumbnail logo (a little black house) and detailed information about them includes the name of the listing brokers.
The broker providing these data believes them to be correct, but advises interested parties to confirm them before relying on them in a purchase decision.
Copyright 2026 MRED. All rights reserved.

The broker providing these data believes them to be correct, but advises interested parties to confirm them before relying on them in a purchase decision.
Copyright 2026 MRED. All rights reserved.
This IDX solution is (c) Diverse Solutions 2026.