|
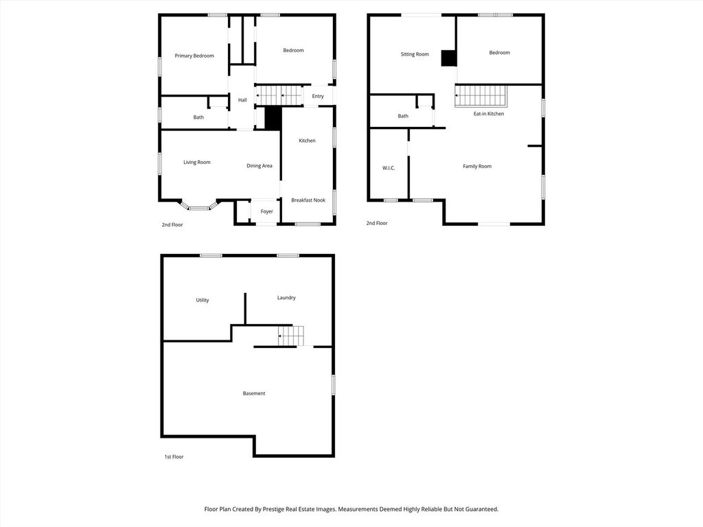
Unique opportunity with two separate living areas on different levels. Main floor offers 2 bedrooms, full bath, living room, and eat-in kitchen. Upper level includes a full kitchen, large family room, 1-bedroom, full bath, sitting room, and walk-in closet. Full basement with laundry and storage. Property needs updates and repairs- ideal for investors or buyers seeking value. SOLD AS-IS.
| DAYS ON MARKET | 3 | LAST UPDATED | 1/30/2026 |
|---|---|---|---|
| YEAR BUILT | 1952 | COMMUNITY | Lombard |
| GARAGE SPACES | 1.0 | COUNTY | DuPage |
| STATUS | Active | PROPERTY TYPE(S) | Single Family |
| School District | Willowbrook High School |
|---|---|
| Elementary School | Westmore Elementary School |
| High School | Willowbrook High School |
| ADDITIONAL DETAILS | |
| AIR | Central Air |
|---|---|
| AIR CONDITIONING | Yes |
| APPLIANCES | Dishwasher, Dryer, Microwave, Range, Refrigerator, Washer |
| AREA | Lombard |
| BASEMENT | Full, Unfinished, Yes |
| CONSTRUCTION | Vinyl Siding |
| GARAGE | Yes |
| HEAT | Natural Gas |
| LOT | 0 |
| LOT DIMENSIONS | 65x140 |
| PARKING | Detached, Garage |
| SEWER | Septic Tank |
| TAXES | 7560 |
| WATER | Well |
MORTGAGE CALCULATOR
TOTAL MONTHLY PAYMENT
0
P
I
*Estimate only
| SATELLITE VIEW |
| / | |
We respect your online privacy and will never spam you. By submitting this form with your telephone number
you are consenting for Humderto
Garcia to contact you even if your name is on a Federal or State
"Do not call List".
Listed with @properties Christie�s International Real Estate
The data relating to real estate for sale on this web site comes in part from the Broker ReciprocitySM Program of MRED. All real estate listings are marked with the Broker ReciprocitySM logo or the MRED Broker ReciprocitySM thumbnail logo (a little black house) and detailed information about them includes the name of the listing brokers.
The broker providing these data believes them to be correct, but advises interested parties to confirm them before relying on them in a purchase decision.
Copyright 2026 MRED. All rights reserved.

The broker providing these data believes them to be correct, but advises interested parties to confirm them before relying on them in a purchase decision.
Copyright 2026 MRED. All rights reserved.
This IDX solution is (c) Diverse Solutions 2026.