|
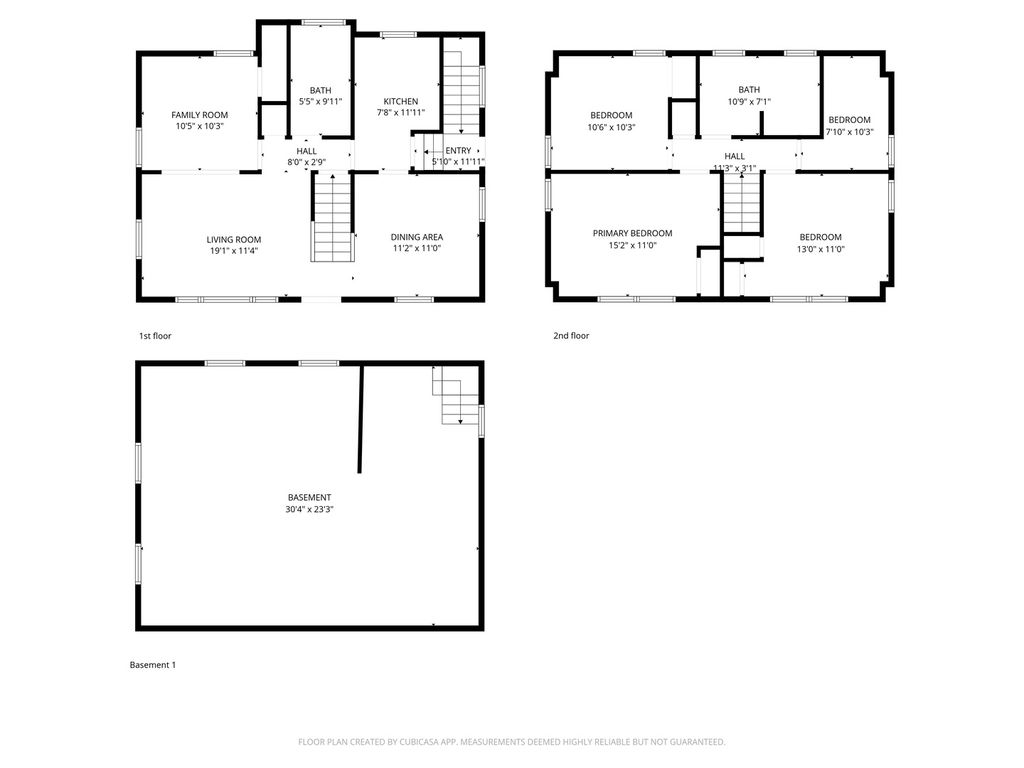
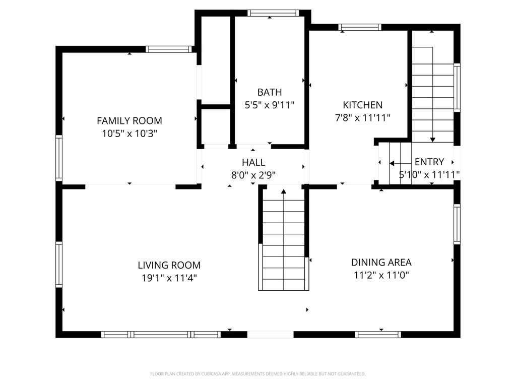
This 3-bedroom, 2 full bath home offers a flexible layout with all bedrooms located upstairs, along with a bonus room that provides extra space for a home office, playroom, or additional living area. With one full bath on each level, the setup is both practical and convenient for everyday living. The unfinished basement offers plenty of storage and includes a newer furnace, adding peace of mind for the next owner. Several newer windows throughout the home help bring in natural light, and the interior presents a great opportunity to personalize the spaces and complete it to your own style and preferences. With solid features and room to make it your own, this property is full of potential. This sale is based on the completion of a prior transaction.
| DAYS ON MARKET | 45 | LAST UPDATED | 3/17/2026 |
|---|---|---|---|
| YEAR BUILT | 1943 | COMMUNITY | Lansing |
| COUNTY | Cook | STATUS | Active |
| PROPERTY TYPE(S) | Single Family |
| PRICE HISTORY | |
| Prior to Feb 18, '26 | $199,900 |
|---|---|
| Feb 18, '26 - Mar 1, '26 | $194,900 |
| Mar 1, '26 - Mar 17, '26 | $189,900 |
| Mar 17, '26 - Today | $184,900 |
| ADDITIONAL DETAILS | |
| AIR | Window Unit(s) |
|---|---|
| AIR CONDITIONING | Yes |
| AREA | Lansing |
| BASEMENT | Full, Unfinished, Yes |
| CONSTRUCTION | Brick |
| HEAT | Forced Air, Natural Gas |
| LOT | 4835 sq ft |
| LOT DIMENSIONS | 0 |
| SEWER | Public Sewer |
| TAXES | 5169 |
| WATER | Public |
MORTGAGE CALCULATOR
TOTAL MONTHLY PAYMENT
0
P
I
*Estimate only
| SATELLITE VIEW |
| / | |
We respect your online privacy and will never spam you. By submitting this form with your telephone number
you are consenting for Humderto
Garcia to contact you even if your name is on a Federal or State
"Do not call List".
Listed with O'Neil Property Group, LLC
The data relating to real estate for sale on this web site comes in part from the Broker ReciprocitySM Program of MRED. All real estate listings are marked with the Broker ReciprocitySM logo or the MRED Broker ReciprocitySM thumbnail logo (a little black house) and detailed information about them includes the name of the listing brokers.
The broker providing these data believes them to be correct, but advises interested parties to confirm them before relying on them in a purchase decision.
Copyright 2026 MRED. All rights reserved.

The broker providing these data believes them to be correct, but advises interested parties to confirm them before relying on them in a purchase decision.
Copyright 2026 MRED. All rights reserved.
This IDX solution is (c) Diverse Solutions 2026.