|
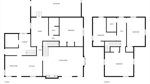
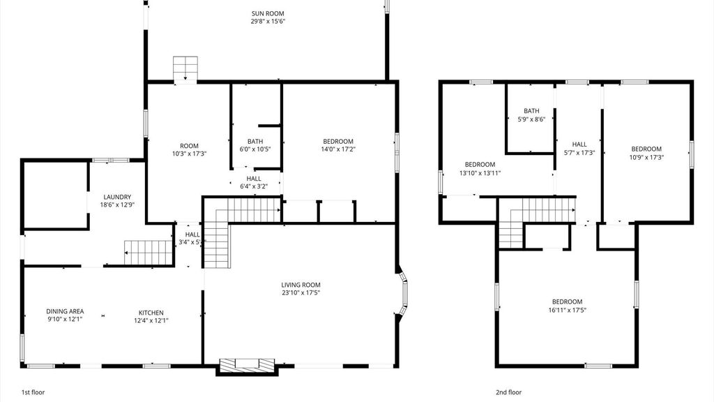
Welcome to your own slice of country paradise! Nestled on 4.39 acres, this charming horse property offers the perfect blend of rural tranquility and thoughtful updates throughout. From the updated home to the garage, well-maintained machine shed, classic corn crib and unique cob house, every corner of this property tells a story. Equestrian lovers will especially appreciate the newly built 4 stall horse barn, ready for your horses to move right in. Whether you're looking for a hobby farm, a peaceful retreat, or a place to live your horse-loving lifestyle, this property is ready to welcome you home! Updates include: HOUSE 2026-New flooring & paint in master bathroom, new flooring in master bedroom and new paint, flooring and vanity in upstairs bathroom. 2025-New washer 2024-Complete kitchen remodel 2022-Fully remodeled 4 seasons room including spray foam insulation, drywall, flooring & lighting and mini split A/C unit. 2021-New siding, windows and metal roof. 2020-New kitchen appliances 2020-Remodeled full bath in mud room. 2019-New well COB HOUSE 2021- New metal roof, siding & windows GARAGE 2021-New metal roof, featuring 3 bay parking HORSE BARN built in 2020 40 x40, 4 beautiful Amish built stalls, 16'x14' insulated tack room, 8' lean too and paddock area, 110'x62' riding arena, 115'x60' back horse pasture, 230'x105' front horse pasture, 200'x40' back cow pasture with a 12'x12' run in shed. There is also manual roll up doors on the horse barn. CORN CRIB 2024-newly painted 2021-New metal roof MACHINE SHED Features include built in separate room for use as an office or storage, cement flooring, walk in access door and also has 2 slider doors. 2020---New farm panel service and electrical panels to all buildings. EXTRA FEATURES The farm is supplied by both Solar and Ameren electric. There is also the original well that supplies water to all the outside hydrants -the shop, corn crib and horse barn
| DAYS ON MARKET | 43 | LAST UPDATED | 3/14/2026 |
|---|---|---|---|
| TRACT | Not Applicable | YEAR BUILT | 1893 |
| COMMUNITY | Chenoa | GARAGE SPACES | 3.0 |
| COUNTY | Livingston | STATUS | Conditional |
| PROPERTY TYPE(S) | Single Family |
| School District | Prairie Central High School |
|---|---|
| Elementary School | Prairie Central Elementary |
| Jr. High School | Prairie Central Jr High |
| High School | Prairie Central High School |
| ADDITIONAL DETAILS | |
| AIR | Wall Unit(s) |
|---|---|
| AIR CONDITIONING | Yes |
| APPLIANCES | Dishwasher, Dryer, Microwave, Range, Refrigerator, Washer |
| AREA | Chenoa |
| BARN/EQUESTRIAN | Yes |
| BASEMENT | Partial, Unfinished, Yes |
| CONSTRUCTION | Vinyl Siding |
| FIREPLACE | Yes |
| GARAGE | Yes |
| HEAT | Propane |
| LOT | 4.39 acre(s) |
| LOT DIMENSIONS | 472X408 |
| PARKING | Garage Door Opener, Heated Garage, Detached, Garage |
| SEWER | Septic Tank |
| STYLE | Farmhouse |
| SUBDIVISION | Not Applicable |
| TAXES | 7683.92 |
| WATER | Well |
MORTGAGE CALCULATOR
TOTAL MONTHLY PAYMENT
0
P
I
*Estimate only
| SATELLITE VIEW |
| / | |
We respect your online privacy and will never spam you. By submitting this form with your telephone number
you are consenting for Humderto
Garcia to contact you even if your name is on a Federal or State
"Do not call List".
Listed with RE/MAX Rising
The data relating to real estate for sale on this web site comes in part from the Broker ReciprocitySM Program of MRED. All real estate listings are marked with the Broker ReciprocitySM logo or the MRED Broker ReciprocitySM thumbnail logo (a little black house) and detailed information about them includes the name of the listing brokers.
The broker providing these data believes them to be correct, but advises interested parties to confirm them before relying on them in a purchase decision.
Copyright 2026 MRED. All rights reserved.

The broker providing these data believes them to be correct, but advises interested parties to confirm them before relying on them in a purchase decision.
Copyright 2026 MRED. All rights reserved.
This IDX solution is (c) Diverse Solutions 2026.