|
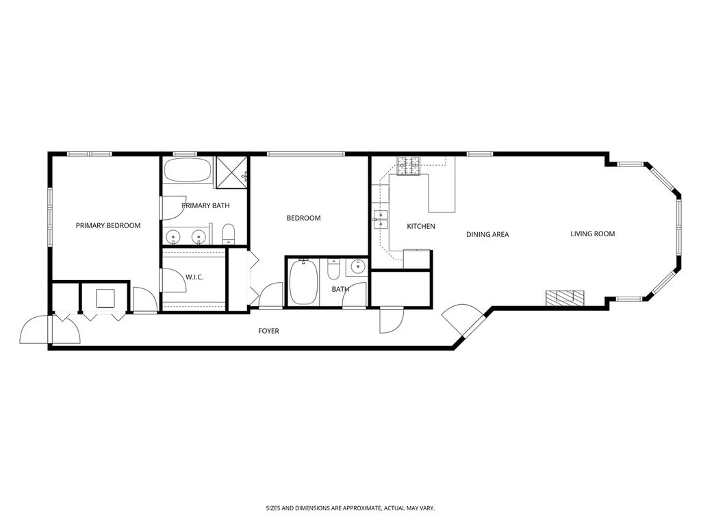
Rare Find ! Horner Park huge two bedroom 2 bath over 1500 SQ feet of living space, on one of the best blocks -Mozart Street. Be wowed when you walk into this fabulous home. This home offers an open floor plan and very gracious living space and dining. Hardwood throughout, high ceilings and multiple exposures for getting incredible light all day long. A wonderfully set kitchen with 42 inch maple transitional cabinetry, stainless steel appliances, granite counters and an enormous peninsula perfect for those who love to cook. Two very nicely sized bedrooms and the primary suite includes a nicely sized walk in closet and ensuite double vanity spa like bath. The other full bath is also large with a tub. Enjoy the oversized back deck on those beautiful summer days with a glass of wine or morning coffee.walk to the ever expansive Horner Park or play pickle ball just 2 blocks away. Updates include new HVAC and AC, New Stove new roof/ parapet, new outdoor trex like decking. This home is meticulously kept and it shows. Just an amazing home in a fabulous neighborhood. The perfect place to nest!
| DAYS ON MARKET | 21 | LAST UPDATED | 3/3/2026 |
|---|---|---|---|
| YEAR BUILT | 1927 | COMMUNITY | CHI - Irving Park |
| COUNTY | Cook | STATUS | Conditional |
| PROPERTY TYPE(S) | Condo/Townhouse/Co-Op |
| Elementary School | Bateman Elementary School |
|---|
| ADDITIONAL DETAILS | |
| AIR | Central Air |
|---|---|
| AIR CONDITIONING | Yes |
| AMENITIES | Insurance, Snow Removal |
| APPLIANCES | Dishwasher, Disposal, Dryer, Microwave, Range, Refrigerator, Stainless Steel Appliance(s), Washer |
| AREA | CHI - Irving Park |
| BASEMENT | None |
| CONSTRUCTION | Brick |
| FIREPLACE | Yes |
| HEAT | Electric, Natural Gas |
| HOA DUES | 357 |
| INTERIOR | Built-in Features, Open Floorplan, Storage |
| LOT | 0 |
| LOT DIMENSIONS | COMMON |
| PARKING | Unassigned, Other |
| SEWER | Public Sewer |
| STORIES | 3 |
| TAXES | 6668 |
| WATER | Public |
MORTGAGE CALCULATOR
TOTAL MONTHLY PAYMENT
0
P
I
*Estimate only
| SATELLITE VIEW |
| / | |
We respect your online privacy and will never spam you. By submitting this form with your telephone number
you are consenting for Humderto
Garcia to contact you even if your name is on a Federal or State
"Do not call List".
Listed with Compass
The data relating to real estate for sale on this web site comes in part from the Broker ReciprocitySM Program of MRED. All real estate listings are marked with the Broker ReciprocitySM logo or the MRED Broker ReciprocitySM thumbnail logo (a little black house) and detailed information about them includes the name of the listing brokers.
The broker providing these data believes them to be correct, but advises interested parties to confirm them before relying on them in a purchase decision.
Copyright 2026 MRED. All rights reserved.

The broker providing these data believes them to be correct, but advises interested parties to confirm them before relying on them in a purchase decision.
Copyright 2026 MRED. All rights reserved.
This IDX solution is (c) Diverse Solutions 2026.