|
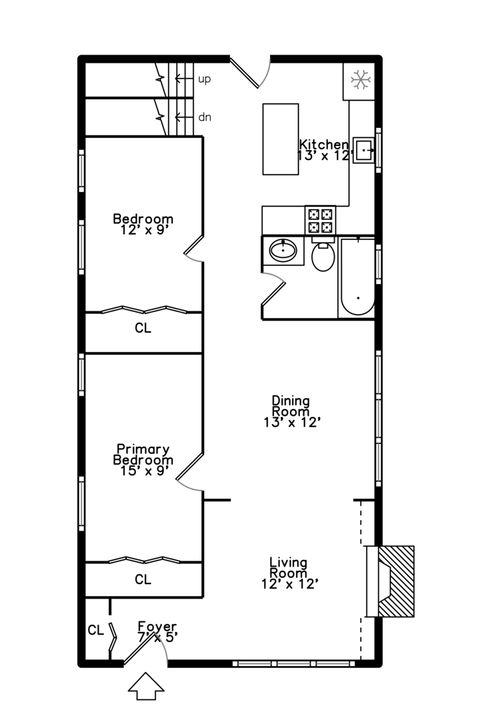
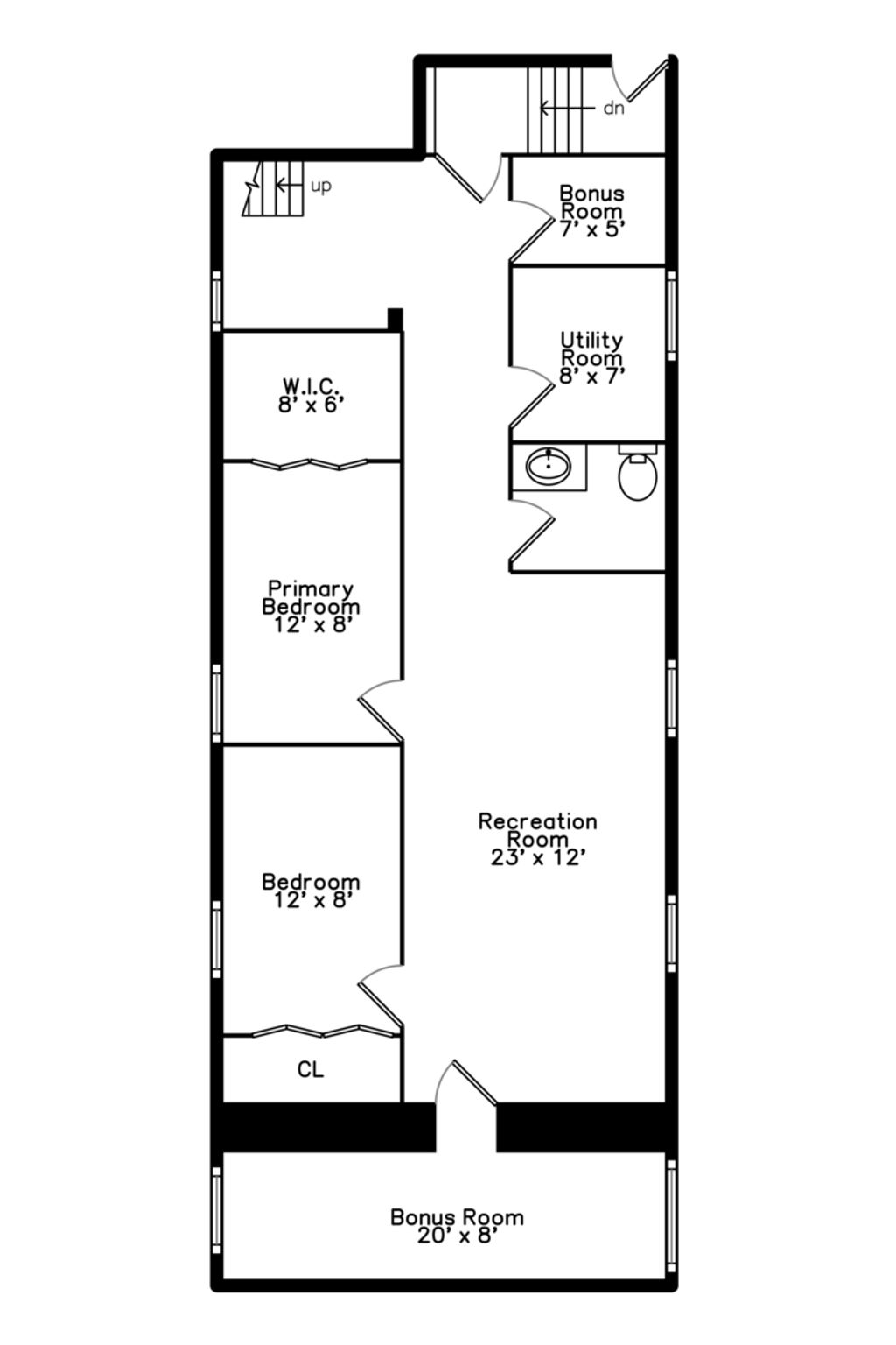
Discover this exceptional, professionally renovated oversized Bungalow with 7-bedroom, 3.1-bath home and almost 4k Square ft of living, perfectly positioned on a quiet hard corner on an oversized lot with ample of yard space for your family . Designed for effortless living and unforgettable entertaining. At the heart of the home is a stunning designer kitchen featuring white shaker cabinetry, quartz countertops, center island, and backsplashes, Upstairs, three bright airy bedrooms, office space, and storage. Impressive primary suite complete with a spa-inspired private bath. The fully finished walkout basement- has a large family room for holiday entertainment, with additional rooms for quest, office, or workout room. The basement has new drain tiles and flood prevention system, with bath- Parking is never a concern thanks to a 2.5-car garage with three additional parking spaces. Thoughtful upgrades include zoned high-efficiency heating and cooling and abundant storage. All of this in a prime location near vibrant Forest Park and Oak Park. Just moments from the Blue Line. A truly exceptional home offering the perfect blend of style, comfort, and convenience.
| DAYS ON MARKET | 38 | LAST UPDATED | 2/18/2026 |
|---|---|---|---|
| YEAR BUILT | 1921 | COMMUNITY | Forest Park |
| GARAGE SPACES | 2.0 | COUNTY | Cook |
| STATUS | Conditional | PROPERTY TYPE(S) | Single Family |
| ADDITIONAL DETAILS | |
| AIR | Central Air, Zoned |
|---|---|
| AIR CONDITIONING | Yes |
| APPLIANCES | Dishwasher, Disposal, Dryer, Microwave, Range, Refrigerator, Stainless Steel Appliance(s), Washer |
| AREA | Forest Park |
| BASEMENT | Finished, Full, Yes |
| CONSTRUCTION | Brick |
| FIREPLACE | Yes |
| GARAGE | Yes |
| HEAT | Forced Air, Natural Gas, Zoned |
| LOT | 0 |
| LOT DIMENSIONS | 44x125 |
| PARKING | Garage Door Opener, Detached, Garage |
| SEWER | Public Sewer |
| TAXES | 9011 |
| WATER | Public |
MORTGAGE CALCULATOR
TOTAL MONTHLY PAYMENT
0
P
I
*Estimate only
| SATELLITE VIEW |
| / | |
We respect your online privacy and will never spam you. By submitting this form with your telephone number
you are consenting for Humderto
Garcia to contact you even if your name is on a Federal or State
"Do not call List".
Listed with Baird & Warner
The data relating to real estate for sale on this web site comes in part from the Broker ReciprocitySM Program of MRED. All real estate listings are marked with the Broker ReciprocitySM logo or the MRED Broker ReciprocitySM thumbnail logo (a little black house) and detailed information about them includes the name of the listing brokers.
The broker providing these data believes them to be correct, but advises interested parties to confirm them before relying on them in a purchase decision.
Copyright 2026 MRED. All rights reserved.

The broker providing these data believes them to be correct, but advises interested parties to confirm them before relying on them in a purchase decision.
Copyright 2026 MRED. All rights reserved.
This IDX solution is (c) Diverse Solutions 2026.