|
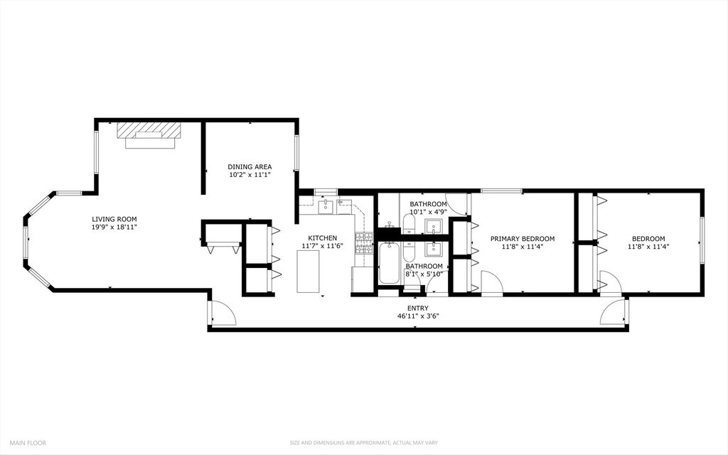
Enjoy top-floor living in Buena Park in this move-in-ready home, ideally located in the heart of Lakeview just minutes from the lakefront, Wrigley Field, shops, dining, and public transportation. The expansive living room is centered around a wood-burning fireplace and offers ample space for multiple seating areas or a work-from-home setup. A separate dining area leads into the updated kitchen, featuring custom wood cabinetry recently painted, granite countertops, tile flooring, and a breakfast island. Both bathrooms have been fully redone with timeless finishes, including classic subway tile and heated floors with white Carrara marble mosaic. The bedrooms are generously sized, and the home includes convenient in-unit laundry. The building is well maintained with recent improvements including a new rear staircase with oversized landings, updated exterior siding, and tuckpointing. Enjoy a beautifully landscaped shared yard with brick pavers, plus plentiful rental parking options nearby. Enjoy everything Lakeview has to offer! Explore the home in 3D-click the 3D tour to walk through every detail.
| DAYS ON MARKET | 37 | LAST UPDATED | 2/17/2026 |
|---|---|---|---|
| YEAR BUILT | 1902 | COMMUNITY | CHI - Uptown |
| COUNTY | Cook | STATUS | Conditional |
| PROPERTY TYPE(S) | Condo/Townhouse/Co-Op |
| School District | Senn High School |
|---|---|
| Elementary School | Brenneman Elementary School |
| Jr. High School | Brenneman Elementary School |
| High School | Senn High School |
| ADDITIONAL DETAILS | |
| AIR | Central Air |
|---|---|
| AIR CONDITIONING | Yes |
| AMENITIES | Insurance, Water |
| APPLIANCES | Dishwasher, Disposal, Dryer, Microwave, Range, Refrigerator, Washer |
| AREA | CHI - Uptown |
| BASEMENT | None |
| CONSTRUCTION | Brick |
| FIREPLACE | Yes |
| HEAT | Forced Air, Natural Gas, Radiant Floor |
| HOA DUES | 325 |
| INTERIOR | Storage |
| LOT | 0 |
| LOT DIMENSIONS | COMMON |
| PARKING | Off Site, Leased |
| SEWER | Public Sewer |
| STORIES | 3 |
| TAXES | 6675.47 |
| WATER | Public |
MORTGAGE CALCULATOR
TOTAL MONTHLY PAYMENT
0
P
I
*Estimate only
| SATELLITE VIEW |
| / | |
We respect your online privacy and will never spam you. By submitting this form with your telephone number
you are consenting for Humderto
Garcia to contact you even if your name is on a Federal or State
"Do not call List".
Listed with Americorp, Ltd
The data relating to real estate for sale on this web site comes in part from the Broker ReciprocitySM Program of MRED. All real estate listings are marked with the Broker ReciprocitySM logo or the MRED Broker ReciprocitySM thumbnail logo (a little black house) and detailed information about them includes the name of the listing brokers.
The broker providing these data believes them to be correct, but advises interested parties to confirm them before relying on them in a purchase decision.
Copyright 2026 MRED. All rights reserved.

The broker providing these data believes them to be correct, but advises interested parties to confirm them before relying on them in a purchase decision.
Copyright 2026 MRED. All rights reserved.
This IDX solution is (c) Diverse Solutions 2026.