|
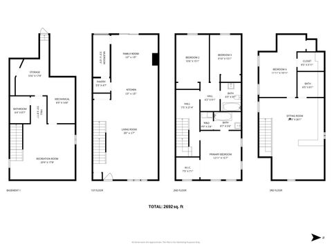
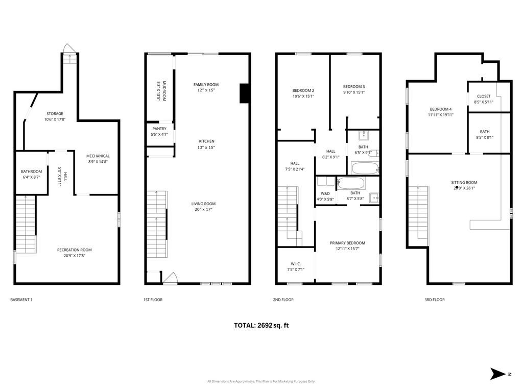
Don't miss this high upside renovation opportunity ideally suited for completion before the Spring market. This property has already undergone the most labor intensive phases and is fully gutted and professionally framed providing a true blank canvas ready for final finishes and strong ROI potential. All architectural plans and permits have been approved by the village and will transfer to the next owner eliminating costly delays. Electrical and plumbing rough ins are complete allowing immediate progress into the finishing stage. A list of pre purchased materials including cabinets doors and hardwood floors can be included in the sale reducing both cost and lead time. The fire sprinkler system is installed. Underground piping requires an upgrade and a permit is already in place to begin excavation so the system can be tested and approved by the Fire Marshal. This project offers momentum efficiency and significant upside. Contact the Listing Agent today for details.
| DAYS ON MARKET | 65 | LAST UPDATED | 3/12/2026 |
|---|---|---|---|
| YEAR BUILT | 1907 | COMMUNITY | Oak Park |
| COUNTY | Cook | STATUS | Conditional |
| PROPERTY TYPE(S) | Single Family |
| School District | Oak Park & River Forest High Sch |
|---|---|
| High School | Oak Park & River Forest High Sch |
| ADDITIONAL DETAILS | |
| AIR | Central Air |
|---|---|
| AIR CONDITIONING | Yes |
| AREA | Oak Park |
| BASEMENT | Full, Unfinished, Yes |
| CONSTRUCTION | Frame |
| HEAT | Natural Gas |
| LOT | 0 |
| LOT DIMENSIONS | 25X125 |
| SEWER | Public Sewer |
| STYLE | American 4-Sq. |
| TAXES | 8503 |
| WATER | Public |
MORTGAGE CALCULATOR
TOTAL MONTHLY PAYMENT
0
P
I
*Estimate only
| SATELLITE VIEW |
| / | |
We respect your online privacy and will never spam you. By submitting this form with your telephone number
you are consenting for Humderto
Garcia to contact you even if your name is on a Federal or State
"Do not call List".
Listed with Baird & Warner
The data relating to real estate for sale on this web site comes in part from the Broker ReciprocitySM Program of MRED. All real estate listings are marked with the Broker ReciprocitySM logo or the MRED Broker ReciprocitySM thumbnail logo (a little black house) and detailed information about them includes the name of the listing brokers.
The broker providing these data believes them to be correct, but advises interested parties to confirm them before relying on them in a purchase decision.
Copyright 2026 MRED. All rights reserved.

The broker providing these data believes them to be correct, but advises interested parties to confirm them before relying on them in a purchase decision.
Copyright 2026 MRED. All rights reserved.
This IDX solution is (c) Diverse Solutions 2026.