|
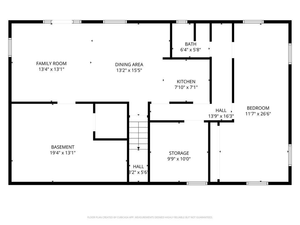
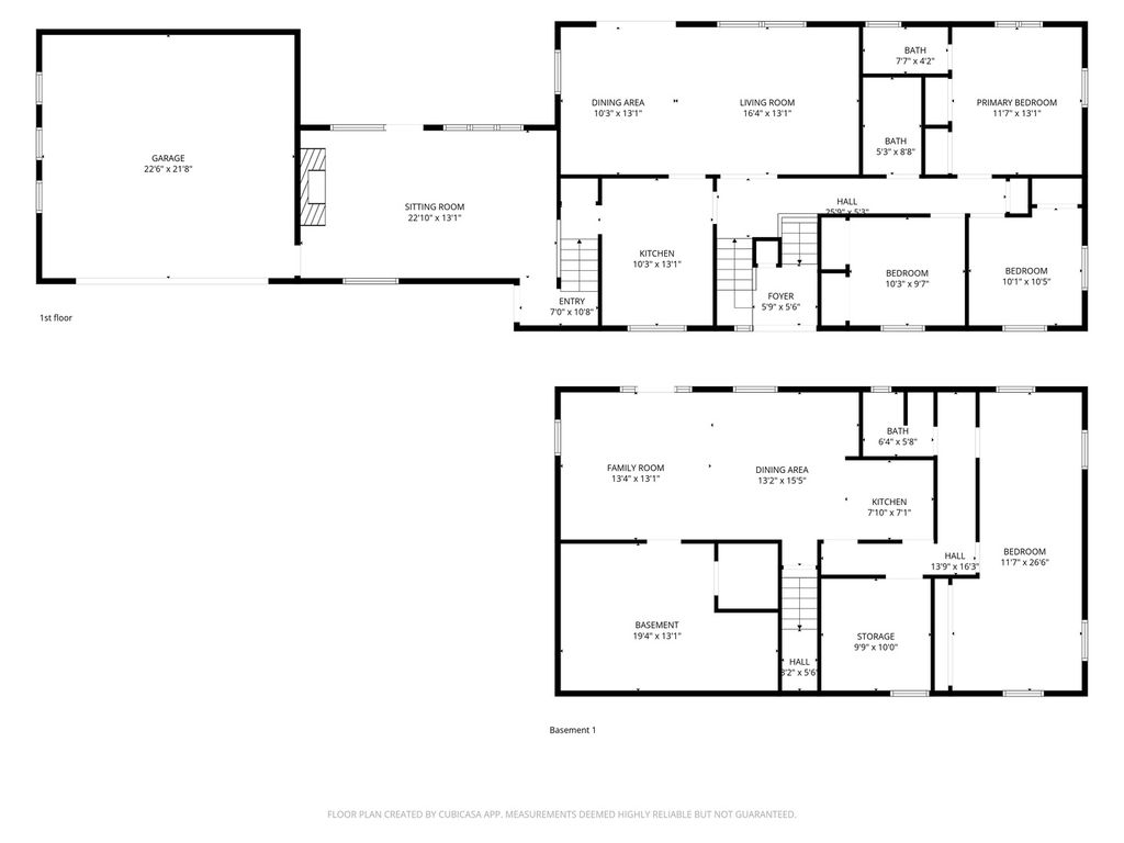
Great 5 bedroom home, built in 1961 on a quiet dead end road. Lower level (South) right, could be a separate living space, with kitchen, informal dining room, living room, 2 bedrooms & a full bath with a shower. Lower level walks out to 1/2 covered cement patio that overlooks a beautiful wooded ravine. Remaining basement unfinished sq. footage includes the Utility Room and laundry room. Next level up, (Main) has a country kitchen, a formal dining room open to the Living Room, 3 bedrooms and a full bath. The lower level towards the garage, (North) is a very nice family room with a fireplace. The garage is a two car. The home sits on a large landscaped lot with wooded ravines on each side. The home is located on a secluded dead end road.
| DAYS ON MARKET | 37 | LAST UPDATED | 2/27/2026 |
|---|---|---|---|
| YEAR BUILT | 1961 | COMMUNITY | Moline |
| GARAGE SPACES | 2.0 | COUNTY | Rock Island |
| STATUS | Active | PROPERTY TYPE(S) | Single Family |
| School District | Moline High School |
|---|---|
| Elementary School | Washington Elementary |
| Jr. High School | Wilson Middle School |
| High School | Moline High School |
| ADDITIONAL DETAILS | |
| AIR | Ceiling Fan(s), Central Air |
|---|---|
| AIR CONDITIONING | Yes |
| APPLIANCES | Cooktop, Dryer, Gas Cooktop, Gas Oven, Microwave, Oven, Refrigerator, Washer |
| AREA | Moline |
| BASEMENT | Finished, Full, Yes |
| CONSTRUCTION | Wood Siding |
| FIREPLACE | Yes |
| GARAGE | Attached Garage, Yes |
| HEAT | Forced Air, Natural Gas |
| INTERIOR | Walk-In Closet(s) |
| LOT | 1.41 acre(s) |
| LOT DESCRIPTION | Irregular Lot, Sloped, Wooded |
| LOT DIMENSIONS | 175 x 352x 166x 306 |
| PARKING | Concrete, Garage Door Opener, Attached, Unassigned, Driveway, Garage |
| SEWER | Public Sewer, Perc Test Required |
| TAXES | 7931.56 |
| UTILITIES | Cable Available |
| WATER | Public |
| WATERFRONT DESCRIPTION | Creek |
MORTGAGE CALCULATOR
TOTAL MONTHLY PAYMENT
0
P
I
*Estimate only
| SATELLITE VIEW |
| / | |
We respect your online privacy and will never spam you. By submitting this form with your telephone number
you are consenting for Humderto
Garcia to contact you even if your name is on a Federal or State
"Do not call List".
Listed with Ruhl&Ruhl REALTORS Moline
The data relating to real estate for sale on this web site comes in part from the Broker ReciprocitySM Program of MRED. All real estate listings are marked with the Broker ReciprocitySM logo or the MRED Broker ReciprocitySM thumbnail logo (a little black house) and detailed information about them includes the name of the listing brokers.
The broker providing these data believes them to be correct, but advises interested parties to confirm them before relying on them in a purchase decision.
Copyright 2026 MRED. All rights reserved.

The broker providing these data believes them to be correct, but advises interested parties to confirm them before relying on them in a purchase decision.
Copyright 2026 MRED. All rights reserved.
This IDX solution is (c) Diverse Solutions 2026.