|
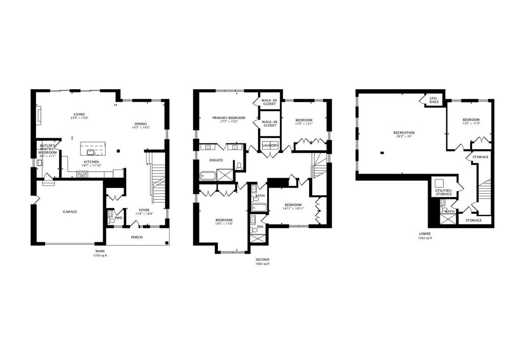
Rare new construction on a quiet dead-end street with extra parking at the end of the cul-de-sac. This 5-bedroom, 4 1/2 bathroom home offers approximately 4,000 sq ft of beautifully finished living space with 10' ceilings on the first and second floors and exceptional natural light throughout. The chef's kitchen features premium Thermador appliances, including a 6-burner range, custom cabinetry, and a large waterfall-edge island with seating. The kitchen opens to a spacious family room with gas fireplace and accent wall, with direct access to a patio- ideal for entertaining. Formal dining room with detailed millwork and coffered ceiling. White oak hardwood floors throughout the main level and hardwood flooring in all second-floor bedrooms. Functional mudroom with sink and ample storage connects to attached 2-car garage. Driveway accommodates two additional vehicles. Second floor has extra wide hallway with 4 generously sized bedrooms and 3 full baths, including two en-suite bedrooms. The primary suite includes dual walk-in closets and a spa-inspired bath with soaking tub, glass-enclosed shower, and bidet-ready outlets. Second-floor laundry for added convenience. Finished basement is where the fun happens with excellent ceiling height. Includes 5th bedroom, full bath, and versatile recreation space ideal for gym, media room, or office. Extra windows in basement add to the appeal. Additional highlights include a tankless water heater for energy efficiency with on-demand hot water. Laid-back HOA covers landscaping, snow plowing of street, electric for lanterns, and common area insurance. **Minimal rules and limited responsibilities** Prime location: approximately 7 minutes to Metra, 8 minutes to Edens Expressway. Close to Amazon Fresh, shopping, parks, and forest preserve. Available now.
| DAYS ON MARKET | 86 | LAST UPDATED | 3/25/2026 |
|---|---|---|---|
| YEAR BUILT | 2025 | COMMUNITY | Morton Grove |
| GARAGE SPACES | 2.0 | COUNTY | Cook |
| STATUS | Conditional | PROPERTY TYPE(S) | Single Family |
| School District | Maine East High School |
|---|---|
| Elementary School | Melzer School |
| Jr. High School | Gemini Junior High School |
| High School | Maine East High School |
| ADDITIONAL DETAILS | |
| AIR | Central Air |
|---|---|
| AIR CONDITIONING | Yes |
| AMENITIES | Electricity, Insurance, Snow Removal |
| APPLIANCES | Dishwasher, Disposal, Dryer, Gas Oven, Humidifier, Microwave, Range, Range Hood, Refrigerator, Stainless Steel Appliance(s), Washer |
| AREA | Morton Grove |
| BASEMENT | Concrete, Finished, Full, Storage Space, Sump Pump, Yes |
| CONSTRUCTION | Fiber Cement |
| EXTERIOR | Lighting |
| FIREPLACE | Yes |
| GARAGE | Attached Garage, Yes |
| HEAT | Forced Air, Natural Gas |
| HOA DUES | 50 |
| INTERIOR | Coffered Ceiling(s), Entrance Foyer, High Ceilings, Open Floorplan, Walk-In Closet(s) |
| LOT | 0 |
| LOT DESCRIPTION | Cul-de-sac, Landscaped |
| LOT DIMENSIONS | 52x20x90x95x104 |
| PARKING | Concrete, Garage Door Opener, Garage, Attached |
| SEWER | Public Sewer |
| WATER | Public |
MORTGAGE CALCULATOR
TOTAL MONTHLY PAYMENT
0
P
I
*Estimate only
| SATELLITE VIEW |
| / | |
We respect your online privacy and will never spam you. By submitting this form with your telephone number
you are consenting for Humderto
Garcia to contact you even if your name is on a Federal or State
"Do not call List".
Listed with @properties Christie's International Real Estate
The data relating to real estate for sale on this web site comes in part from the Broker ReciprocitySM Program of MRED. All real estate listings are marked with the Broker ReciprocitySM logo or the MRED Broker ReciprocitySM thumbnail logo (a little black house) and detailed information about them includes the name of the listing brokers.
The broker providing these data believes them to be correct, but advises interested parties to confirm them before relying on them in a purchase decision.
Copyright 2026 MRED. All rights reserved.

The broker providing these data believes them to be correct, but advises interested parties to confirm them before relying on them in a purchase decision.
Copyright 2026 MRED. All rights reserved.
This IDX solution is (c) Diverse Solutions 2026.