|
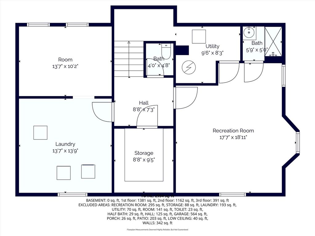
Some homes make an impression the moment you arrive, and this Colonial Revival brick single family 3-4BR/3BA home located on a Tree line street in Glen Oaks subdivision does exactly that. 4724 total finished/unfinished square feet. The front entrance opens to a heated vestibule and into the grand foyer, featuring a presenting wide staircase, grand living room, formal dining, eat-in kitchen, family room with all the beautiful original woodwork, built-ins and high ceilings. Two South facing sunrooms (1 heated) located on the main and second level. 3rd level features a mini grand staircase that leads to a bedroom with ensuite providing unlimited opportunities for guest visits, art studio, office & more. ***'25/'26 updates include: Garage sided, new windows main/upper sunrooms & laundry room, new concrete back patio/sidewalk & front walkway from the front porch to the driveway; Drywall replaced in basement rec-room (walls/ceiling), bathroom & part of back hallway; painting of laundry & storage room. Other updates: Roof, (house/garage) '18. Central A/C '21 serves the main & basement level. Most all other windows have been replaced. Oversized (25x22) attached 2 car garage. Note: The 2nd level bathroom was expanded with a former bedroom to double the bathroom size prior to the current sellers. Sellers have never used the fireplace. For a complete list of updates see associated doc.
| DAYS ON MARKET | 30 | LAST UPDATED | 2/23/2026 |
|---|---|---|---|
| YEAR BUILT | 1922 | COMMUNITY | Moline |
| GARAGE SPACES | 2.0 | COUNTY | Rock Island |
| STATUS | Active | PROPERTY TYPE(S) | Single Family |
| School District | Moline High School |
|---|---|
| Elementary School | Hamilton Elementary |
| Jr. High School | John Deere Middle School |
| High School | Moline High School |
| ADDITIONAL DETAILS | |
| AIR | Central Air, Window Unit(s) |
|---|---|
| AIR CONDITIONING | Yes |
| APPLIANCES | Dishwasher, Microwave, Range, Refrigerator |
| AREA | Moline |
| BASEMENT | Full, Partially Finished, Yes |
| CONSTRUCTION | Brick, Vinyl Siding |
| FIREPLACE | Yes |
| GARAGE | Attached Garage, Yes |
| HEAT | Forced Air, Hot Water, Natural Gas, Steam |
| INTERIOR | Built-in Features, Entrance Foyer, Walk-In Closet(s) |
| LOT | 10019 sq ft |
| LOT DESCRIPTION | Corner Lot, Irregular Lot, Level, Sloped |
| LOT DIMENSIONS | 162x203x123 |
| PARKING | Concrete, Garage Door Opener, Attached, Driveway, Additional Parking, Garage Faces Side, Other, Garage |
| SEWER | Public Sewer |
| STYLE | Colonial |
| TAXES | 7297.48 |
| WATER | Public |
MORTGAGE CALCULATOR
TOTAL MONTHLY PAYMENT
0
P
I
*Estimate only
| SATELLITE VIEW |
| / | |
We respect your online privacy and will never spam you. By submitting this form with your telephone number
you are consenting for Humderto
Garcia to contact you even if your name is on a Federal or State
"Do not call List".
Listed with Ruhl&Ruhl REALTORS Davenport
The data relating to real estate for sale on this web site comes in part from the Broker ReciprocitySM Program of MRED. All real estate listings are marked with the Broker ReciprocitySM logo or the MRED Broker ReciprocitySM thumbnail logo (a little black house) and detailed information about them includes the name of the listing brokers.
The broker providing these data believes them to be correct, but advises interested parties to confirm them before relying on them in a purchase decision.
Copyright 2026 MRED. All rights reserved.

The broker providing these data believes them to be correct, but advises interested parties to confirm them before relying on them in a purchase decision.
Copyright 2026 MRED. All rights reserved.
This IDX solution is (c) Diverse Solutions 2026.