|
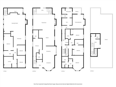
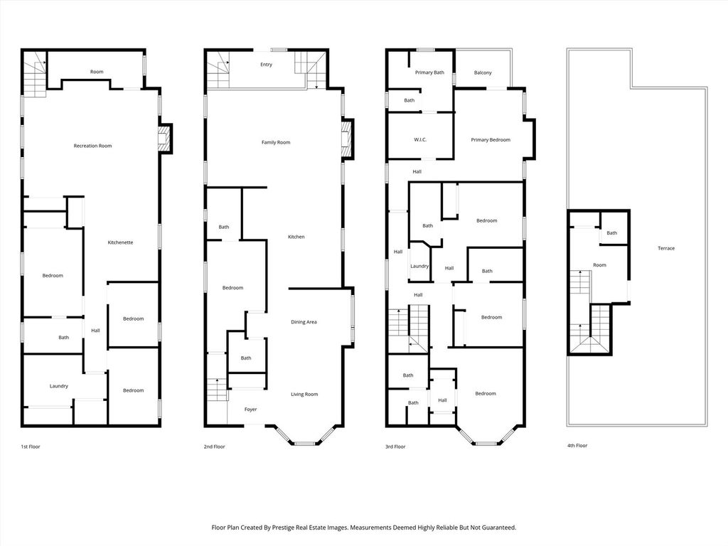
Exquisite new construction luxury home in Chicago's North Center. Discover unparalleled modern living in this brand new 2026 construction masterpiece, meticulously designed for sophistication, entertaining, and comfort. This expansive residence features 6 bedrooms each boasting its own en suite bathroom, ensuring privacy and convenience for family and guest alike. The primary kitchen presents a massive 11ft island complete with Sub Zero and Wolf appliances. The fully finished basement includes heated flooring and an entertainment kitchen complete with an over 200 bottle wine closet, and full-sized laundry room (second laundry located on second floor). Perched on a premium corner lot, fully fenced, the home offers unobstructed views that flood the interior with natural light. Featuring a rooftop deck, offering an incredibly rare and exclusive outdoor oasis ideal for dining, entertaining, or simply unwinding while taking in the stunning cityscape and greenery below. Nestled directly across from Revere Park in the heart of Chicago's vibrant North Center, this property places you at the epicenter of a family friendly neighborhood known for its historic charm and modern amenities. Celebrated for its top-rated schools, tree lined streets, and strong community focus. Just steps away enjoy a wealth of nearby attractions covering the full spectrum of activity, food, and entertainment. This exciting opportunity blends timeless design with an idyllic location, perfect for those seeking the best of urban living in one of Chicago's most desirable neighborhoods.
| DAYS ON MARKET | 44 | LAST UPDATED | 3/16/2026 |
|---|---|---|---|
| YEAR BUILT | 2026 | COMMUNITY | CHI - North Center |
| GARAGE SPACES | 2.5 | COUNTY | Cook |
| STATUS | Active | PROPERTY TYPE(S) | Single Family |
| Elementary School | Bell Elementary School |
|---|
| PRICE HISTORY | |
| Prior to Mar 16, '26 | $2,897,500 |
|---|---|
| Mar 16, '26 - Today | $2,797,500 |
| ADDITIONAL DETAILS | |
| AIR | Central Air |
|---|---|
| AIR CONDITIONING | Yes |
| AREA | CHI - North Center |
| BASEMENT | Finished, Full, Yes |
| CONSTRUCTION | Fiber Cement, Stone |
| EXTERIOR | Balcony |
| FIREPLACE | Yes |
| GARAGE | Yes |
| HEAT | Natural Gas |
| LOT | 0 |
| LOT DIMENSIONS | 30.24 x 124.71 |
| PARKING | Detached, Garage |
| SEWER | Public Sewer |
| TAXES | 9389 |
MORTGAGE CALCULATOR
TOTAL MONTHLY PAYMENT
0
P
I
*Estimate only
| SATELLITE VIEW |
| / | |
We respect your online privacy and will never spam you. By submitting this form with your telephone number
you are consenting for Humderto
Garcia to contact you even if your name is on a Federal or State
"Do not call List".
Listed with CV Estates, LLC
The data relating to real estate for sale on this web site comes in part from the Broker ReciprocitySM Program of MRED. All real estate listings are marked with the Broker ReciprocitySM logo or the MRED Broker ReciprocitySM thumbnail logo (a little black house) and detailed information about them includes the name of the listing brokers.
The broker providing these data believes them to be correct, but advises interested parties to confirm them before relying on them in a purchase decision.
Copyright 2026 MRED. All rights reserved.

The broker providing these data believes them to be correct, but advises interested parties to confirm them before relying on them in a purchase decision.
Copyright 2026 MRED. All rights reserved.
This IDX solution is (c) Diverse Solutions 2026.