|
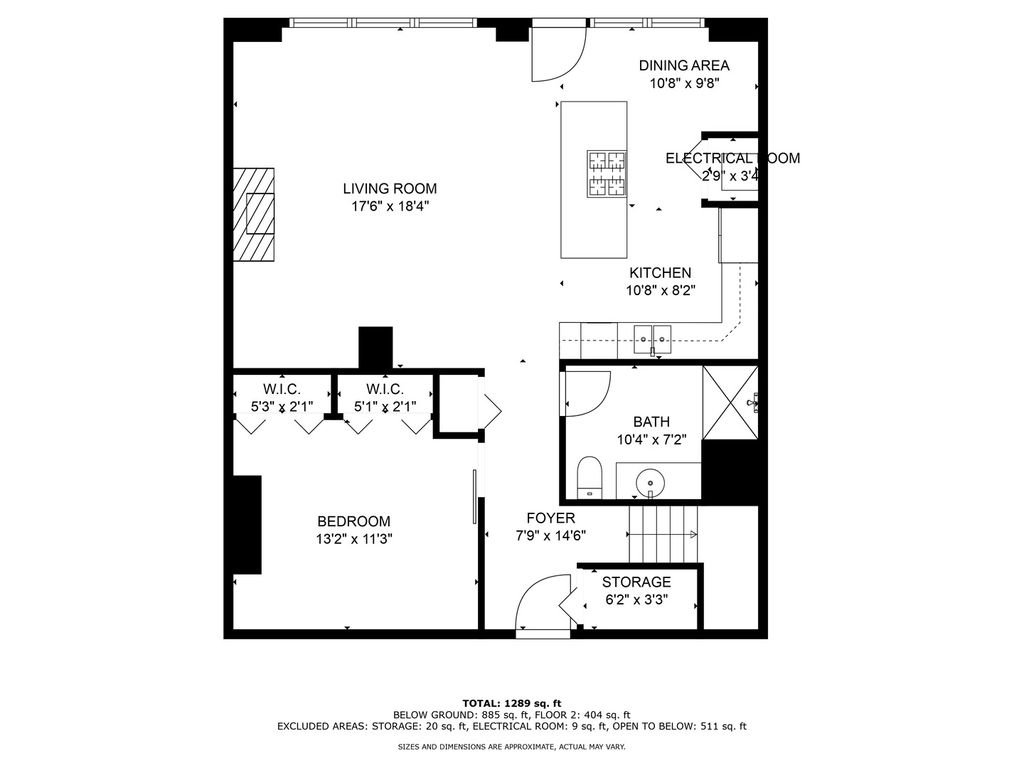
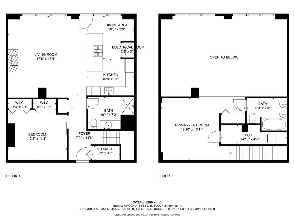
Stunning and spacious duplex-up concrete loft in the quiet, residential pocket of the West Loop! This unique first-floor home features its own private entrance in addition to access through the main doorman entrance-offering the perfect blend of convenience, privacy, and security. Step inside to soaring 20' ceilings, a dramatic wall of windows that fills the space with natural light, and beautifully refinished hardwood floors throughout the open-concept living and dining area. The recently updated chef's kitchen boasts granite countertops, stainless steel appliances, and extensive cabinetry, making it ideal for everyday living and entertaining alike. A cozy gas fireplace anchors the living room, while the spacious first-floor bedroom includes a custom built-in wall bed, offering flexibility as a guest room, office, or both. Enjoy the best of West Loop living in a peaceful location tucked away from the hustle, yet just minutes from parks, the Loop, top restaurants, and everything the neighborhood has to offer. Additional features include one covered parking space with storage plus a second exterior parking spot-both included in the price. Move-in ready and full of character, this one-of-a-kind home is a must-see! ***Please note, the building is currently non-warrantable--meaning no Fannie Mae or Freddie Mac loans. We have a lender who is familiar with the building and may be able to extend financing.
| DAYS ON MARKET | 37 | LAST UPDATED | 2/18/2026 |
|---|---|---|---|
| YEAR BUILT | 2002 | COMMUNITY | CHI - Near West Side |
| GARAGE SPACES | 2.0 | COUNTY | Cook |
| STATUS | Active | PROPERTY TYPE(S) | Condo/Townhouse/Co-Op |
| School District | Wells Community Academy Senior H |
|---|---|
| Elementary School | Skinner Elementary School |
| Jr. High School | Skinner Elementary School |
| High School | Wells Community Academy Senior H |
| ADDITIONAL DETAILS | |
| AIR | Central Air |
|---|---|
| AIR CONDITIONING | Yes |
| AMENITIES | Insurance, Security, Snow Removal, Water |
| APPLIANCES | Dishwasher, Disposal, Dryer, Microwave, Range, Refrigerator, Stainless Steel Appliance(s), Washer |
| AREA | CHI - Near West Side |
| BASEMENT | None |
| CONSTRUCTION | Brick |
| FIREPLACE | Yes |
| GARAGE | Attached Garage, Yes |
| HEAT | Forced Air, Natural Gas |
| HOA DUES | 901 |
| INTERIOR | Cathedral Ceiling(s), Elevator, Granite Counters, Open Floorplan, Storage, Walk-In Closet(s) |
| LOT | 0 |
| LOT DIMENSIONS | COMMON |
| PARKING | Garage Door Opener, Attached, Garage |
| SEWER | Public Sewer |
| STORIES | 10 |
| TAXES | 11354.53 |
| WATER | Public |
MORTGAGE CALCULATOR
TOTAL MONTHLY PAYMENT
0
P
I
*Estimate only
| SATELLITE VIEW |
| / | |
We respect your online privacy and will never spam you. By submitting this form with your telephone number
you are consenting for Humderto
Garcia to contact you even if your name is on a Federal or State
"Do not call List".
Listed with @properties Christie's International Real Estate
The data relating to real estate for sale on this web site comes in part from the Broker ReciprocitySM Program of MRED. All real estate listings are marked with the Broker ReciprocitySM logo or the MRED Broker ReciprocitySM thumbnail logo (a little black house) and detailed information about them includes the name of the listing brokers.
The broker providing these data believes them to be correct, but advises interested parties to confirm them before relying on them in a purchase decision.
Copyright 2026 MRED. All rights reserved.

The broker providing these data believes them to be correct, but advises interested parties to confirm them before relying on them in a purchase decision.
Copyright 2026 MRED. All rights reserved.
This IDX solution is (c) Diverse Solutions 2026.