|
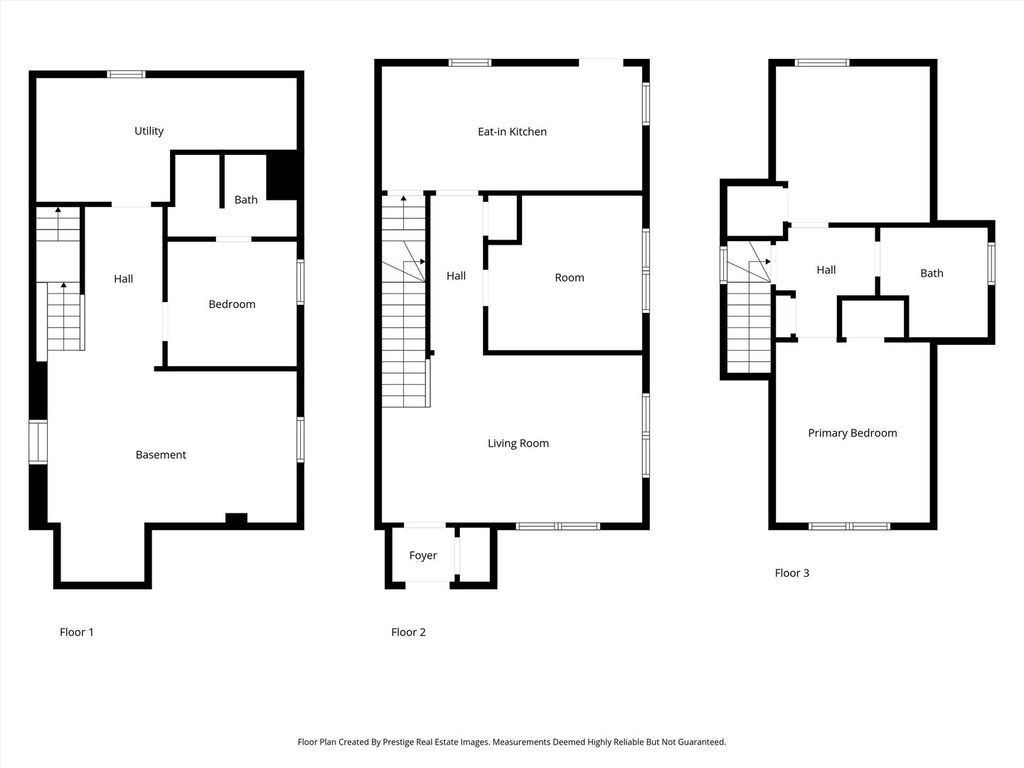
Move-In Ready & Waiting for You to Call It Home! Step into this charming and spacious single-family home that offers the perfect blend of comfort and functionality. The main level welcomes you with a bright and inviting living room, a separate dining area perfect for gatherings, a generously sized primary bedroom, a full bath, and a well-appointed kitchen featuring ample cabinetry and storage. Upstairs, you'll find two additional bedrooms-ideal for family, guests, or creating the perfect home office setup. The fully finished basement expands your living space with a cozy family room, an additional bedroom, and a full bathroom-perfect for related living, overnight guests, or entertaining with ease. Enjoy the outdoor space with a pleasant yard and the added convenience of exterior parking. Conveniently located near shopping, dining, and recreational amenities, this home truly offers space, comfort, and accessibility all in one place. Don't miss this opportunity-schedule your private showing today!
| DAYS ON MARKET | 77 | LAST UPDATED | 2/13/2026 |
|---|---|---|---|
| YEAR BUILT | 1938 | COMMUNITY | CHI - West Englewood |
| COUNTY | Cook | STATUS | Active |
| PROPERTY TYPE(S) | Single Family |
| ADDITIONAL DETAILS | |
| AIR | Central Air |
|---|---|
| AIR CONDITIONING | Yes |
| AREA | CHI - West Englewood |
| BASEMENT | Finished, Full, Yes |
| CONSTRUCTION | Frame |
| HEAT | Natural Gas |
| LOT | 0 |
| LOT DIMENSIONS | 25x125 |
| SEWER | Public Sewer |
| TAXES | 1366.34 |
MORTGAGE CALCULATOR
TOTAL MONTHLY PAYMENT
0
P
I
*Estimate only
| SATELLITE VIEW |
| / | |
We respect your online privacy and will never spam you. By submitting this form with your telephone number
you are consenting for Humderto
Garcia to contact you even if your name is on a Federal or State
"Do not call List".
Listed with RE/MAX Partners
The data relating to real estate for sale on this web site comes in part from the Broker ReciprocitySM Program of MRED. All real estate listings are marked with the Broker ReciprocitySM logo or the MRED Broker ReciprocitySM thumbnail logo (a little black house) and detailed information about them includes the name of the listing brokers.
The broker providing these data believes them to be correct, but advises interested parties to confirm them before relying on them in a purchase decision.
Copyright 2026 MRED. All rights reserved.

The broker providing these data believes them to be correct, but advises interested parties to confirm them before relying on them in a purchase decision.
Copyright 2026 MRED. All rights reserved.
This IDX solution is (c) Diverse Solutions 2026.