|
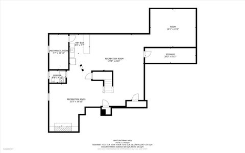
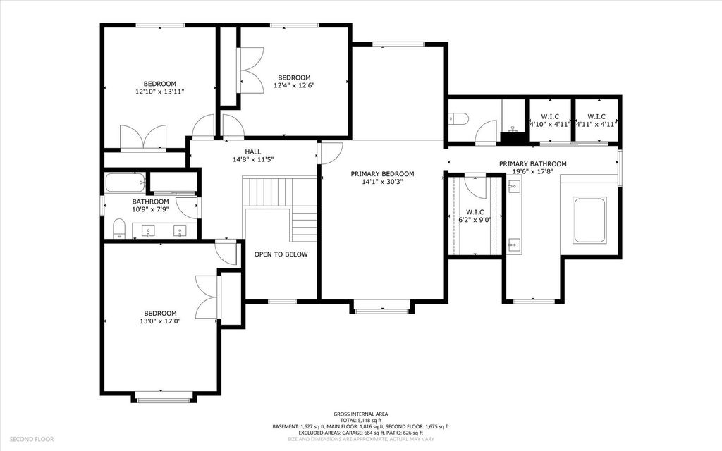
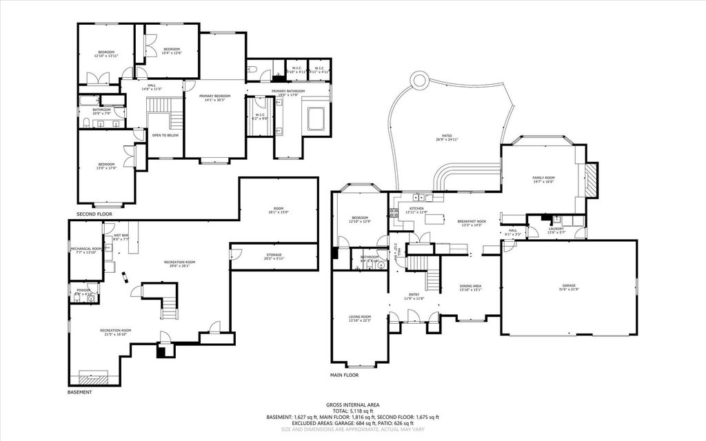
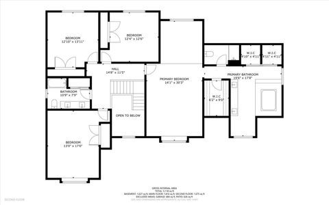
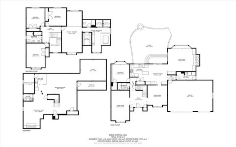
Welcome to 1304 Hawkins Court, your new St. Charles home! Stunning 5 bedroom, 3.5 bath custom home on quiet block, in highly sought after Hunt Club Subdivision! Beautiful, all brick front welcomes you to this amazing home...Walk in, and you will fall in love immediately with the real hardwood wood floors, that have just been refinished for the new owners! Entire home has also gotten a fresh coat of paint, making this home move in ready...but that's not what's going to sell you!!! What's going to sell you is all the custom features throughout this home. The large living room with it's built in entertainmain center! Making this a perfect room for entertaining, kids playroom, or a home office...possibilities, are endless! On the other side of the gorgeous 2 story foyer, you have a large formal dining room, again, perfect for entertaining,family parties, or the holidays! Another incredible feature of this first floor is the first floor bedroom, with a beautiful updated adjacent full bath, right next door! This bedroom is amazing, as it has incredible bookcases, an amazing bay window, with a gorgeous view of the backyard! This would make a perfect 5th bedroom, or a great guest room, or an office or and office/guest bedroom! Next to this bedroom you will find a huge eat in kitchen, with stainless steel appliances, and granite counters, and tons of counter and cabinet space...and this lovely kitchen opens to an amazing family room, with a gorgeous brick to ceiling fireplace, beamed ceiling, and a lovely window seat to curl up with a great book with, or an amazing place to watch your plants flourish!!! Upstairs you will find all new carpeting throughout! The primary suite really is a showstopper with its separate seating area, perfect spot to unwind or start your day! You will also enjoy all the closet space and the beautifully updated primary bath...and talk about spacious!!! 3 other large bedrooms share this floor, with another gorgeous updated hall bath! Yup you read that right, all 3 full bathrooms in this incredible home have been beautifully updated! And if that wasn't enough...let's take a look at the amazing finished basement, shall we? Full finished basement, with a gorgeous wet bar, half bath, and a 2nd cozy fireplace to cozy up to on those cozy cold nights...next fall! Tons of open recreatiion space, plus an open room, perfect to finish off as an exercise room! All you need to do is add flooring! But wait...there's more!!! Step outside, and enjoy this amazing terrace,with it's incredible walls, and beautiful firepit, with a gasline to the firepit! Entire outside of home has been professionally landscaped! You will be the envy of all your friends and family as you will definitely be the one hosting all the summertime barbecues and parties this summer!!! And for piece of mind, gutter guards have been professionally installed throughout! Home is also dual zoned, to keep down those utility bills!!! With all new carpet, all new paint, all floors being professionally refinished, new water heaters, furnaces just cleaned and inspectd for peace of mind...what are you wainting for? Wonderful Neighborhood! Walk to Recreation Center, Parks and School! Not to mention top rated St. Charles Schools, and close to all Downtown St. Charles has to offer...
| DAYS ON MARKET | 29 | LAST UPDATED | 3/16/2026 |
|---|---|---|---|
| TRACT | Hunt Club | YEAR BUILT | 1991 |
| COMMUNITY | Campton Hills / St. Charles | GARAGE SPACES | 3.0 |
| COUNTY | Kane | STATUS | Conditional |
| PROPERTY TYPE(S) | Single Family |
| School District | St Charles East High School |
|---|---|
| Elementary School | Munhall Elementary School |
| Jr. High School | Wredling Middle School |
| High School | St Charles East High School |
| ADDITIONAL DETAILS | |
| AIR | Ceiling Fan(s), Central Air |
|---|---|
| AIR CONDITIONING | Yes |
| APPLIANCES | Dishwasher, Disposal, Double Oven, Dryer, Microwave, Range, Refrigerator, Washer, Water Softener |
| AREA | Campton Hills / St. Charles |
| BASEMENT | Finished, Full, Sump Pump, Yes |
| CONSTRUCTION | Brick, Cedar |
| FIREPLACE | Yes |
| GARAGE | Attached Garage, Yes |
| HEAT | Forced Air, Natural Gas |
| INTERIOR | Beamed Ceilings, Bookcases, Vaulted Ceiling(s), Wet Bar |
| LOT | 0.3145 acre(s) |
| LOT DESCRIPTION | Landscaped |
| LOT DIMENSIONS | 13700 |
| PARKING | Asphalt, Garage Door Opener, Attached, Garage |
| SEWER | Public Sewer |
| SUBDIVISION | Hunt Club |
| TAXES | 15705 |
| WATER | Public |
MORTGAGE CALCULATOR
TOTAL MONTHLY PAYMENT
0
P
I
*Estimate only
| SATELLITE VIEW |
| / | |
We respect your online privacy and will never spam you. By submitting this form with your telephone number
you are consenting for Humderto
Garcia to contact you even if your name is on a Federal or State
"Do not call List".
Listed with Keller Williams Success Realty
The data relating to real estate for sale on this web site comes in part from the Broker ReciprocitySM Program of MRED. All real estate listings are marked with the Broker ReciprocitySM logo or the MRED Broker ReciprocitySM thumbnail logo (a little black house) and detailed information about them includes the name of the listing brokers.
The broker providing these data believes them to be correct, but advises interested parties to confirm them before relying on them in a purchase decision.
Copyright 2026 MRED. All rights reserved.

The broker providing these data believes them to be correct, but advises interested parties to confirm them before relying on them in a purchase decision.
Copyright 2026 MRED. All rights reserved.
This IDX solution is (c) Diverse Solutions 2026.