|
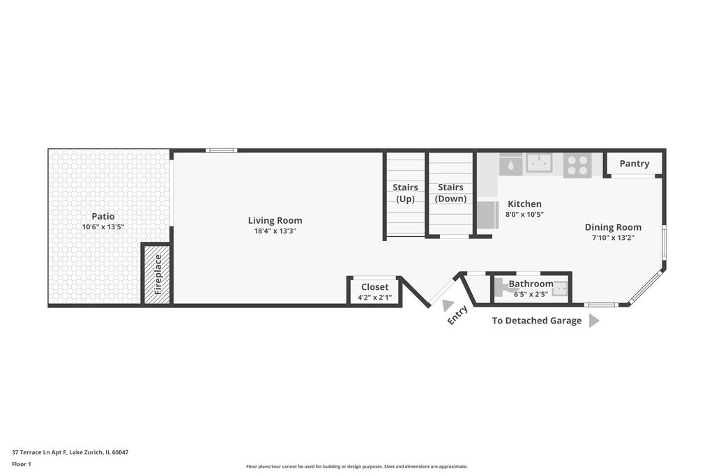
On the Market for the first time in 30 years! Welcome to this beautifully maintained and refreshed 2-Bedroom & 2 1/2-Bathroom Townhome perfectly situated in the heart of Lake Zurich! Step inside to find a bright and inviting living space featuring a cozy fireplace, and seamless access to a private outdoor area-perfect for relaxing or entertaining. The entire unit has been freshly painted from walls to ceilings (2026), creating a clean and peaceful feel throughout.The Kitchen offers ample cabinetry and counter space, along with a brand-new stove (2026), making it ideal for everyday living. Eat-In dining space is filled with natural light, creating a warm and welcoming atmosphere. The second floor features brand-new carpet (2026), adding comfort and a fresh touch to the living quarters. Primary Bedroom with Vaulted Ceilings includes a full Primary Bathroom. The Second Bedroom includes a full bathroom as well! Perfect for Roommates or Guests. Additional highlights include unfinished basement, ready to be finished and remodeled to fit your ideal lifestyle. In-Unit Laundry, and a professionally cleaned interior-truly move-in ready for the next owner. 1 Car Detached Garage with a driveway that fits 2 additional cars. Located in a highly desirable and central Lake Zurich location, this home offers easy access to shopping, dining, parks, and top-rated schools. Don't miss the opportunity to own a beautifully updated home in a prime location!
| DAYS ON MARKET | 3 | LAST UPDATED | 4/21/2026 |
|---|---|---|---|
| TRACT | Terrace Lane | YEAR BUILT | 1990 |
| COMMUNITY | Hawthorn Woods / Lake Zurich / Kildeer / Long Grove | GARAGE SPACES | 1.0 |
| COUNTY | Lake | STATUS | Active |
| PROPERTY TYPE(S) | Condo/Townhouse/Co-Op |
| School District | Lake Zurich High School |
|---|---|
| Elementary School | May Whitney Elementary School |
| Jr. High School | Lake Zurich Middle - N Campus |
| High School | Lake Zurich High School |
| ADDITIONAL DETAILS | |
| AIR | Central Air |
|---|---|
| AIR CONDITIONING | Yes |
| AMENITIES | Insurance, Snow Removal |
| APPLIANCES | Dishwasher, Disposal, Dryer, Microwave, Range, Refrigerator, Washer |
| AREA | Hawthorn Woods / Lake Zurich / Kildeer / Long Grove |
| BASEMENT | Full, Sump Pump, Unfinished, Yes |
| CONSTRUCTION | Brick |
| FIREPLACE | Yes |
| GARAGE | Attached Garage, Yes |
| HEAT | Forced Air, Natural Gas |
| HOA DUES | 280 |
| INTERIOR | Cathedral Ceiling(s) |
| LOT | 0 |
| LOT DESCRIPTION | Cul-de-sac, Landscaped |
| LOT DIMENSIONS | COMMON |
| PARKING | Asphalt, Garage Door Opener, Attached, Garage |
| SEWER | Public Sewer |
| STORIES | 2 |
| SUBDIVISION | Terrace Lane |
| TAXES | 4113.96 |
| UTILITIES | Cable Available |
| WATER | Public |
MORTGAGE CALCULATOR
TOTAL MONTHLY PAYMENT
0
P
I
*Estimate only
| SATELLITE VIEW |
| / | |
We respect your online privacy and will never spam you. By submitting this form with your telephone number
you are consenting for Humderto
Garcia to contact you even if your name is on a Federal or State
"Do not call List".
Listed with Compass
The data relating to real estate for sale on this web site comes in part from the Broker ReciprocitySM Program of MRED. All real estate listings are marked with the Broker ReciprocitySM logo or the MRED Broker ReciprocitySM thumbnail logo (a little black house) and detailed information about them includes the name of the listing brokers.
The broker providing these data believes them to be correct, but advises interested parties to confirm them before relying on them in a purchase decision.
Copyright 2026 MRED. All rights reserved.

The broker providing these data believes them to be correct, but advises interested parties to confirm them before relying on them in a purchase decision.
Copyright 2026 MRED. All rights reserved.
This IDX solution is (c) Diverse Solutions 2026.