|
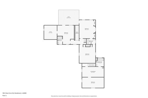
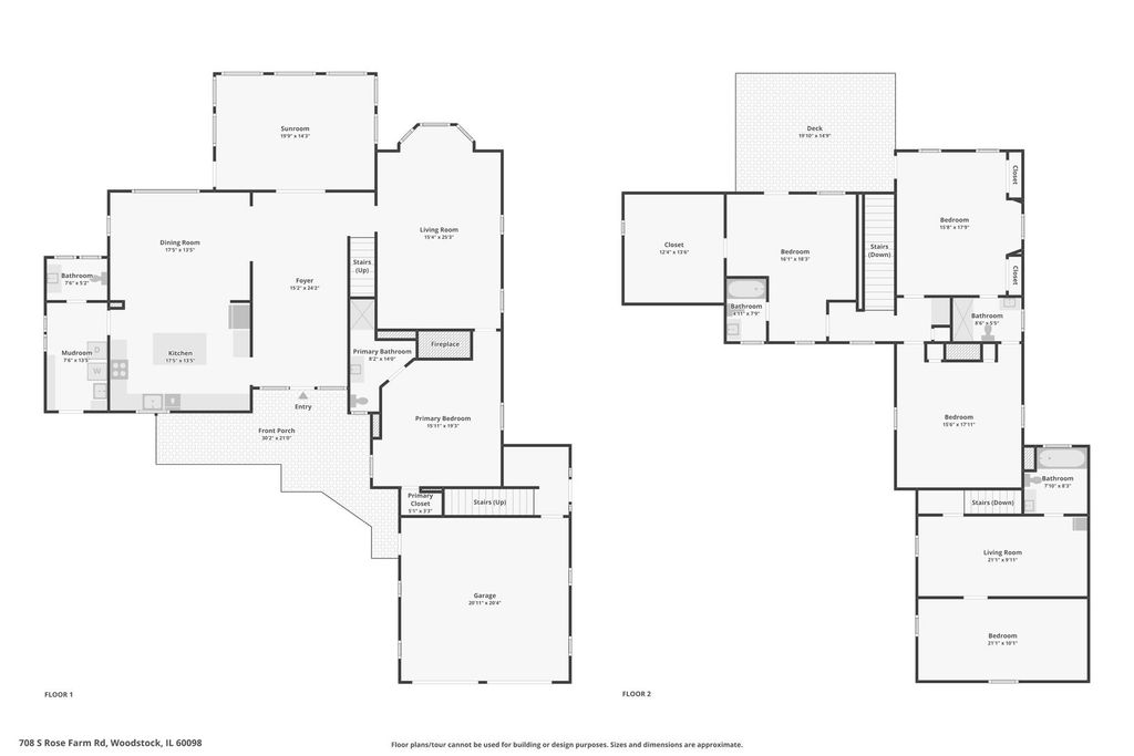
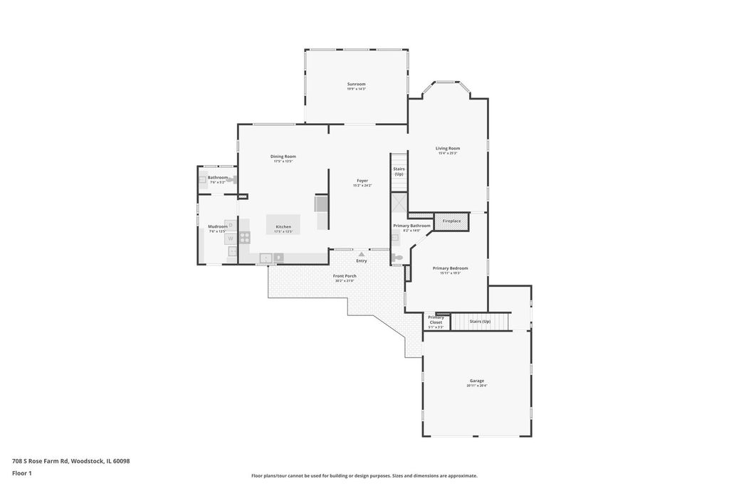
20-Acre Equestrian Estate with Updated Farmhouse, Apartment & Professional Facilities. Set on a picturesque hill and surrounded by original stone fencing, this exceptional equestrian property offers the rare combination of a beautifully restored farmhouse and fully equipped professional horse facilities. The 5-bedroom, 4.1-bath home features over 4,000 sq ft of living space with hardwood flooring, multiple gathering areas, and expansive views of the pastures from nearly every room. The kitchen blends modern updates with farmhouse character, offering white cabinetry, butcher block counters, stainless steel appliances, a farmhouse sink, and an eat-at island. A sun-filled four-season room overlooks the grounds, while a double-sided stone fireplace connects the living room and the main-level primary suite with a private bath. Upstairs are three additional bedrooms and two full baths including a Jack-and-Jill layout. A private apartment above the garage, with a separate exterior entrance. The apartment provides a sitting room, bedroom, full bath, and rooftop deck, ideal for guests, staff, or multigenerational living. Designed for serious equestrians, the facilities meet professional standards. The newer Lester main barn offers 16 insulated stalls with run-outs, radiant heated floors, tack rooms, office, wash rack, and viewing room. The heated indoor arena (approx. 80 x 135) features fiber footing, kickboards and excellent lighting. The outdoor arena includes a limestone base and sand footing. A renovated secondary barn adds additional stalls and turnout access, with multiple paddocks, fenced pastures, riding paths, and outbuildings for storage. In total, the property offers 21 indoor stalls plus outdoor stalls with individual runs. Zoned A1 Agriculture and located just minutes from downtown Woodstock. This property delivers privacy, functionality, and convenience. It's ready for both everyday living and equestrian use.
| DAYS ON MARKET | 60 | LAST UPDATED | 3/4/2026 |
|---|---|---|---|
| YEAR BUILT | 0 | COMMUNITY | Bull Valley / Greenwood / Woodstock |
| GARAGE SPACES | 2.0 | COUNTY | McHenry |
| STATUS | Active | PROPERTY TYPE(S) | Single Family |
| School District | Woodstock High School |
|---|---|
| Elementary School | Westwood Elementary School |
| High School | Woodstock High School |
| ADDITIONAL DETAILS | |
| AIR | Ceiling Fan(s), Central Air |
|---|---|
| AIR CONDITIONING | Yes |
| APPLIANCES | Dishwasher, Dryer, Humidifier, Microwave, Range, Refrigerator, Washer |
| AREA | Bull Valley / Greenwood / Woodstock |
| BARN/EQUESTRIAN | Yes |
| BASEMENT | Exterior Entry, Partial, Unfinished, Yes |
| CONSTRUCTION | Cedar |
| EXTERIOR | Balcony, Other |
| FIREPLACE | Yes |
| GARAGE | Attached Garage, Yes |
| HEAT | Natural Gas, Propane |
| INTERIOR | Entrance Foyer, In-Law Floorplan, Walk-In Closet(s) |
| LOT | 20.03 acre(s) |
| LOT DESCRIPTION | Corner Lot, Pasture |
| LOT DIMENSIONS | 1290 X 625 X 1289 X 632 |
| PARKING | Asphalt, Gravel, Garage Door Opener, Attached, Driveway, Garage |
| SEWER | Septic Tank |
| STYLE | Farmhouse |
| TAXES | 11253 |
| WATER | Well |
MORTGAGE CALCULATOR
TOTAL MONTHLY PAYMENT
0
P
I
*Estimate only
| SATELLITE VIEW |
| / | |
We respect your online privacy and will never spam you. By submitting this form with your telephone number
you are consenting for Humderto
Garcia to contact you even if your name is on a Federal or State
"Do not call List".
Listed with Compass
The data relating to real estate for sale on this web site comes in part from the Broker ReciprocitySM Program of MRED. All real estate listings are marked with the Broker ReciprocitySM logo or the MRED Broker ReciprocitySM thumbnail logo (a little black house) and detailed information about them includes the name of the listing brokers.
The broker providing these data believes them to be correct, but advises interested parties to confirm them before relying on them in a purchase decision.
Copyright 2026 MRED. All rights reserved.

The broker providing these data believes them to be correct, but advises interested parties to confirm them before relying on them in a purchase decision.
Copyright 2026 MRED. All rights reserved.
This IDX solution is (c) Diverse Solutions 2026.