|
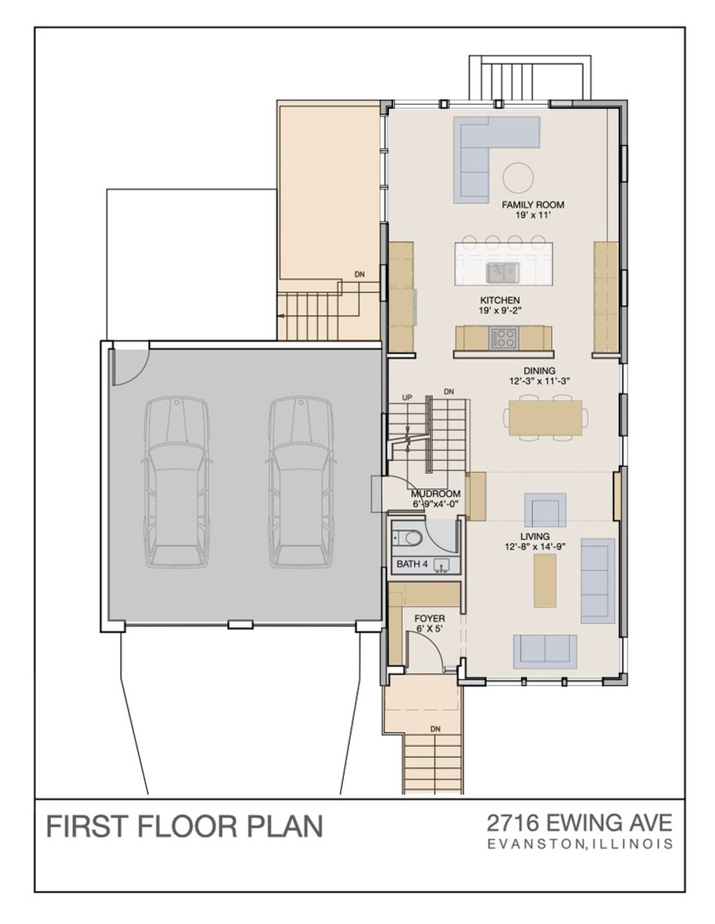
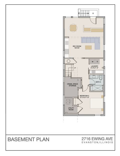
Attention builders, developers, investors, and custom home buyers! This lot is ideal for gut rehab/rebuild and is being sold as is. Value is in the land with zoning variance approved, city-approved plans, architectural drawings, and building permits. The approved project offers great potential and is currently designed for a 4 bed (+1 in basement), 4.5 bath, attached garage, 2-story home with rear deck and patio, skylights, solar and EV ready! The buyer may also retain the seller as the project architect. Property is also listed on MLS as Land, MLS #12570349. An exceptional location in sought-after Northwest Evanston just off Central Street, close to Willard Elementary School, local shops, restaurants, cafes, and bakeries. Convenient to the Central Street Metra, the Green Bay Trail, and Lovelace Park with its lagoon, tennis courts, paths, sports fields, and playground. Enjoy proximity to Evanston parks, community amenities, Northwestern University, Wilmette, Lighthouse Beach, Old Orchard Shopping Center, and the Edens Expressway..
| DAYS ON MARKET | 26 | LAST UPDATED | 2/17/2026 |
|---|---|---|---|
| YEAR BUILT | 1894 | COMMUNITY | Evanston |
| COUNTY | Cook | STATUS | Active |
| PROPERTY TYPE(S) | Single Family |
| School District | Evanston Twp High School |
|---|---|
| Elementary School | Willard Elementary School |
| Jr. High School | Haven Middle School |
| High School | Evanston Twp High School |
| ADDITIONAL DETAILS | |
| AIR | None |
|---|---|
| APPLIANCES | Dryer, Range, Refrigerator, Washer |
| AREA | Evanston |
| BASEMENT | Exterior Entry, Full, Unfinished, Yes |
| CONSTRUCTION | Shingle Siding |
| HEAT | Forced Air, Natural Gas |
| LOT | 0 |
| LOT DESCRIPTION | Irregular Lot |
| LOT DIMENSIONS | 82.42X55.06 |
| SEWER | Public Sewer |
| TAXES | 9748.59 |
| WATER | Public |
MORTGAGE CALCULATOR
TOTAL MONTHLY PAYMENT
0
P
I
*Estimate only
| SATELLITE VIEW |
| / | |
We respect your online privacy and will never spam you. By submitting this form with your telephone number
you are consenting for Humderto
Garcia to contact you even if your name is on a Federal or State
"Do not call List".
Listed with Jameson Sotheby's Intl Realty
The data relating to real estate for sale on this web site comes in part from the Broker ReciprocitySM Program of MRED. All real estate listings are marked with the Broker ReciprocitySM logo or the MRED Broker ReciprocitySM thumbnail logo (a little black house) and detailed information about them includes the name of the listing brokers.
The broker providing these data believes them to be correct, but advises interested parties to confirm them before relying on them in a purchase decision.
Copyright 2026 MRED. All rights reserved.

The broker providing these data believes them to be correct, but advises interested parties to confirm them before relying on them in a purchase decision.
Copyright 2026 MRED. All rights reserved.
This IDX solution is (c) Diverse Solutions 2026.