|
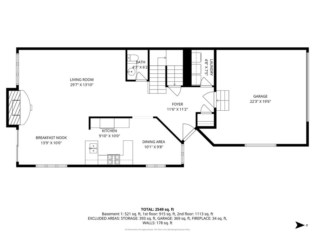
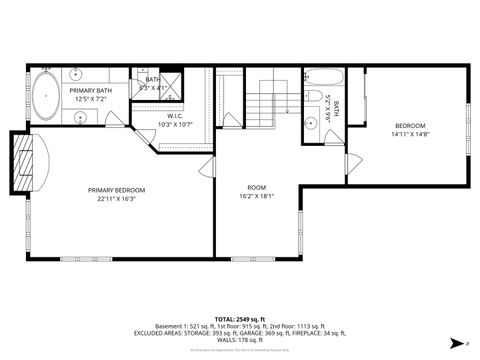
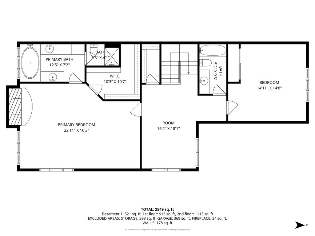
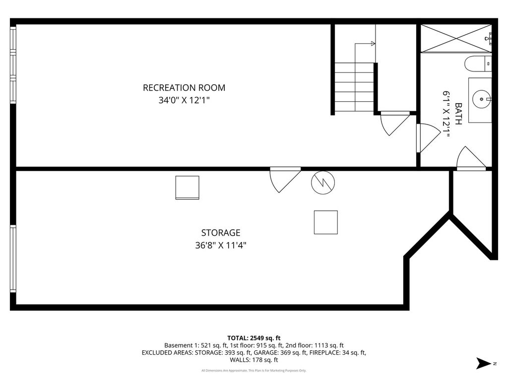
Wow, What a gorgeous view of the Golf Course!! One of the best views in the Klein Creek Townhome Golf Course Community! This beautiful Home has lots of updates and upgrades throughout. Start in the Foyer with hardwood floors and 9 foot ceilings. Fresh neutral paint throughout the Home. Large Crown Moldings highlight most of the 1st floor. Beautiful Stone Fireplace with gas logs in the Living Room. Spacious Dining Room too. Step out of the Slider to the private Deck and enjoy the Fabulous long Golf Course view. Beautiful views year round.. The Kitchen with generous 42" cabinets, SS Appliances, Stone Counters and Tile Backsplash. Large Breakfast area too. Upstairs there is a spacious Master Suite with Vaulted Ceilings and a Brick Fireplace with gas logs. Gorgeous views of the golf course. Wake up to beautiful views year round. Master Bathroom with Double Sinks and whirlpool Tub. Separate Shower room.. Walk in Closet too. 2nd bedroom also has Vaulted Ceilings and large Closet. 2nd floor Loft could be closed in to make a 3rd Bedroom or Office. Good sized walk in Closet. Hall Bath serves those areas. The Lower level English Basement has lookout windows and includes a Family Room, Full Bath and lots of storage. Potential to make an additional room - Bedroom, Office, Playroom... Roof -2013, HVAC -2013, HWH -2018, Kitchen counters and backsplash -2017, Dishwasher - 2022, New Deck - 2022, Garage Door Opener- 2022, Springs - 2026, Sump Pump - 2025, Washer - 2024 The Strong Association takes care of Exterior Maintenance, Landscaping and Snow Removal. Enjoy the private Cul de Sac location with a long driveway- room for parking up to 7 cars.
| DAYS ON MARKET | 9 | LAST UPDATED | 3/9/2026 |
|---|---|---|---|
| YEAR BUILT | 1997 | COMMUNITY | Winfield |
| GARAGE SPACES | 2.0 | COUNTY | DuPage |
| STATUS | Conditional | PROPERTY TYPE(S) | Condo/Townhouse/Co-Op |
| School District | Wheaton North High School |
|---|---|
| Elementary School | Pleasant Hill Elementary School |
| Jr. High School | Monroe Middle School |
| High School | Wheaton North High School |
| ADDITIONAL DETAILS | |
| AIR | Ceiling Fan(s), Central Air |
|---|---|
| AIR CONDITIONING | Yes |
| AMENITIES | Insurance, Snow Removal |
| APPLIANCES | Cooktop, Dishwasher, Double Oven, Dryer, Microwave, Refrigerator, Stainless Steel Appliance(s), Washer |
| AREA | Winfield |
| BASEMENT | Daylight, Full, Partially Finished, Storage Space, Sump Pump, Yes |
| CONSTRUCTION | Brick, Cedar |
| FIREPLACE | Yes |
| GARAGE | Attached Garage, Yes |
| HEAT | Forced Air, Natural Gas |
| HOA DUES | 410 |
| INTERIOR | Bookcases, Entrance Foyer, High Ceilings, Open Floorplan, Storage, Vaulted Ceiling(s), Walk-In Closet(s) |
| LOT | 0 |
| LOT DESCRIPTION | Cul-de-sac, Landscaped, On Golf Course, Views, Wooded |
| LOT DIMENSIONS | 51x183x33x220 |
| PARKING | Asphalt, Garage Door Opener, Attached, Garage |
| SEWER | Public Sewer |
| STORIES | 2 |
| TAXES | 8491 |
| VIEW | Yes |
MORTGAGE CALCULATOR
TOTAL MONTHLY PAYMENT
0
P
I
*Estimate only
| SATELLITE VIEW |
| / | |
We respect your online privacy and will never spam you. By submitting this form with your telephone number
you are consenting for Humderto
Garcia to contact you even if your name is on a Federal or State
"Do not call List".
Listed with Baird & Warner
The data relating to real estate for sale on this web site comes in part from the Broker ReciprocitySM Program of MRED. All real estate listings are marked with the Broker ReciprocitySM logo or the MRED Broker ReciprocitySM thumbnail logo (a little black house) and detailed information about them includes the name of the listing brokers.
The broker providing these data believes them to be correct, but advises interested parties to confirm them before relying on them in a purchase decision.
Copyright 2026 MRED. All rights reserved.

The broker providing these data believes them to be correct, but advises interested parties to confirm them before relying on them in a purchase decision.
Copyright 2026 MRED. All rights reserved.
This IDX solution is (c) Diverse Solutions 2026.