3924 Monica Lane, Johnsburg, IL 60051 (MLS # 12570359)

Save to Favorites
Print
Share

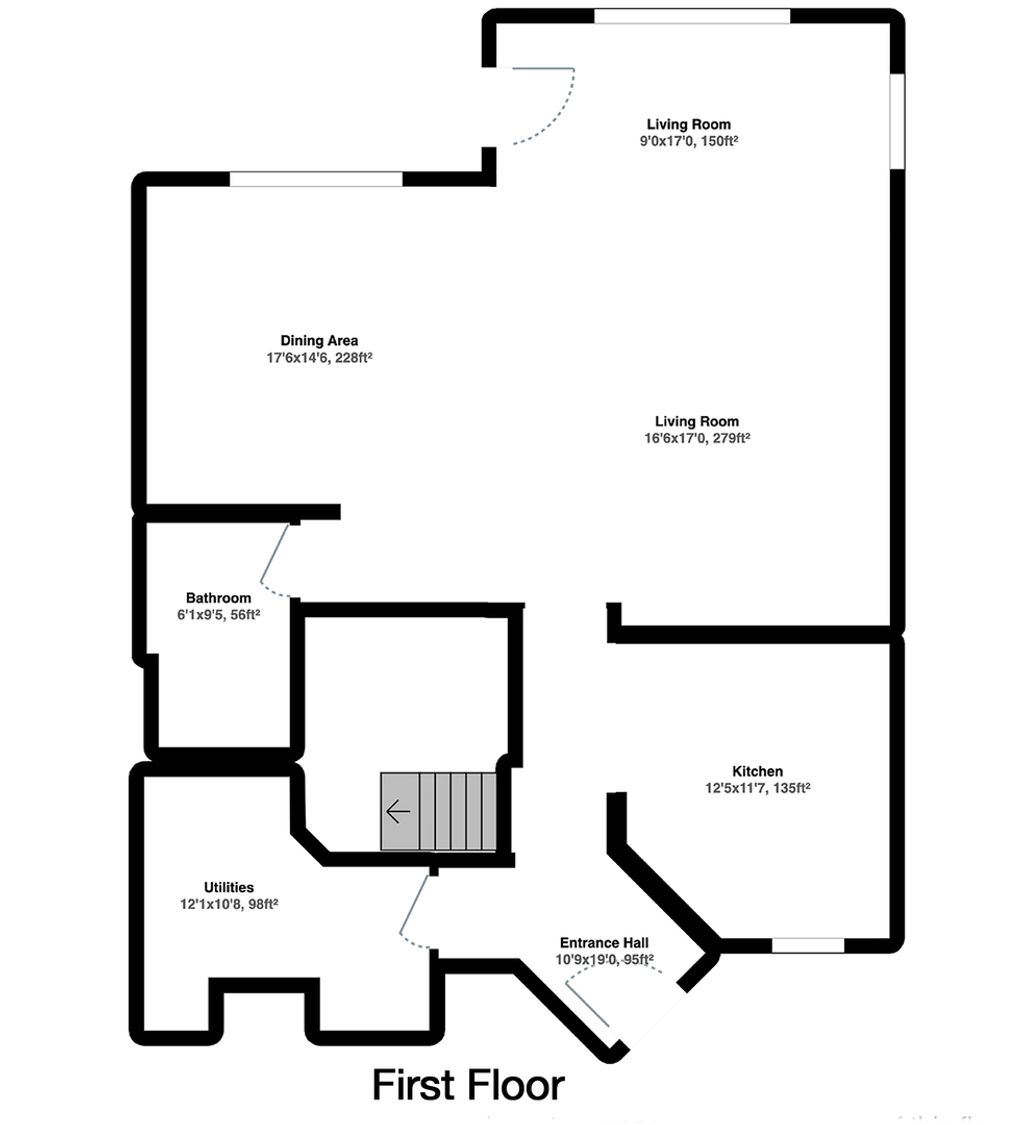
BRAND NEW MIDDLE UNIT 2-STORY 2 BEDS + LOFT / 2.1 BATHS SLAB TOWN HOUSE AVAILABLE IN LATE DECEMBER 2025 WITH JOHNSBURG SCHOOLS! 6 Plans to Choose from including Three Ranch Style Town Houses and Three Two Story Town Houses. TOWNHOUSE IS LOCATED IN A PLANNED URBAN DEVELOPMENT (PUD) AND IS APPROVED FOR FHA, VA AND CONVENTIONAL FINANCING! Tucked away in a corner of scenic McHenry county, Remington Grove boasts quality new townhomes in Johnsburg. This is a beautiful area that still maintains its small town charm. Great schools! 77 NEW CONSTRUCTION LUXURY TOWN HOUSES TO BE BUILT!

DAYS ON MARKET 5 LAST UPDATED 2/17/2026
TRACT Remington Grove YEAR BUILT 2026
COMMUNITY Holiday Hills / Johnsburg / McHenry / Lakemoor / GARAGE SPACES 2.0
COUNTY McHenry STATUS Active
PROPERTY TYPE(S) Condo/Townhouse/Co-Op

SCHOOLS
School District Johnsburg High School
Elementary School Ringwood School Primary Ctr
Jr. High School Johnsburg Junior High School
High School Johnsburg High School


ADDITIONAL DETAILS
AIR Central Air
AIR CONDITIONING Yes
AMENITIES Insurance, Snow Removal
APPLIANCES Dishwasher, Disposal, Range
AREA Holiday Hills / Johnsburg / McHenry / Lakemoor /
BASEMENT None
CONSTRUCTION Vinyl Siding
GARAGE Attached Garage, Yes
HEAT Forced Air, Natural Gas
HOA DUES 219
LOT 0
LOT DIMENSIONS 30 X 100
PARKING Asphalt, Garage Door Opener, Attached, Garage
SEWER Public Sewer
STORIES 2
SUBDIVISION Remington Grove
WATER Public
MORTGAGE CALCULATOR
   

TOTAL MONTHLY PAYMENT

0
P
I
*Estimate only

SATELLITE VIEW



 
CONTACT US ABOUT 3924 MONICA LANE
 / 
We respect your online privacy and will never spam you. By submitting this form with your telephone number you are consenting for Humderto Garcia to contact you even if your name is on a Federal or State "Do not call List".

Listed with RE/MAX Plaza
The data relating to real estate for sale on this web site comes in part from the Broker ReciprocitySM Program of MRED. All real estate listings are marked with the Broker ReciprocitySM logo or the MRED Broker ReciprocitySM thumbnail logo (a little black house) and detailed information about them includes the name of the listing brokers.

The broker providing these data believes them to be correct, but advises interested parties to confirm them before relying on them in a purchase decision.

Copyright 2026 MRED. All rights reserved.

MRED Logo

This IDX solution is (c) Diverse Solutions 2026.