|
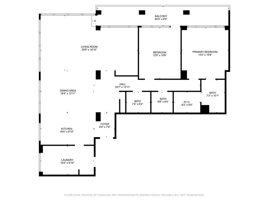
Don't miss the chance to call this special home yours! Perched high above the city, this beautifully remodeled former three-bedroom has been reimagined into an expansive two-bedroom, two-and-a-half-bath residence with a rare oversized laundry and mudroom. From the moment you step inside, you're welcomed by breathtaking lake and city views that deliver a "wow" factor in every room. A stunning forty-foot east-facing balcony spans the living area, offering the perfect setting to enjoy morning coffee as the sun rises over Lake Michigan or to unwind with a glass of wine as the skyline sparkles at sunset. The thoughtful open layout and high-end finishes make this home ideal for both everyday living and elegant entertaining, all in one of Chicago's most coveted Gold Coast addresses. With nine-foot ceilings, a move-in ready design, and panoramic views of Lake Michigan and the city lights, this home delivers both comfort and sophistication. Residents enjoy five-star amenities including a 24-hour door staff, a fully equipped fitness center, an indoor pool, a sundeck, and a hospitality room with catering kitchen. All of this is just steps to world-class shopping, fine dining, and the very best of the Gold Coast lifestyle.
| DAYS ON MARKET | 39 | LAST UPDATED | 2/17/2026 |
|---|---|---|---|
| YEAR BUILT | 1964 | COMMUNITY | CHI - Near North Side |
| GARAGE SPACES | 2.0 | COUNTY | Cook |
| STATUS | Active | PROPERTY TYPE(S) | Condo/Townhouse/Co-Op |
| ADDITIONAL DETAILS | |
| AIR | Central Air |
|---|---|
| AIR CONDITIONING | Yes |
| AMENITIES | Insurance, Internet, Security, Snow Removal, Water |
| AREA | CHI - Near North Side |
| BASEMENT | None |
| CONSTRUCTION | Concrete, Glass |
| EXTERIOR | Balcony |
| GARAGE | Attached Garage, Yes |
| HEAT | Electric |
| HOA DUES | 3033 |
| INTERIOR | Elevator, Entrance Foyer, High Ceilings, Storage, Walk-In Closet(s) |
| LOT | 0 |
| LOT DIMENSIONS | Common |
| PARKING | Leased, Attached, Garage |
| SEWER | Public Sewer |
| STORIES | 55 |
| TAXES | 18467 |
| VIEW | Yes |
| VIEW DESCRIPTION | Water |
| WATER | Public |
MORTGAGE CALCULATOR
TOTAL MONTHLY PAYMENT
0
P
I
*Estimate only
| SATELLITE VIEW |
| / | |
We respect your online privacy and will never spam you. By submitting this form with your telephone number
you are consenting for Humderto
Garcia to contact you even if your name is on a Federal or State
"Do not call List".
Listed with @properties Christie's International Real Estate
The data relating to real estate for sale on this web site comes in part from the Broker ReciprocitySM Program of MRED. All real estate listings are marked with the Broker ReciprocitySM logo or the MRED Broker ReciprocitySM thumbnail logo (a little black house) and detailed information about them includes the name of the listing brokers.
The broker providing these data believes them to be correct, but advises interested parties to confirm them before relying on them in a purchase decision.
Copyright 2026 MRED. All rights reserved.

The broker providing these data believes them to be correct, but advises interested parties to confirm them before relying on them in a purchase decision.
Copyright 2026 MRED. All rights reserved.
This IDX solution is (c) Diverse Solutions 2026.