|
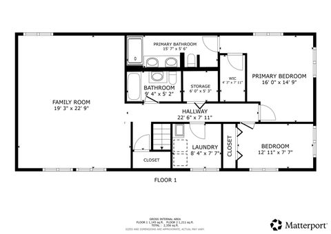
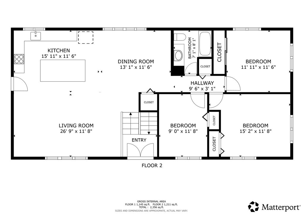
Welcome to this beautifully remodeled home in Lake Bluff offering modern design, space, and functionality. Fully renovated in 2026 with a stunning primary suite and open concept layout, this 5 bedroom, 3 full bath home features a open concept kitchen, living room, and dining room area, a huge family room, attached 2-car garage, and a detached 6-car garage that's ideal for car enthusiasts, a workshop, hobbyists or just extra storage. Step inside to a bright and airy living room featuring vaulted ceilings, large windows and recessed lighting. The dining room flows seamlessly with the kitchen and living room, creating an ideal setup for everyday living and entertaining. The beautifully updated kitchen showcases modern cabinetry, quartz countertops, stainless steel appliances, and a large island with a waterfall feature and seating. The spacious primary suite offers a large walk-in closet and a luxurious en-suite bathroom with dual sinks and a stunning shower featuring beautiful tile work and an accent wall. Four additional bedrooms provide flexible living space for family, guests, or for a home office. Two additional full bathrooms with modern finishes, tile surrounds, and tub/shower combos. The lower level boasts a huge family room, laundry room, with plenty of additional living space. New luxury vinyl plank flooring throughout, new windows, fixtures, and fresh paint make this home truly move-in ready. Located close to parks, schools, downtown Lake Bluff, shopping, dining, and more, this beautifully updated home has it all.
| DAYS ON MARKET | 46 | LAST UPDATED | 2/20/2026 |
|---|---|---|---|
| YEAR BUILT | 1978 | COMMUNITY | Lake Bluff |
| GARAGE SPACES | 8.0 | COUNTY | Lake |
| STATUS | Active | PROPERTY TYPE(S) | Single Family |
| School District | Lake Forest High School |
|---|---|
| Elementary School | Lake Bluff Elementary School |
| Jr. High School | Lake Bluff Middle School |
| High School | Lake Forest High School |
| ADDITIONAL DETAILS | |
| AIR | Central Air |
|---|---|
| AIR CONDITIONING | Yes |
| APPLIANCES | Dishwasher, Dryer, Range, Refrigerator, Stainless Steel Appliance(s), Washer |
| AREA | Lake Bluff |
| BASEMENT | None, Sump Pump, Yes |
| CONSTRUCTION | Brick, Wood Siding |
| GARAGE | Attached Garage, Yes |
| HEAT | Natural Gas |
| INTERIOR | Vaulted Ceiling(s), Walk-In Closet(s) |
| LOT | 0.277 acre(s) |
| LOT DIMENSIONS | 87 x 135 |
| PARKING | Asphalt, Garage Door Opener, Garage, Attached, Detached |
| SEWER | Public Sewer |
| STYLE | Bi-Level, Contemporary |
| TAXES | 10301 |
| WATER | Public |
MORTGAGE CALCULATOR
TOTAL MONTHLY PAYMENT
0
P
I
*Estimate only
| SATELLITE VIEW |
| / | |
We respect your online privacy and will never spam you. By submitting this form with your telephone number
you are consenting for Humderto
Garcia to contact you even if your name is on a Federal or State
"Do not call List".
Listed with RE/MAX Suburban
The data relating to real estate for sale on this web site comes in part from the Broker ReciprocitySM Program of MRED. All real estate listings are marked with the Broker ReciprocitySM logo or the MRED Broker ReciprocitySM thumbnail logo (a little black house) and detailed information about them includes the name of the listing brokers.
The broker providing these data believes them to be correct, but advises interested parties to confirm them before relying on them in a purchase decision.
Copyright 2026 MRED. All rights reserved.

The broker providing these data believes them to be correct, but advises interested parties to confirm them before relying on them in a purchase decision.
Copyright 2026 MRED. All rights reserved.
This IDX solution is (c) Diverse Solutions 2026.