|
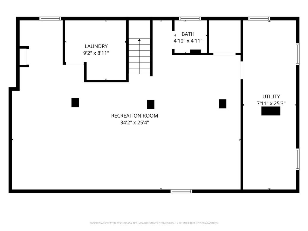
MULTIPLE OFFERS received HIGHEST 7BEST DUE BY FEB 24 @ 5:00pm.Welcome Home to this stunning, sun-filled 3 bedroom, 2.5 bath completely updated all-brick ranch ideally located on Chicago's desirable NW side-just steps away from Norridge & Harwood Heights. This beautifully maintained home features hardwood floors, oversized windows, can lighting throughout, and spacious living room filled with natural light. Every room freshly painted Feb 2026.The updated kitchen offers 42"cabinets, granite counters, tiled backsplash, SS appliances, and a new dishwasher (2025). The kitchens opens to a bright dining area-perfect for everyday living and entertaining. The large primary bedroom includes a remodeled en-suite bathroom with a standup shower and double door closet. Generously sized 2nd & 3rd bedrooms offer ample closet space and easy access to the remodeled second full bath featuring ceramic tiled shower/ tub combo.All 3 bedrooms include new ceiling fans, blackout blinds and hardwood floors. The renovated basement provides abundant storage, convenient half bath, cedar closet, laundry room with double sink, workbench/ storage area, gas line for a 2nd stove, and a new sump pump with battery backup. Large concrete driveway and back patio with custom wooded gate for privacy. All brick 2.5 car garage with storage. Additional updates include Roof (2018), newer windows, High-efficiency furnace & AC (2016), Smart thermostats, exterior tuck pointing & caulking (2024), outside lighting on timers. The professionally redone landscaping features a slow drip watering system for plants and garden beds. Move-in ready, thoughtfully updated, and in an unbeatable location-this one truly has it all. Quick close possible!
| DAYS ON MARKET | 28 | LAST UPDATED | 2/24/2026 |
|---|---|---|---|
| YEAR BUILT | 1956 | COMMUNITY | CHI - Norwood Park |
| GARAGE SPACES | 2.0 | COUNTY | Cook |
| STATUS | Conditional | PROPERTY TYPE(S) | Single Family |
| School District | Taft High School |
|---|---|
| Elementary School | Garvey Elementary School |
| High School | Taft High School |
| ADDITIONAL DETAILS | |
| AIR | Central Air |
|---|---|
| AIR CONDITIONING | Yes |
| APPLIANCES | Dishwasher, Dryer, Gas Cooktop, Microwave, Range, Refrigerator, Stainless Steel Appliance(s), Washer |
| AREA | CHI - Norwood Park |
| BASEMENT | Finished, Full, Yes |
| CONSTRUCTION | Brick |
| GARAGE | Yes |
| HEAT | Forced Air, Natural Gas |
| INTERIOR | Granite Counters |
| LOT | 5053 sq ft |
| LOT DIMENSIONS | 40x125 |
| PARKING | Concrete, Garage Door Opener, Detached, Driveway, Garage |
| SEWER | Public Sewer |
| STYLE | Ranch |
| TAXES | 5846 |
MORTGAGE CALCULATOR
TOTAL MONTHLY PAYMENT
0
P
I
*Estimate only
| SATELLITE VIEW |
| / | |
We respect your online privacy and will never spam you. By submitting this form with your telephone number
you are consenting for Humderto
Garcia to contact you even if your name is on a Federal or State
"Do not call List".
Listed with Keller Williams Infinity
The data relating to real estate for sale on this web site comes in part from the Broker ReciprocitySM Program of MRED. All real estate listings are marked with the Broker ReciprocitySM logo or the MRED Broker ReciprocitySM thumbnail logo (a little black house) and detailed information about them includes the name of the listing brokers.
The broker providing these data believes them to be correct, but advises interested parties to confirm them before relying on them in a purchase decision.
Copyright 2026 MRED. All rights reserved.

The broker providing these data believes them to be correct, but advises interested parties to confirm them before relying on them in a purchase decision.
Copyright 2026 MRED. All rights reserved.
This IDX solution is (c) Diverse Solutions 2026.