|
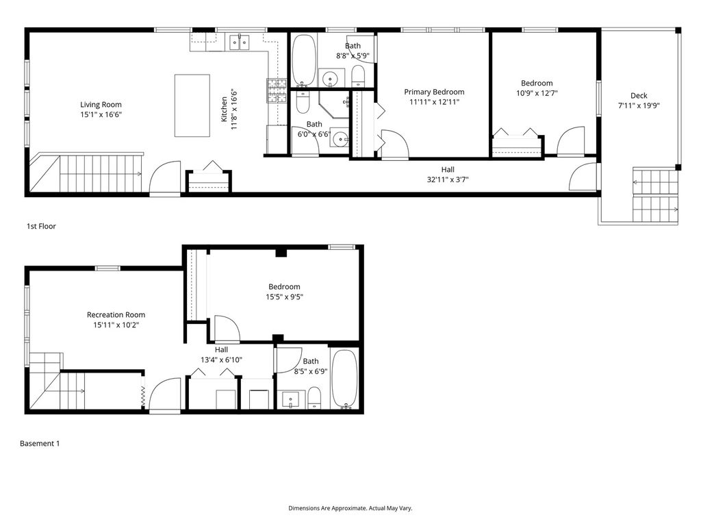
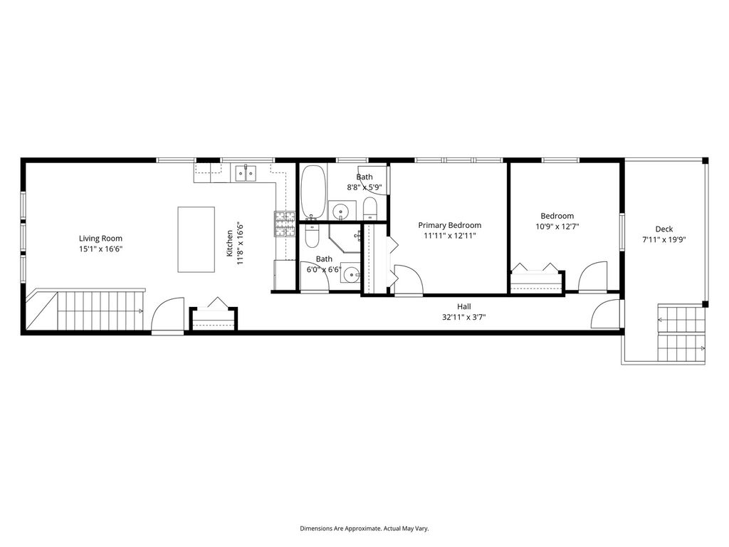
Fall in love with this renovated West Ridge duplex, offering 1,500 sq. ft. of modern, multi-level living. This is one of the largest layouts in the building with 3 spacious bedrooms and 3 full baths, there is plenty of space for you, your work space, and your guests. The beautiful kitchen has stainless steel appliances, espresso cabinets, white countertops, and an open layout making it perfect for cooking and entertaining. 2 bedrooms and 2 bathrooms are on the main level with one of those being the king size primary bedroom with ensuite. The large lower level has an additional living space with high ceilings, an additional entrance, and the third bedroom and bathroom which makes it perfect for family, roommate living, or an in law arrangement. This unit also has hardwood floors, central HVAC, laundry in unit, a storage unit, a deck, and in an investor and pet-friendly building which makes it functional, stylish, as well as being a great investment. The building also recently completed work on outer stairs and decks (2025), a new water heater (2025), tuck pointing (2023), and roof repairs (2020) so there is nothing left to worry about. Plenty of restaurants, stores, public transit options, and both Warren Park and West Ridge Nature Park are within walking distance giving this home a 91 Walk Score and it also has permitted street parking available. Make an appointment to see this beautiful unit today!
| DAYS ON MARKET | 28 | LAST UPDATED | 3/18/2026 |
|---|---|---|---|
| YEAR BUILT | 1927 | COMMUNITY | CHI - West Ridge |
| COUNTY | Cook | STATUS | Pending |
| PROPERTY TYPE(S) | Condo/Townhouse/Co-Op |
| School District | Senn High School |
|---|---|
| Elementary School | G Armstrong Elementary School In |
| Jr. High School | Hope College Prep High School |
| High School | Senn High School |
| ADDITIONAL DETAILS | |
| AIR | Central Air |
|---|---|
| AIR CONDITIONING | Yes |
| AMENITIES | Insurance, Snow Removal, Water |
| APPLIANCES | Dishwasher, Dryer, Microwave, Range, Refrigerator, Washer, Water Purifier |
| AREA | CHI - West Ridge |
| BASEMENT | None |
| CONSTRUCTION | Brick |
| HEAT | Forced Air, Natural Gas |
| HOA DUES | 480 |
| INTERIOR | In-Law Floorplan, Open Floorplan, Storage |
| LOT | 0 |
| LOT DIMENSIONS | COMMON |
| SEWER | Public Sewer |
| STORIES | 3 |
| TAXES | 4830.64 |
| WATER | Public |
MORTGAGE CALCULATOR
TOTAL MONTHLY PAYMENT
0
P
I
*Estimate only
| SATELLITE VIEW |
| / | |
We respect your online privacy and will never spam you. By submitting this form with your telephone number
you are consenting for Humderto
Garcia to contact you even if your name is on a Federal or State
"Do not call List".
Listed with Compass
The data relating to real estate for sale on this web site comes in part from the Broker ReciprocitySM Program of MRED. All real estate listings are marked with the Broker ReciprocitySM logo or the MRED Broker ReciprocitySM thumbnail logo (a little black house) and detailed information about them includes the name of the listing brokers.
The broker providing these data believes them to be correct, but advises interested parties to confirm them before relying on them in a purchase decision.
Copyright 2026 MRED. All rights reserved.

The broker providing these data believes them to be correct, but advises interested parties to confirm them before relying on them in a purchase decision.
Copyright 2026 MRED. All rights reserved.
This IDX solution is (c) Diverse Solutions 2026.