|
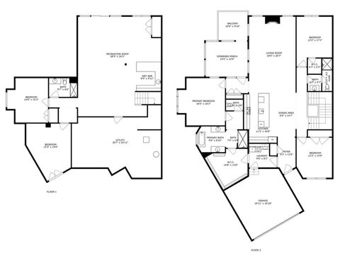
An exceptional opportunity to own new construction in one of the most desirable pockets of Western Springs. From the moment you step inside this beautiful ranch townhome, you'll be captivated by the soaring vaulted ceilings and gleaming hardwood floors that flow throughout. The main level is anchored by an open-concept kitchen, dining area, and expansive living room with fireplace-designed for both effortless entertaining and everyday comfort. Elevated design elements, clean architectural lines, and abundant natural light create a timeless, modern aesthetic throughout. The primary suite offers a private retreat featuring a spa-like bathroom with a soaking tub, dual sinks, and a separate shower; complemented by two additional bedrooms and a full bath on the main level. A dedicated laundry room on this floor enhances convenience and livability. Just off the main living space, the screened-in porch extends the home outdoors-ideal for quiet mornings or evening gatherings. The walk-out lower level adds remarkable versatility, featuring a spacious recreation room with wet bar, two additional bedrooms, and a full bath-perfect for guests, multigenerational living, or a private work-from-home environment. A substantial utility room provides exceptional storage rarely found in new construction homes. A rare combination of new construction and luxury finishes, located in the coveted Timber Trails development close to parks, top-rated schools, and commuter access.
| DAYS ON MARKET | 26 | LAST UPDATED | 2/28/2026 |
|---|---|---|---|
| YEAR BUILT | 2025 | COMMUNITY | Western Springs |
| GARAGE SPACES | 2.0 | COUNTY | Cook |
| STATUS | Conditional | PROPERTY TYPE(S) | Condo/Townhouse/Co-Op |
| School District | Lyons Twp High School |
|---|---|
| Elementary School | Highlands Elementary School |
| Jr. High School | Highlands Middle School |
| High School | Lyons Twp High School |
| ADDITIONAL DETAILS | |
| AIR | Central Air |
|---|---|
| AIR CONDITIONING | Yes |
| AMENITIES | Insurance, Snow Removal |
| APPLIANCES | Dishwasher, Disposal, Dryer, Freezer, Range, Range Hood, Refrigerator, Washer, Wine Refrigerator |
| AREA | Western Springs |
| BASEMENT | Finished, Full, Yes |
| CONSTRUCTION | Brick |
| FIREPLACE | Yes |
| GARAGE | Attached Garage, Yes |
| HEAT | Natural Gas |
| HOA DUES | 490 |
| INTERIOR | Beamed Ceilings, Open Floorplan, Vaulted Ceiling(s), Walk-In Closet(s), Wet Bar |
| LOT | 0 |
| LOT DIMENSIONS | 40 x 115 x 102 X 118 |
| PARKING | Attached, Garage |
| SEWER | Public Sewer |
| STORIES | 1 |
MORTGAGE CALCULATOR
TOTAL MONTHLY PAYMENT
0
P
I
*Estimate only
| SATELLITE VIEW |
| / | |
We respect your online privacy and will never spam you. By submitting this form with your telephone number
you are consenting for Humderto
Garcia to contact you even if your name is on a Federal or State
"Do not call List".
Listed with Coldwell Banker Realty
The data relating to real estate for sale on this web site comes in part from the Broker ReciprocitySM Program of MRED. All real estate listings are marked with the Broker ReciprocitySM logo or the MRED Broker ReciprocitySM thumbnail logo (a little black house) and detailed information about them includes the name of the listing brokers.
The broker providing these data believes them to be correct, but advises interested parties to confirm them before relying on them in a purchase decision.
Copyright 2026 MRED. All rights reserved.

The broker providing these data believes them to be correct, but advises interested parties to confirm them before relying on them in a purchase decision.
Copyright 2026 MRED. All rights reserved.
This IDX solution is (c) Diverse Solutions 2026.