|
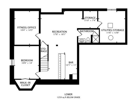
Welcome home to this beautifully maintained 4+1 bedroom, 3.5-bath gem nestled in the heart of Bolingbrook! Offering generous living space, versatile layout options, and thoughtful updates throughout, this home perfectly blends comfort, function, and opportunity. Step inside to an inviting and spacious floor plan designed for both everyday living and effortless entertaining. The large family room features a cozy gas-start fireplace - the perfect setting for relaxing evenings. The eat-in kitchen offers abundant cabinetry and counter space, flowing seamlessly into the formal dining and living rooms, creating an ideal layout for hosting family and friends. Need flexible space? The main-level den with an attached 3-season room provides endless possibilities - whether you envision a home office, reading retreat, or additional entertaining area. The fully finished basement is truly a standout feature! It includes an additional bedroom, exercise room, full bathroom with heated floors, and a second kitchen with heated floors - making it ideal for in-law living, extended guests, or private living quarters. An additional storage room ensures everything has its place. Major updates provide peace of mind, including: New furnace New AC unit, New water heater, Roof replaced in 2016. With its separate living potential, finished basement with kitchen, and spacious layout, this property also presents a great investment opportunity - perfect for multi-generational living or income-producing possibilities. Move-in ready and meticulously cared for, this home offers comfort, versatility, and long-term value in a fantastic location. Don't miss your opportunity to own a property that works for you in more ways than one! SELLING "AS IS". HOME WARRANTY PROVIDED.
| DAYS ON MARKET | 12 | LAST UPDATED | 3/10/2026 |
|---|---|---|---|
| YEAR BUILT | 1995 | COMMUNITY | Bolingbrook |
| GARAGE SPACES | 2.0 | COUNTY | Will |
| STATUS | Active | PROPERTY TYPE(S) | Single Family |
| School District | Bolingbrook High School |
|---|---|
| Elementary School | Independence Elementary School |
| Jr. High School | Jane Addams Middle School |
| High School | Bolingbrook High School |
| ADDITIONAL DETAILS | |
| AIR | Ceiling Fan(s), Central Air |
|---|---|
| AIR CONDITIONING | Yes |
| APPLIANCES | Dishwasher, Dryer, Microwave, Range, Refrigerator, Stainless Steel Appliance(s), Washer |
| AREA | Bolingbrook |
| BASEMENT | Finished, Full, Yes |
| CONSTRUCTION | Frame |
| FIREPLACE | Yes |
| GARAGE | Attached Garage, Yes |
| HEAT | Natural Gas, Radiant Floor |
| INTERIOR | Vaulted Ceiling(s), Walk-In Closet(s) |
| LOT | 0 |
| LOT DIMENSIONS | 13566 |
| PARKING | Attached, Garage |
| SEWER | Public Sewer |
| STYLE | Colonial |
| TAXES | 12699 |
| WATER | Public |
MORTGAGE CALCULATOR
TOTAL MONTHLY PAYMENT
0
P
I
*Estimate only
| SATELLITE VIEW |
| / | |
We respect your online privacy and will never spam you. By submitting this form with your telephone number
you are consenting for Humderto
Garcia to contact you even if your name is on a Federal or State
"Do not call List".
Listed with Berkshire Hathaway HomeServices Starck Real Estate
The data relating to real estate for sale on this web site comes in part from the Broker ReciprocitySM Program of MRED. All real estate listings are marked with the Broker ReciprocitySM logo or the MRED Broker ReciprocitySM thumbnail logo (a little black house) and detailed information about them includes the name of the listing brokers.
The broker providing these data believes them to be correct, but advises interested parties to confirm them before relying on them in a purchase decision.
Copyright 2026 MRED. All rights reserved.

The broker providing these data believes them to be correct, but advises interested parties to confirm them before relying on them in a purchase decision.
Copyright 2026 MRED. All rights reserved.
This IDX solution is (c) Diverse Solutions 2026.