|
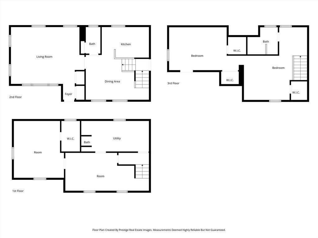
**Right in the heart of Lansing, this home just feels like "home."** Whether you need space for a returning college kid, an in-law setup, or simply room to grow, this lovingly maintained Cape Cod offers flexibility without sacrificing charm. The main level is bright and welcoming with a spacious dining, plus a convenient half bath. Upstairs offers two comfortable bedrooms, a full bath, and/or a generous 13' x 31' space that can easily become a cozy family room, private suite, or work-from-home space. The semi-finished basement gives you even more room to spread out, while the fenced, tree-lined backyard is perfect for kids, pets, or summer evenings outside. Definitely a plus to be on a corner lot with a 2.5-car garage. Just steps from Main Street, shopping, restaurants, and an easy commute into Chicago - this is the kind of home where memories are waiting to be made.
| DAYS ON MARKET | 26 | LAST UPDATED | 2/21/2026 |
|---|---|---|---|
| YEAR BUILT | 1901 | COMMUNITY | Lansing |
| GARAGE SPACES | 2.5 | COUNTY | Cook |
| STATUS | Active | PROPERTY TYPE(S) | Single Family |
| ADDITIONAL DETAILS | |
| AIR | Ceiling Fan(s), Wall Unit(s) |
|---|---|
| AIR CONDITIONING | Yes |
| APPLIANCES | Dishwasher, Dryer, Microwave, Range, Refrigerator, Washer |
| AREA | Lansing |
| BASEMENT | Full, Partially Finished, Sump Pump, Yes |
| CONSTRUCTION | Aluminum Siding |
| GARAGE | Attached Garage, Yes |
| HEAT | Natural Gas |
| INTERIOR | In-Law Floorplan |
| LOT | 5807 sq ft |
| LOT DESCRIPTION | Corner Lot, Landscaped |
| LOT DIMENSIONS | 132 X 44 |
| PARKING | Asphalt, Garage Door Opener, Attached, Off Street, Driveway, Garage |
| SEWER | Public Sewer |
| STYLE | Cape Cod |
| TAXES | 4202 |
MORTGAGE CALCULATOR
TOTAL MONTHLY PAYMENT
0
P
I
*Estimate only
| SATELLITE VIEW |
| / | |
We respect your online privacy and will never spam you. By submitting this form with your telephone number
you are consenting for Humderto
Garcia to contact you even if your name is on a Federal or State
"Do not call List".
Listed with RE/MAX 10
The data relating to real estate for sale on this web site comes in part from the Broker ReciprocitySM Program of MRED. All real estate listings are marked with the Broker ReciprocitySM logo or the MRED Broker ReciprocitySM thumbnail logo (a little black house) and detailed information about them includes the name of the listing brokers.
The broker providing these data believes them to be correct, but advises interested parties to confirm them before relying on them in a purchase decision.
Copyright 2026 MRED. All rights reserved.

The broker providing these data believes them to be correct, but advises interested parties to confirm them before relying on them in a purchase decision.
Copyright 2026 MRED. All rights reserved.
This IDX solution is (c) Diverse Solutions 2026.