|
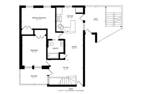
Welcome home to this bright north-west corner unit. This duplex down has 3 bedrooms, 2 bathrooms in a brick, boutique courtyard building with a deeded parking spot included in price. The home is NOT directly located on Foster. It is situated in the back corner of the building. This Bowmanville location could be considered 3 different neighborhoods. Lincoln Square, a hint of Andersonville and Ravenswood. You pick and there is a short skip to Winnemac Park. This unique duplex down offers two outdoor spaces. A brick balcony it is located right off the sitting area with a beauitful view of the courtyard. The patio is located right off the kitchen. Both outdoor spaces are located off of the first level. Rest assure in 2024 the heating and cooling were replaced with a Trane furnace and central air condenser. Oak hardwood floors through out the first floor and the staircase lending to the lower level. The lower level floor was replaced in 2025 with VOC LVP flooring a luxury vinyl. The open kitchen offers an island with counter height room for bar stools. The kitchen has a large pantry. Updated stainless steel appliances. Environmental water systems kitchen sink cold tap water filter, installed in 2023. InSinkErator kitchen sink disposal installed in 2023. The primary en suite is located off of the kitchen has been updated with vanity, mirror, and faucet 2026 in the bathroom. The dining room is right off off the kitchen has another closet. Could be use as another pantry or just a coat closet. Second bedroom is a generous room size. Located right off the sitting room and the balcony.The lower level offers an amazing family room and an even larger dining room. The dining room has a built in dry-bar with cabinets and granite counter- tops with a tile backsplash. The lower level has excellent ceiling height. Right before you enter the third bathroom the front loader washer and dryer with a laundry station are located to your left and right. It has a cabinet with a counter top to fold laundry and store laundry soap. There are two extra large walk in storage closets off of the lower level stairs and living room. The sump pump and ejector pump replaced 2026. This home is steps to Damen Brown line and Ravenswood Metra.
| DAYS ON MARKET | 23 | LAST UPDATED | 4/26/2026 |
|---|---|---|---|
| YEAR BUILT | 1918 | COMMUNITY | CHI - Lincoln Square |
| COUNTY | Cook | STATUS | Conditional |
| PROPERTY TYPE(S) | Condo/Townhouse/Co-Op |
| School District | Amundsen High School |
|---|---|
| Elementary School | Chappell Elementary School |
| High School | Amundsen High School |
| ADDITIONAL DETAILS | |
| AIR | Ceiling Fan(s), Central Air |
|---|---|
| AIR CONDITIONING | Yes |
| AMENITIES | Insurance, Snow Removal, Water |
| APPLIANCES | Dishwasher, Disposal, Dryer, Microwave, Range, Refrigerator, Stainless Steel Appliance(s), Washer |
| AREA | CHI - Lincoln Square |
| BASEMENT | None, Sump Pump, Yes |
| CONSTRUCTION | Brick |
| EXTERIOR | Balcony |
| HEAT | Forced Air, Natural Gas |
| HOA DUES | 456 |
| INTERIOR | Built-in Features, Dry Bar, Granite Counters, Open Floorplan, Pantry, Storage, Walk-In Closet(s) |
| LOT | 0 |
| LOT DESCRIPTION | Corner Lot, Landscaped, Views |
| LOT DIMENSIONS | COMMON |
| PARKING | Concrete, Shared Driveway, Assigned, Alley Access, Parking Lot, Garage Faces Side, Driveway |
| SEWER | Public Sewer |
| STORIES | 3 |
| TAXES | 8432.1 |
| VIEW | Yes |
MORTGAGE CALCULATOR
TOTAL MONTHLY PAYMENT
0
P
I
*Estimate only
| SATELLITE VIEW |
| / | |
We respect your online privacy and will never spam you. By submitting this form with your telephone number
you are consenting for Humderto
Garcia to contact you even if your name is on a Federal or State
"Do not call List".
Listed with @properties Christie's International Real Estate
The data relating to real estate for sale on this web site comes in part from the Broker ReciprocitySM Program of MRED. All real estate listings are marked with the Broker ReciprocitySM logo or the MRED Broker ReciprocitySM thumbnail logo (a little black house) and detailed information about them includes the name of the listing brokers.
The broker providing these data believes them to be correct, but advises interested parties to confirm them before relying on them in a purchase decision.
Copyright 2026 MRED. All rights reserved.

The broker providing these data believes them to be correct, but advises interested parties to confirm them before relying on them in a purchase decision.
Copyright 2026 MRED. All rights reserved.
This IDX solution is (c) Diverse Solutions 2026.