|
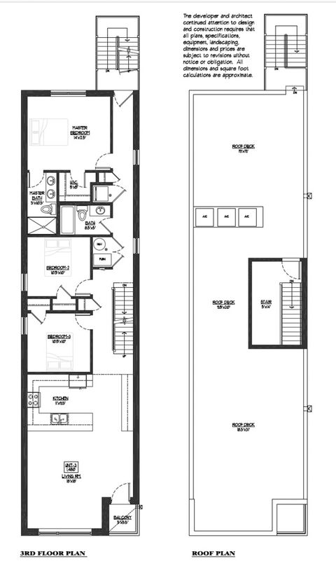
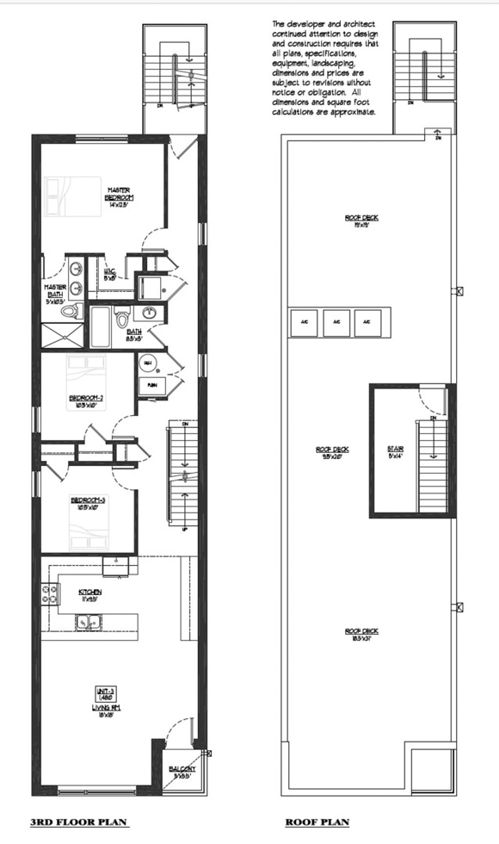
Three Exceptional Residences in a striking full-masonry, intimate three-unit building blending contemporary design with the stately rhythm of Bronzeville's historic streetscape. The architecture is modern yet timeless, pairing clean lines with generous scale and spaces designed for real life-easy entertaining, comfortable everyday living, and flexibility to suit your lifestyle. Each extra-long homes maximize livable square footage and flow, creating homes that feel open, refined, and highly functional. Finishes are fresh, modern, and of exceptional quality, delivering an elevated living experience without sacrificing comfort or practicality. Signature features include full masonry construction, white oak flooring, large-format porcelain tile, minimal-step showers with ribbon drains, expansive kitchen peninsula ideal for gathering, network distribution closet for modern connectivity, thoughtful layouts with flexibility for living, working, and entertaining, and generous roof deck access. Perfectly positioned in the heart of historic Bronzeville, these residences offer unmatched convenience. The Green Line and CTA bus service are less than a block away, with neighborhood favorites such as Simply Soups, Salads & Sandwiches, and Two Fish Crab Shack, as well as local coffee spots, art galleries, shopping, and Washington Park nearby. Enjoy quick access to the Lakefront, South Loop, and Hyde Park-just minutes by bike or car. Fusion Homes is known for delivering exceptional quality and lasting value, and this offering is no exception-providing space, style, and craftsmanship that stand out in today's market. Ideal for those seeking modern living in a vibrant, transit-rich neighborhood.
| DAYS ON MARKET | 38 | LAST UPDATED | 2/23/2026 |
|---|---|---|---|
| YEAR BUILT | 2025 | COMMUNITY | CHI - Grand Boulevard |
| GARAGE SPACES | 1.0 | COUNTY | Cook |
| STATUS | Active | PROPERTY TYPE(S) | Condo/Townhouse/Co-Op |
| ADDITIONAL DETAILS | |
| AIR | Central Air |
|---|---|
| AIR CONDITIONING | Yes |
| AMENITIES | Insurance, Snow Removal |
| APPLIANCES | Dishwasher, Dryer, Gas Oven, Microwave, Range, Refrigerator, Stainless Steel Appliance(s), Washer |
| AREA | CHI - Grand Boulevard |
| BASEMENT | None |
| CONSTRUCTION | Brick |
| GARAGE | Yes |
| HEAT | Forced Air, Natural Gas |
| HOA DUES | 180 |
| INTERIOR | Built-in Features, Open Floorplan, Walk-In Closet(s) |
| LOT | 0 |
| LOT DIMENSIONS | Common |
| PARKING | Garage Door Opener, Detached, Garage |
| SEWER | Public Sewer |
| STORIES | 3 |
| WATER | Public |
MORTGAGE CALCULATOR
TOTAL MONTHLY PAYMENT
0
P
I
*Estimate only
| SATELLITE VIEW |
| / | |
We respect your online privacy and will never spam you. By submitting this form with your telephone number
you are consenting for Humderto
Garcia to contact you even if your name is on a Federal or State
"Do not call List".
Listed with @properties Christie's International Real Estate
The data relating to real estate for sale on this web site comes in part from the Broker ReciprocitySM Program of MRED. All real estate listings are marked with the Broker ReciprocitySM logo or the MRED Broker ReciprocitySM thumbnail logo (a little black house) and detailed information about them includes the name of the listing brokers.
The broker providing these data believes them to be correct, but advises interested parties to confirm them before relying on them in a purchase decision.
Copyright 2026 MRED. All rights reserved.

The broker providing these data believes them to be correct, but advises interested parties to confirm them before relying on them in a purchase decision.
Copyright 2026 MRED. All rights reserved.
This IDX solution is (c) Diverse Solutions 2026.