|
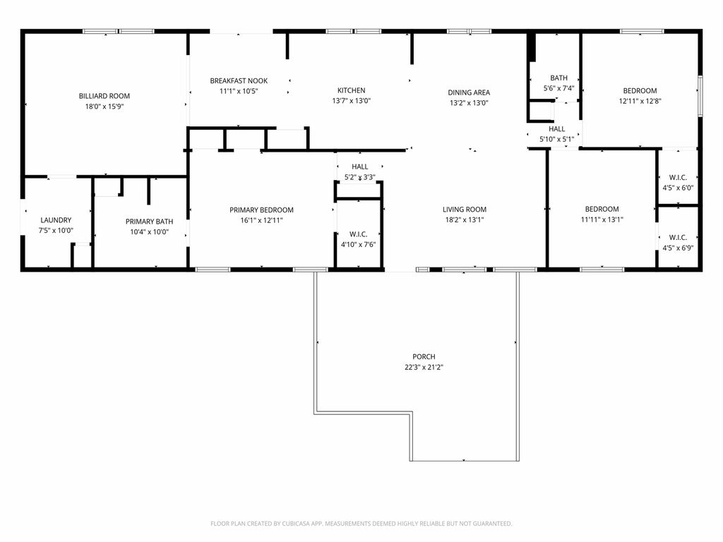
This fully furnished lake house is ready for you to bring your groceries and clothes. The split floor plan is perfect for entertaining. Large living room with a gorgeous view of the lake. Kitchen has an island and loads of cabinet space. Family room/game room is a great place to hang out after a day on the water. Large primary bedroom with 3 closets, large ensuite with separate soaking tub/shower. Two additional bedrooms and full bathroom. Outdoors you can enjoy the large deck with a view of the lake, dock and large yard. There is plenty of patio space for a firepit and chairs. Posts to hang your outdoor lights around the patio to create the perfect ambiance. 1 car detached garage that is oversized for storage.
| DAYS ON MARKET | 45 | LAST UPDATED | 2/24/2026 |
|---|---|---|---|
| YEAR BUILT | 2001 | COMMUNITY | Centralia |
| GARAGE SPACES | 1.0 | COUNTY | Marion |
| STATUS | Active | PROPERTY TYPE(S) | Single Family |
| School District | Centralia High School |
|---|---|
| Elementary School | Raccoon Grade School |
| Jr. High School | Raccoon Grade School |
| High School | Centralia High School |
| ADDITIONAL DETAILS | |
| AIR | Central Air |
|---|---|
| AIR CONDITIONING | Yes |
| APPLIANCES | Dishwasher, Range, Refrigerator |
| AREA | Centralia |
| BASEMENT | None |
| CONSTRUCTION | Vinyl Siding |
| EXTERIOR | Dock |
| GARAGE | Yes |
| HEAT | Propane |
| LOT | 1.07 acre(s) |
| LOT DIMENSIONS | 1.07 |
| PARKING | Shared Driveway, Detached, Garage |
| SEWER | Septic Tank, Aerobic Septic |
| TAXES | 2354.68 |
| VIEW | Yes |
| VIEW DESCRIPTION | Water |
| WATER | Public |
| WATERFRONT | Yes |
| WATERFRONT DESCRIPTION | Lake Front |
MORTGAGE CALCULATOR
TOTAL MONTHLY PAYMENT
0
P
I
*Estimate only
| SATELLITE VIEW |
| / | |
We respect your online privacy and will never spam you. By submitting this form with your telephone number
you are consenting for Humderto
Garcia to contact you even if your name is on a Federal or State
"Do not call List".
Listed with Rod Snow, INC.
The data relating to real estate for sale on this web site comes in part from the Broker ReciprocitySM Program of MRED. All real estate listings are marked with the Broker ReciprocitySM logo or the MRED Broker ReciprocitySM thumbnail logo (a little black house) and detailed information about them includes the name of the listing brokers.
The broker providing these data believes them to be correct, but advises interested parties to confirm them before relying on them in a purchase decision.
Copyright 2026 MRED. All rights reserved.

The broker providing these data believes them to be correct, but advises interested parties to confirm them before relying on them in a purchase decision.
Copyright 2026 MRED. All rights reserved.
This IDX solution is (c) Diverse Solutions 2026.