|
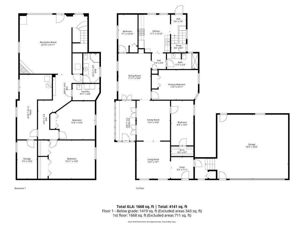
A Rare Historic Beauty in West Chicago with Old World Charm! Step inside one of West Chicago's earliest homes, thoughtfully restored to highlight its timeless elegance. Set on a solid concrete foundation, this charming residence showcases exquisite crown molding, arched doorways, tall ceilings, gleaming hardwood floors, and original built-ins. A cheerful sunroom with French doors opens to a welcoming side porch, seamlessly blending indoor and outdoor living. From the moment you enter the refined front foyer, the home's warmth and character shine. With 4 generously sized bedrooms, 2 full bathrooms, and a heated 2.5-car garage, this property offers both style and practicality. There is an office/flex room next to the kitchen that can be used for a kitchen renovation & expansion. The fully finished walk-out basement is a standout feature especially for a home of this era, complete with a ventless fireplace, large rec room/hangout space, laundry room, storage, two spacious bedrooms, and a full bath-ideal for extended living or comfortable guest accommodations. This exceptional property is truly one-of-a-kind and ready for its next chapter. The home previously sat on the corner of Washington & High Street where it was owned by two prominent physicians in town. The home was then moved to the current location in the 1970's where a new foundation was poured and it became the home of the beloved Dr. Nellie Lee's Veterinary clinic. Don't miss your chance to own this piece rich history in West Chicago! Welcome Home! If the taxes are a deterrent, please call the listing agent to discuss.
| DAYS ON MARKET | 26 | LAST UPDATED | 3/18/2026 |
|---|---|---|---|
| YEAR BUILT | 1890 | COMMUNITY | West Chicago |
| GARAGE SPACES | 2.0 | COUNTY | DuPage |
| STATUS | Conditional | PROPERTY TYPE(S) | Single Family |
| School District | Community High School |
|---|---|
| Elementary School | Turner Elementary School |
| Jr. High School | Leman Middle School |
| High School | Community High School |
| ADDITIONAL DETAILS | |
| AIR | Ceiling Fan(s), Central Air, Zoned |
|---|---|
| AIR CONDITIONING | Yes |
| APPLIANCES | Dishwasher, Disposal, Microwave, Range, Refrigerator |
| AREA | West Chicago |
| BASEMENT | Finished, Sump Pump, Walk-Out Access, Yes |
| CONSTRUCTION | Cedar |
| FIREPLACE | Yes |
| GARAGE | Attached Garage, Yes |
| HEAT | Forced Air, Natural Gas, Zoned |
| HOA DUES | 150 |
| INTERIOR | Cathedral Ceiling(s), Entrance Foyer |
| LOT | 0.34 acre(s) |
| LOT DESCRIPTION | Irregular Lot |
| LOT DIMENSIONS | 71X132X116X51X117 |
| PARKING | Asphalt, Heated Garage, Attached, Garage |
| SEWER | Public Sewer |
| STYLE | Ranch |
| TAXES | 16087 |
| UTILITIES | Cable Available |
| WATER | Public |
MORTGAGE CALCULATOR
TOTAL MONTHLY PAYMENT
0
P
I
*Estimate only
| SATELLITE VIEW |
| / | |
We respect your online privacy and will never spam you. By submitting this form with your telephone number
you are consenting for Humderto
Garcia to contact you even if your name is on a Federal or State
"Do not call List".
Listed with Keller Williams Premiere Properties
The data relating to real estate for sale on this web site comes in part from the Broker ReciprocitySM Program of MRED. All real estate listings are marked with the Broker ReciprocitySM logo or the MRED Broker ReciprocitySM thumbnail logo (a little black house) and detailed information about them includes the name of the listing brokers.
The broker providing these data believes them to be correct, but advises interested parties to confirm them before relying on them in a purchase decision.
Copyright 2026 MRED. All rights reserved.

The broker providing these data believes them to be correct, but advises interested parties to confirm them before relying on them in a purchase decision.
Copyright 2026 MRED. All rights reserved.
This IDX solution is (c) Diverse Solutions 2026.