|
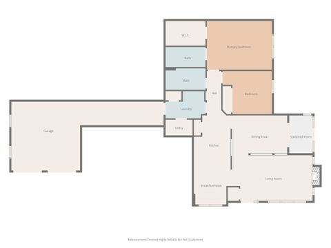
Beautiful ranch-style home offering convenient first-floor living and maintenance-free lifestyle! This 2-bedroom, 2-bath home features a spacious and open layout with a screened-in porch perfect for relaxing or entertaining. The bright kitchen includes 42" maple cabinets and plenty of storage. The spacious primary suite offers a large walk-in closet and private bath. Additional highlights include a dedicated laundry room and a 2-car garage. Major updates provide peace of mind:New furnace & water heater (2021) A/C unit replaced (2025) Roof complete tear off soffit & gutters also replaced (2025) Luxury vinyl plank flooring installed (2025) Ideally located close to shopping, dining, and beautiful Schweitzer Woods, this home combines comfort, style, and convenience.
| DAYS ON MARKET | 12 | LAST UPDATED | 3/19/2026 |
|---|---|---|---|
| YEAR BUILT | 2005 | COMMUNITY | Dundee / East Dundee / Sleepy Hollow / West Dundee |
| GARAGE SPACES | 2.0 | COUNTY | Kane |
| STATUS | Active | PROPERTY TYPE(S) | Condo/Townhouse/Co-Op |
| School District | H D Jacobs High School |
|---|---|
| Elementary School | Dundee Highlands Elementary Scho |
| Jr. High School | Dundee Middle School |
| High School | H D Jacobs High School |
| PRICE HISTORY | |
| Prior to Mar 19, '26 | $315,000 |
|---|---|
| Mar 19, '26 - Today | $309,000 |
| ADDITIONAL DETAILS | |
| AIR | Central Air |
|---|---|
| AIR CONDITIONING | Yes |
| AMENITIES | Insurance, Snow Removal |
| AREA | Dundee / East Dundee / Sleepy Hollow / West Dundee |
| BASEMENT | None |
| CONSTRUCTION | Brick, Vinyl Siding |
| FIREPLACE | Yes |
| GARAGE | Attached Garage, Yes |
| HEAT | Forced Air, Natural Gas |
| HOA DUES | 345 |
| LOT | 0 |
| LOT DIMENSIONS | Common |
| PARKING | Asphalt, Garage Door Opener, Attached, Garage |
| SEWER | Public Sewer |
| STORIES | 1 |
| TAXES | 5153 |
| WATER | Public |
MORTGAGE CALCULATOR
TOTAL MONTHLY PAYMENT
0
P
I
*Estimate only
| SATELLITE VIEW |
| / | |
We respect your online privacy and will never spam you. By submitting this form with your telephone number
you are consenting for Humderto
Garcia to contact you even if your name is on a Federal or State
"Do not call List".
Listed with Keller Williams Success Realty
The data relating to real estate for sale on this web site comes in part from the Broker ReciprocitySM Program of MRED. All real estate listings are marked with the Broker ReciprocitySM logo or the MRED Broker ReciprocitySM thumbnail logo (a little black house) and detailed information about them includes the name of the listing brokers.
The broker providing these data believes them to be correct, but advises interested parties to confirm them before relying on them in a purchase decision.
Copyright 2026 MRED. All rights reserved.

The broker providing these data believes them to be correct, but advises interested parties to confirm them before relying on them in a purchase decision.
Copyright 2026 MRED. All rights reserved.
This IDX solution is (c) Diverse Solutions 2026.