|
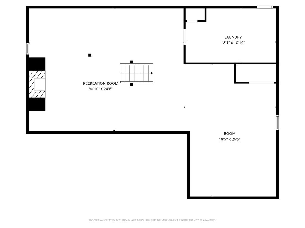
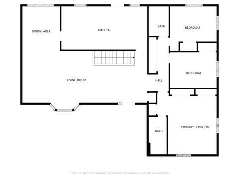
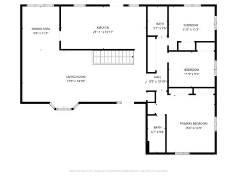
Charming ranch home featuring 3 bedrooms and 2 full baths, with 2 car detached garage with spacious driveway accommodates multiple vehicles. Ideally located just steps from lake and beach access. The bright, full-light living room offers plenty of natural light and a welcoming atmosphere. The kitchen includes a center island and was updated in 2024 with a new stovetop, range hood, dishwasher, and sink, along with abundant cabinet space for storage. There is a reverse osmosis system in kitchen and new whole-home water filtration system (2024) add extra convenience and quality. Major updates include a roof replaced in 2014 and a new well pump installed in 2022. Enjoy outdoor living on the expansive 40-ft deck (2020) overlooking the backyard pond, along with a beautiful patio with pavers added in 2023. The partially finished basement features a cozy family/recreation room with a wood-burning fireplace, plus additional lower-level space ready for your personal vision or future finishing. A wonderful opportunity to enjoy comfortable living in a peaceful setting near the water.
| DAYS ON MARKET | 7 | LAST UPDATED | 3/11/2026 |
|---|---|---|---|
| YEAR BUILT | 1975 | COMMUNITY | Cary / Oakwood Hills / Trout Valley |
| GARAGE SPACES | 2.0 | COUNTY | McHenry |
| STATUS | Active | PROPERTY TYPE(S) | Single Family |
| ADDITIONAL DETAILS | |
| AIR | Central Air |
|---|---|
| AIR CONDITIONING | Yes |
| APPLIANCES | Cooktop, Dishwasher, Dryer, Microwave, Range, Range Hood, Refrigerator, Washer, Water Purifier, Water Purifier Owned |
| AREA | Cary / Oakwood Hills / Trout Valley |
| BASEMENT | Partial, Partially Finished, Yes |
| CONSTRUCTION | Cedar, Frame |
| EXTERIOR | Other |
| FIREPLACE | Yes |
| GARAGE | Yes |
| HEAT | Natural Gas |
| LOT | 0 |
| LOT DIMENSIONS | 60x116x60x116 |
| PARKING | Asphalt, Detached, Garage |
| SEWER | Septic Tank |
| STYLE | Ranch |
| TAXES | 7170 |
| WATER | Well |
MORTGAGE CALCULATOR
TOTAL MONTHLY PAYMENT
0
P
I
*Estimate only
| SATELLITE VIEW |
| / | |
We respect your online privacy and will never spam you. By submitting this form with your telephone number
you are consenting for Humderto
Garcia to contact you even if your name is on a Federal or State
"Do not call List".
Listed with Coldwell Banker Real Estate Gr
The data relating to real estate for sale on this web site comes in part from the Broker ReciprocitySM Program of MRED. All real estate listings are marked with the Broker ReciprocitySM logo or the MRED Broker ReciprocitySM thumbnail logo (a little black house) and detailed information about them includes the name of the listing brokers.
The broker providing these data believes them to be correct, but advises interested parties to confirm them before relying on them in a purchase decision.
Copyright 2026 MRED. All rights reserved.

The broker providing these data believes them to be correct, but advises interested parties to confirm them before relying on them in a purchase decision.
Copyright 2026 MRED. All rights reserved.
This IDX solution is (c) Diverse Solutions 2026.