|
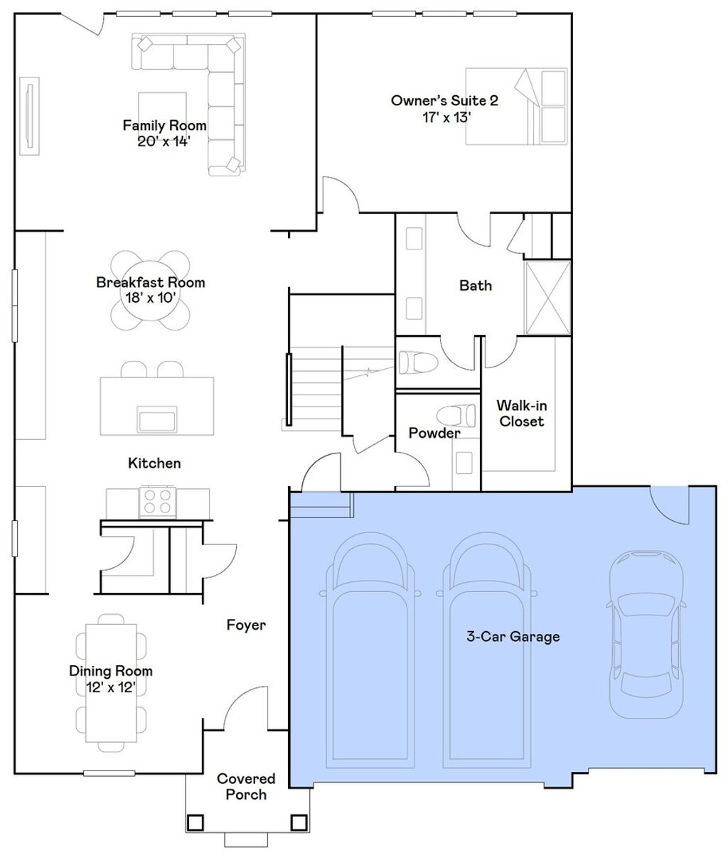
MOVE IN THIS FALL!! Homesite #0102. Step into the Sequoia plan-a thoughtfully designed 4-bedroom, 3.5-bath home that offers exceptional comfort, flexibility, and modern convenience for today's families. Just off the foyer, a formal dining room sets the stage for memorable gatherings or everyday meals with ease and elegance. Beyond the entry, the heart of the home unfolds in a spacious open-concept layout where the kitchen, breakfast room, and family room connect seamlessly-perfect for casual living and entertaining alike. The kitchen features a large center island, sleek quartz countertops, generous cabinetry, and stainless steel appliances that bring both function and contemporary style to the space. Throughout the first floor, luxury vinyl plank flooring and energy-efficient LED lighting enhance the home's warm, modern feel. Upstairs, the primary owner's suite offers a peaceful retreat with a spacious walk-in closet and a spa-inspired en-suite bathroom. Two additional bedrooms and a shared full bathroom provide ample space for family or guests. A convenient second-floor laundry room adds everyday practicality right where it's needed most. The second owner's suite is located on the first floor, offering a private and comfortable space for guests or extended stays. This suite features its own walk-in closet and private en-suite bath, making it a perfect main-level retreat. Additional highlights include a first-floor powder room and a three-car garage. Designed to adapt to your lifestyle, the Sequoia plan delivers smart, spacious living with comfort and style at every turn. *Photos are not this actual home* Ashbury is a welcoming community of new townhomes and single-family homes in South Elgin, IL, offering the perfect blend of comfort, convenience, and outdoor fun. Designed with families in mind, this community boasts fantastic onsite amenities and scenic multi-use trails that wind through natural surroundings. Just a short drive away, the South Elgin Commons offers diverse shopping, dining, and various entertainment. In addition downtown Elgin offers even more to explore. Situated along the Fox River, it features charming historic architecture and the popular Elgin Riverwalk-a local favorite for leisurely strolls and riverside views. Enjoy year-round entertainment with festivals, events, and exciting attractions like the Grand Victoria Casino. At Ashbury, every day brings new opportunities for recreation, relaxation, and connection in a community you'll love to call home.
| DAYS ON MARKET | 80 | LAST UPDATED | 3/2/2026 |
|---|---|---|---|
| TRACT | Ashbury | YEAR BUILT | 2026 |
| COMMUNITY | South Elgin | GARAGE SPACES | 3.0 |
| COUNTY | Kane | STATUS | Conditional |
| PROPERTY TYPE(S) | Single Family |
| School District | South Elgin High School |
|---|---|
| Elementary School | Fox Meadow Elementary School |
| Jr. High School | Kenyon Woods Middle School |
| High School | South Elgin High School |
| ADDITIONAL DETAILS | |
| AIR | Central Air |
|---|---|
| AIR CONDITIONING | Yes |
| APPLIANCES | Dishwasher, Double Oven, Microwave, Stainless Steel Appliance(s) |
| AREA | South Elgin |
| BASEMENT | Full, Unfinished, Yes |
| CONSTRUCTION | Vinyl Siding |
| GARAGE | Attached Garage, Yes |
| HEAT | Forced Air, Natural Gas |
| HOA DUES | 480 |
| INTERIOR | Entrance Foyer |
| LOT | 0 |
| LOT DIMENSIONS | 8190 |
| PARKING | Asphalt, Garage Door Opener, Attached, Garage |
| SEWER | Public Sewer |
| SUBDIVISION | Ashbury |
| WATER | Public |
MORTGAGE CALCULATOR
TOTAL MONTHLY PAYMENT
0
P
I
*Estimate only
| SATELLITE VIEW |
| / | |
We respect your online privacy and will never spam you. By submitting this form with your telephone number
you are consenting for Humderto
Garcia to contact you even if your name is on a Federal or State
"Do not call List".
Listed with HomeSmart Connect LLC
The data relating to real estate for sale on this web site comes in part from the Broker ReciprocitySM Program of MRED. All real estate listings are marked with the Broker ReciprocitySM logo or the MRED Broker ReciprocitySM thumbnail logo (a little black house) and detailed information about them includes the name of the listing brokers.
The broker providing these data believes them to be correct, but advises interested parties to confirm them before relying on them in a purchase decision.
Copyright 2026 MRED. All rights reserved.

The broker providing these data believes them to be correct, but advises interested parties to confirm them before relying on them in a purchase decision.
Copyright 2026 MRED. All rights reserved.
This IDX solution is (c) Diverse Solutions 2026.