|
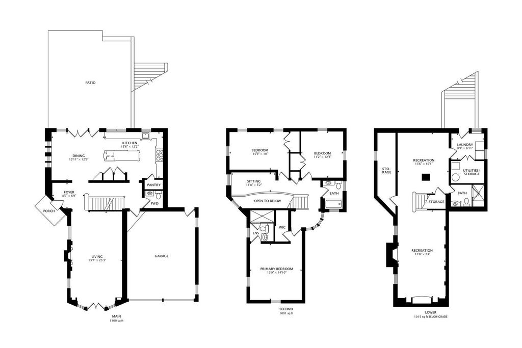
Stunning River Forest home that seamlessly combines modern luxury with timeless charm. A full-scale renovation with classic architectural details, nearly every detail was renewed. Mechanicals, electrical, plumbing, insulation, windows, roof (2024), gutters, flooring, kitchen, and baths. All enhanced by custom millwork throughout, copper water service in, and a new drain line out. At the heart of the home is a chef's kitchen boasting custom inset cabinetry, double ogee edge countertops, a 48" Wolf range, dual dishwashers, and twin 36" side-by-side Viking refrigerator and freezer, Wolf Warming drawer, ice maker and a Viking wine fridge. French doors lead to an outdoor kitchen, patio, and a resort-style pool and hot tub by Barrington Pools. Wired for sound inside and out, this house was built for entertaining. The inviting living room offers park views and a gas log fireplace. Upstairs are three bedrooms, including a serene primary suite with walk-in closet and private bath with heated floors, plus two additional bedrooms sharing a spa-inspired hall bath also with heated floors. The finished lower level includes a spacious rec room with a second fireplace, full bath with heated flooring (functions as pool house bath with basement egress), and plumbing rough-in for a wet bar. Large egress staircase walks out from laundry room and up to pool area. Everyday comforts include a heated driveway, attached heated two-car garage, and a well-designed floor plan. Located in the sought-after Willard Elementary School district and walking distance to dining along North Avenue's "Restaurant Row" this home delivers both elegance and convenience.
| DAYS ON MARKET | 37 | LAST UPDATED | 3/25/2026 |
|---|---|---|---|
| YEAR BUILT | 1942 | COMMUNITY | River Forest |
| GARAGE SPACES | 2.0 | COUNTY | Cook |
| STATUS | Conditional | PROPERTY TYPE(S) | Single Family |
| School District | Oak Park & River Forest High Sch |
|---|---|
| High School | Oak Park & River Forest High Sch |
| ADDITIONAL DETAILS | |
| AIR | Central Air, Dual, Zoned |
|---|---|
| AIR CONDITIONING | Yes |
| APPLIANCES | Dishwasher, Disposal, Electric Oven, Gas Cooktop, Microwave, Range, Range Hood, Refrigerator, Wine Refrigerator |
| AREA | River Forest |
| BASEMENT | Finished, Full, Yes |
| CONSTRUCTION | Stone |
| FIREPLACE | Yes |
| GARAGE | Attached Garage, Yes |
| HEAT | Forced Air, Natural Gas, Radiant Floor, Zoned |
| INTERIOR | Entrance Foyer |
| LOT | 10411 sq ft |
| LOT DIMENSIONS | 57x187 |
| PARKING | Garage Door Opener, Attached, Garage, Driveway |
| POOL DESCRIPTION | In Ground |
| SEWER | Public Sewer |
| TAXES | 19900 |
| WATER | Public |
MORTGAGE CALCULATOR
TOTAL MONTHLY PAYMENT
0
P
I
*Estimate only
| / | |
We respect your online privacy and will never spam you. By submitting this form with your telephone number
you are consenting for Humderto
Garcia to contact you even if your name is on a Federal or State
"Do not call List".
Listed with @properties Christie's International Real Estate
The data relating to real estate for sale on this web site comes in part from the Broker ReciprocitySM Program of MRED. All real estate listings are marked with the Broker ReciprocitySM logo or the MRED Broker ReciprocitySM thumbnail logo (a little black house) and detailed information about them includes the name of the listing brokers.
The broker providing these data believes them to be correct, but advises interested parties to confirm them before relying on them in a purchase decision.
Copyright 2026 MRED. All rights reserved.

The broker providing these data believes them to be correct, but advises interested parties to confirm them before relying on them in a purchase decision.
Copyright 2026 MRED. All rights reserved.
This IDX solution is (c) Diverse Solutions 2026.