|
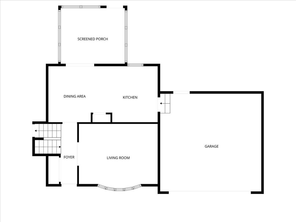
Spacious and versatile quad-level home in sought-after Beach Park! This well-maintained 4-bedroom home offers room for everyone, featuring a finished sub-basement perfect for a rec room, home office, or additional living space. The heart of the home is the kitchen, complete with stainless steel appliances and a center island with electric-perfect for meal prep, entertaining, or casual dining. Cozy up by the fireplace in the inviting main living area, creating the perfect space to relax year-round. Enjoy the bright and inviting 3-season room-ideal for relaxing or entertaining while overlooking the expansive, fully fenced backyard. The huge yard provides endless possibilities for outdoor fun, gardening, or hosting gatherings. Car enthusiasts and hobbyists will love the oversized garage and convenient side driveway with plenty of space to park all your toys-boats, trailers, or extra vehicles-with ease. With its flexible layout, generous space, and fantastic indoor and outdoor features, this home is a must-see!
| DAYS ON MARKET | 31 | LAST UPDATED | 3/24/2026 |
|---|---|---|---|
| YEAR BUILT | 1985 | COMMUNITY | Beach Park |
| GARAGE SPACES | 2.0 | COUNTY | Lake |
| STATUS | Conditional | PROPERTY TYPE(S) | Single Family |
| School District | Zion-Benton Twnshp Hi School |
|---|---|
| High School | Zion-Benton Twnshp Hi School |
| ADDITIONAL DETAILS | |
| AIR | Central Air |
|---|---|
| AIR CONDITIONING | Yes |
| AREA | Beach Park |
| BASEMENT | Finished, Full, Yes |
| CONSTRUCTION | Brick, Vinyl Siding |
| FIREPLACE | Yes |
| GARAGE | Attached Garage, Yes |
| HEAT | Forced Air |
| INTERIOR | Entrance Foyer |
| LOT | 0 |
| LOT DIMENSIONS | 100 x 160.9 x 100 x 160.9 |
| PARKING | Asphalt, Garage Door Opener, Attached, Driveway, Garage |
| SEWER | Public Sewer |
| TAXES | 7991.72 |
| WATER | Well |
MORTGAGE CALCULATOR
TOTAL MONTHLY PAYMENT
0
P
I
*Estimate only
| SATELLITE VIEW |
| / | |
We respect your online privacy and will never spam you. By submitting this form with your telephone number
you are consenting for Humderto
Garcia to contact you even if your name is on a Federal or State
"Do not call List".
Listed with Keller Williams North Shore West
The data relating to real estate for sale on this web site comes in part from the Broker ReciprocitySM Program of MRED. All real estate listings are marked with the Broker ReciprocitySM logo or the MRED Broker ReciprocitySM thumbnail logo (a little black house) and detailed information about them includes the name of the listing brokers.
The broker providing these data believes them to be correct, but advises interested parties to confirm them before relying on them in a purchase decision.
Copyright 2026 MRED. All rights reserved.

The broker providing these data believes them to be correct, but advises interested parties to confirm them before relying on them in a purchase decision.
Copyright 2026 MRED. All rights reserved.
This IDX solution is (c) Diverse Solutions 2026.