|
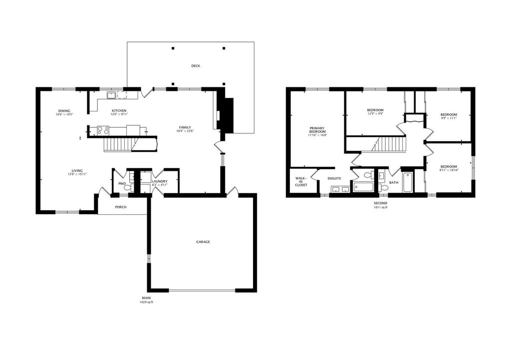
MULTIPLE OFFERS RECEIVED: HIGHEST AND BEST DUE SATURDAY BY 5 PM. NO ESCALATION CLAUSES. Interior completely remodeled in 2025 along with new roof, siding, gutters and new appliances! This 4-bedroom, 2.5-bath home backs to a golf course with tranquil pond views, creating a true park-like setting right in your own backyard. The yard feels like a private oasis with open green space and peaceful scenery.The main level features a living room, dining room, and a spacious family room with fireplace and two glass sliders-one leading to the side yard and the other to the backyard for seamless indoor-outdoor living. The white kitchen showcases quartz countertops, designer lighting, a striking backsplash, and a dramatic view overlooking the golf course and pond. Light-toned wood laminate flooring runs throughout the home.Upstairs offers four spacious bedrooms and a full bath, including a primary suite with walk-in closet and private bath. A 2.5-car garage provides ample storage. Fully updated and truly move-in ready-everything has been thoughtfully done for you. Age of HVAC and water heater are unknown but has been replaced family believes in the last 10 years. Close to parks, shopping, schools & expressways (I-55 & 355).
| DAYS ON MARKET | 13 | LAST UPDATED | 3/8/2026 |
|---|---|---|---|
| YEAR BUILT | 1979 | COMMUNITY | Bolingbrook |
| GARAGE SPACES | 2.5 | COUNTY | Will |
| STATUS | Conditional | PROPERTY TYPE(S) | Single Family |
| School District | Bolingbrook High School |
|---|---|
| Elementary School | Jonas E Salk Elementary School |
| Jr. High School | Hubert H Humphrey Middle School |
| High School | Bolingbrook High School |
| ADDITIONAL DETAILS | |
| AIR | Central Air |
|---|---|
| AIR CONDITIONING | Yes |
| AREA | Bolingbrook |
| BASEMENT | None |
| CONSTRUCTION | Brick |
| FIREPLACE | Yes |
| GARAGE | Attached Garage, Yes |
| HEAT | Natural Gas |
| INTERIOR | High Ceilings |
| LOT | 0 |
| LOT DIMENSIONS | 70 x 110 |
| PARKING | Asphalt, Attached, Garage |
| SEWER | Public Sewer |
| TAXES | 9080 |
MORTGAGE CALCULATOR
TOTAL MONTHLY PAYMENT
0
P
I
*Estimate only
| SATELLITE VIEW |
| / | |
We respect your online privacy and will never spam you. By submitting this form with your telephone number
you are consenting for Humderto
Garcia to contact you even if your name is on a Federal or State
"Do not call List".
Listed with @properties Christie's International Real Estate
The data relating to real estate for sale on this web site comes in part from the Broker ReciprocitySM Program of MRED. All real estate listings are marked with the Broker ReciprocitySM logo or the MRED Broker ReciprocitySM thumbnail logo (a little black house) and detailed information about them includes the name of the listing brokers.
The broker providing these data believes them to be correct, but advises interested parties to confirm them before relying on them in a purchase decision.
Copyright 2026 MRED. All rights reserved.

The broker providing these data believes them to be correct, but advises interested parties to confirm them before relying on them in a purchase decision.
Copyright 2026 MRED. All rights reserved.
This IDX solution is (c) Diverse Solutions 2026.