|
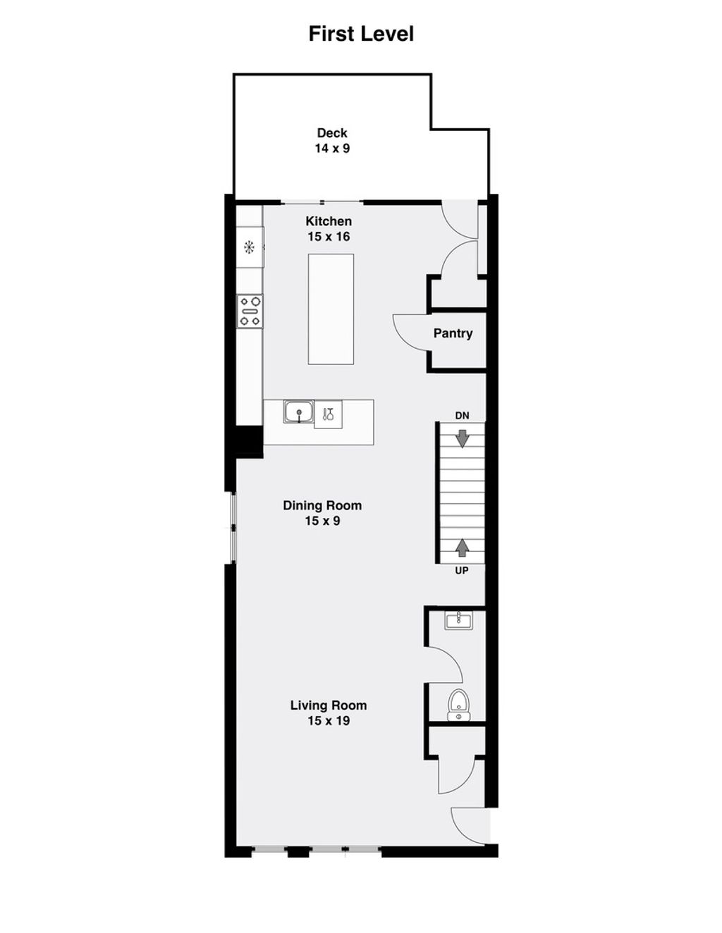
Modern new construction single-family home by top developer on an oversized 30' lot! Sharp facade with brick accents. Extra wide, open concept floor plan. Sun filled main-level features spacious living/dining area with large front windows and hardwood flooring throughout. Adjoining eat-in kitchen with stainless steel Whirlpool appliance package, flat panel cabinetry, quartz counters, island and peninsula with breakfast bar seating, pantry, and patio door to rear deck. Bright and spacious primary bedroom with good storage and private bath featuring a frameless glass shower, vanity with dual sinks, and heated flooring. Two additional bedrooms, full guest bath with tub, and laundry complete the upper-level. Finished lower-level with recreation room featuring wet bar, 4th bedroom, full bath, utilities, and luxury vinyl plank flooring. Nice ceiling heights throughout. Finished closets. On trend design features and tons of natural light! Enclosed backyard with deck and detached two-car garage. Conveniently located near shopping, groceries, restaurants, parks, and more!
| DAYS ON MARKET | 15 | LAST UPDATED | 3/6/2026 |
|---|---|---|---|
| YEAR BUILT | 2025 | COMMUNITY | CHI - Montclare |
| GARAGE SPACES | 2.0 | COUNTY | Cook |
| STATUS | Active | PROPERTY TYPE(S) | Single Family |
| ADDITIONAL DETAILS | |
| AIR | Central Air |
|---|---|
| AIR CONDITIONING | Yes |
| APPLIANCES | Dishwasher, Disposal, Dryer, Humidifier, Microwave, Range, Range Hood, Refrigerator, Washer, Wine Refrigerator |
| AREA | CHI - Montclare |
| BASEMENT | Finished, Full, Sump Pump, Yes |
| CONSTRUCTION | Brick, Fiber Cement, Vinyl Siding |
| GARAGE | Yes |
| HEAT | Forced Air, Natural Gas, Radiant Floor |
| INTERIOR | Walk-In Closet(s), Wet Bar |
| LOT | 0 |
| LOT DIMENSIONS | 30 x 125 |
| PARKING | Garage Door Opener, Detached, Garage |
| SEWER | Public Sewer |
| WATER | Public |
MORTGAGE CALCULATOR
TOTAL MONTHLY PAYMENT
0
P
I
*Estimate only
| SATELLITE VIEW |
| / | |
We respect your online privacy and will never spam you. By submitting this form with your telephone number
you are consenting for Humderto
Garcia to contact you even if your name is on a Federal or State
"Do not call List".
Listed with Jameson Sotheby's Intl Realty
The data relating to real estate for sale on this web site comes in part from the Broker ReciprocitySM Program of MRED. All real estate listings are marked with the Broker ReciprocitySM logo or the MRED Broker ReciprocitySM thumbnail logo (a little black house) and detailed information about them includes the name of the listing brokers.
The broker providing these data believes them to be correct, but advises interested parties to confirm them before relying on them in a purchase decision.
Copyright 2026 MRED. All rights reserved.

The broker providing these data believes them to be correct, but advises interested parties to confirm them before relying on them in a purchase decision.
Copyright 2026 MRED. All rights reserved.
This IDX solution is (c) Diverse Solutions 2026.