|
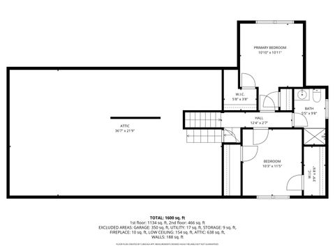
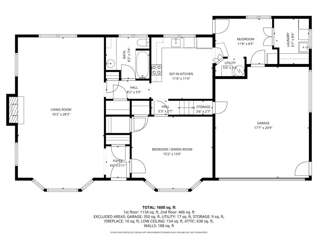
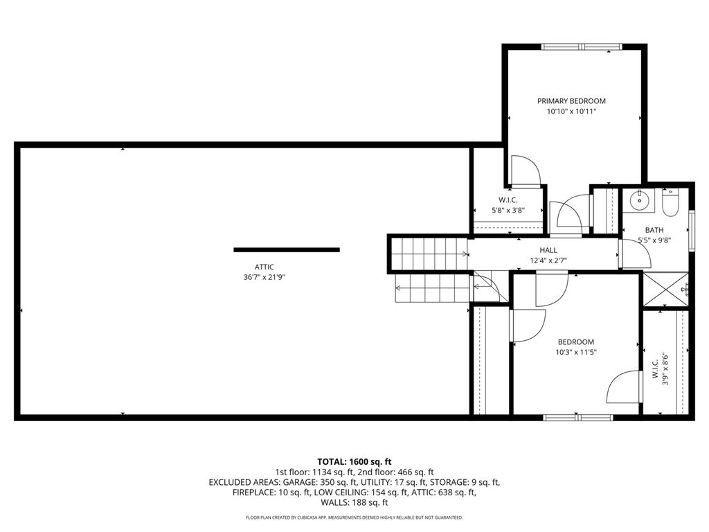
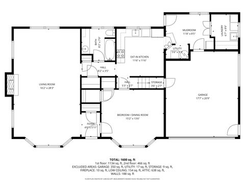
This home is cross listed as land (MLS #12588604) due to the structural issues evident in the home. This home will either be a tear down or renovation. Located in the highly sought-after Harding Woods neighborhood of La Grange Park, this traditional brick home sits on a rare 75-foot-wide lot. The home features a spacious combined living and dining room with a gas log fireplace, an eat-in kitchen with a built-in banquette, a first-floor bedroom (currently being used as the dining room), two generously sized second-floor bedrooms and two full bathrooms. An attached two-car garage with direct access from the rear mudroom, laundry room, and a beautiful yard complete the property. The location is truly exceptional, with easy access to the BNSF Metra station for direct service to downtown Chicago. Enjoy a short walk to the Village Market and the library, as well as convenient proximity to downtown La Grange and the West End for shopping, dining, salons, and entertainment. Outdoor enthusiasts will appreciate being just steps from Stone Monroe Park, Memorial Park and the Salt Creek bike path. The home is also conveniently located near top-rated schools including Ogden Elementary, Park Junior High, St. Francis Xavier, Lyons Township High School and Nazareth Academy, with quick access to both major Chicagoland airports. This property is being conveyed "as-is" due to settling issues, offering a fantastic opportunity to renovate the existing home or build your dream home in the desirable Harding Woods neighborhood.
| DAYS ON MARKET | 79 | LAST UPDATED | 3/3/2026 |
|---|---|---|---|
| TRACT | Harding Woods | YEAR BUILT | 1952 |
| COMMUNITY | La Grange Park | GARAGE SPACES | 2.0 |
| COUNTY | Cook | STATUS | Active |
| PROPERTY TYPE(S) | Single Family |
| School District | Lyons Twp High School |
|---|---|
| Elementary School | Ogden Ave Elementary School |
| Jr. High School | Park Junior High School |
| High School | Lyons Twp High School |
| ADDITIONAL DETAILS | |
| AIR | Ceiling Fan(s), Central Air |
|---|---|
| AIR CONDITIONING | Yes |
| APPLIANCES | Dishwasher, Disposal, Dryer, Microwave, Range, Refrigerator, Washer |
| AREA | La Grange Park |
| BASEMENT | None |
| CONSTRUCTION | Brick, Stone |
| FIREPLACE | Yes |
| GARAGE | Attached Garage, Yes |
| HEAT | Forced Air, Natural Gas |
| INTERIOR | Entrance Foyer, Pantry, Walk-In Closet(s) |
| LOT | 0 |
| LOT DIMENSIONS | 75 x 119.12 x 75.5 x 110.2 |
| PARKING | Concrete, Garage Door Opener, Attached, Garage |
| SEWER | Public Sewer |
| STYLE | Cape Cod |
| SUBDIVISION | Harding Woods |
| TAXES | 11379.02 |
| WATER | Public |
MORTGAGE CALCULATOR
TOTAL MONTHLY PAYMENT
0
P
I
*Estimate only
| SATELLITE VIEW |
| / | |
We respect your online privacy and will never spam you. By submitting this form with your telephone number
you are consenting for Humderto
Garcia to contact you even if your name is on a Federal or State
"Do not call List".
Listed with Coldwell Banker Realty
The data relating to real estate for sale on this web site comes in part from the Broker ReciprocitySM Program of MRED. All real estate listings are marked with the Broker ReciprocitySM logo or the MRED Broker ReciprocitySM thumbnail logo (a little black house) and detailed information about them includes the name of the listing brokers.
The broker providing these data believes them to be correct, but advises interested parties to confirm them before relying on them in a purchase decision.
Copyright 2026 MRED. All rights reserved.

The broker providing these data believes them to be correct, but advises interested parties to confirm them before relying on them in a purchase decision.
Copyright 2026 MRED. All rights reserved.
This IDX solution is (c) Diverse Solutions 2026.