|
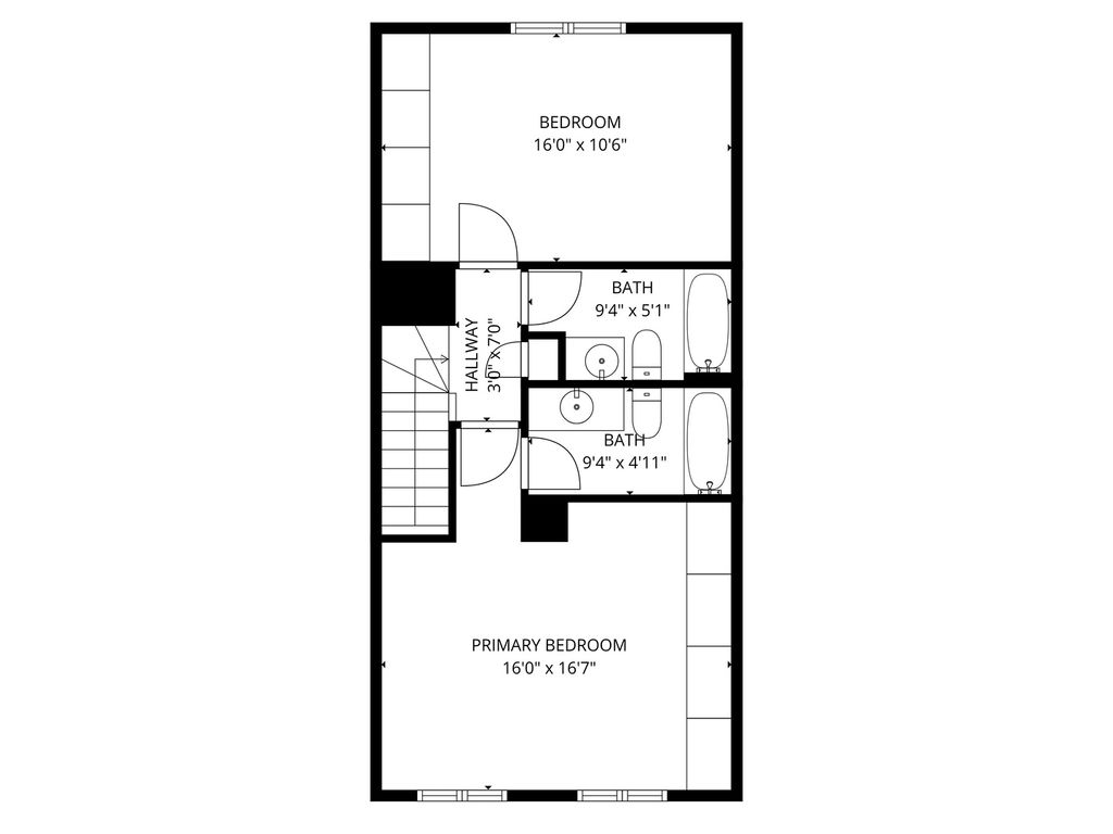
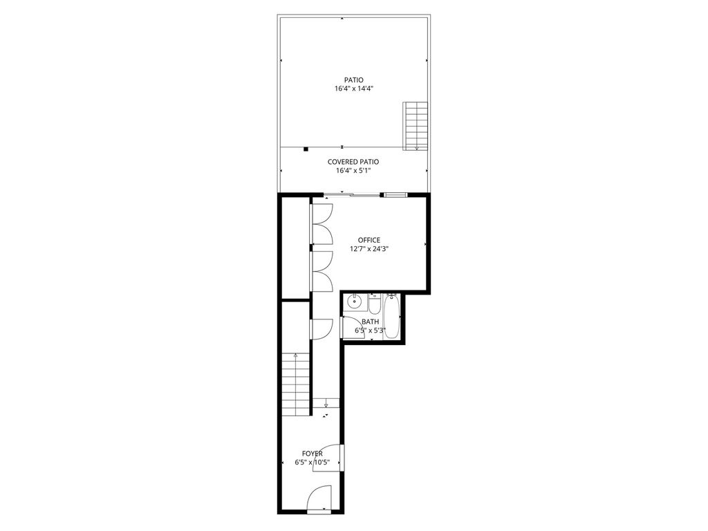
Located on a beautiful tree-lined street within a gated complex, this spacious LINCOLN PARK TRI-LEVEL TOWNHOME offers both comfort and style. The welcoming foyer leads to a versatile den/family room or third bedroom, complete with a full bath and sliding doors opening to a patio. The main level features a bright living room with a fireplace and bay window, a separate dining room, and a well-appointed kitchen with stainless steel appliances. A spacious deck off the kitchen provides easy access to a large PRIVATE BACKYARD!Upstairs, two generously sized bedrooms offer excellent closet space, accompanied by two full baths. Recent updates include beautiful hardwood floors, new recessed lighting throughout, a washer and dryer (2024), electrical panel (2025), and furnace (2025).Additional highlights include an attached garage with a second parking pad. Situated in the highly regarded Prescott School District, this home is just one block from Wrightwood Park and within easy reach of shopping, dining, and neighborhood amenities. CLICK FOR 3D TOUR!
| DAYS ON MARKET | 2 | LAST UPDATED | 3/16/2026 |
|---|---|---|---|
| YEAR BUILT | 1988 | COMMUNITY | CHI - Lincoln Park |
| GARAGE SPACES | 1.0 | COUNTY | Cook |
| STATUS | Conditional | PROPERTY TYPE(S) | Condo/Townhouse/Co-Op |
| School District | Lincoln Park High School |
|---|---|
| Elementary School | Prescott Elementary School |
| Jr. High School | Prescott Elementary School |
| High School | Lincoln Park High School |
| ADDITIONAL DETAILS | |
| AIR | Ceiling Fan(s), Central Air |
|---|---|
| AIR CONDITIONING | Yes |
| AMENITIES | Snow Removal |
| APPLIANCES | Dishwasher, Disposal, Dryer, Microwave, Range, Refrigerator, Stainless Steel Appliance(s), Washer |
| AREA | CHI - Lincoln Park |
| BASEMENT | None |
| CONSTRUCTION | Block, Brick |
| FIREPLACE | Yes |
| GARAGE | Attached Garage, Yes |
| HEAT | Natural Gas |
| HOA DUES | 396 |
| INTERIOR | Entrance Foyer |
| LOT | 0 |
| LOT DIMENSIONS | COMMON |
| PARKING | Garage Door Opener, Attached, Garage |
| SEWER | Public Sewer |
| STORIES | 3 |
| TAXES | 11337.71 |
MORTGAGE CALCULATOR
TOTAL MONTHLY PAYMENT
0
P
I
*Estimate only
| SATELLITE VIEW |
| / | |
We respect your online privacy and will never spam you. By submitting this form with your telephone number
you are consenting for Humderto
Garcia to contact you even if your name is on a Federal or State
"Do not call List".
Listed with Fulton Grace Realty
The data relating to real estate for sale on this web site comes in part from the Broker ReciprocitySM Program of MRED. All real estate listings are marked with the Broker ReciprocitySM logo or the MRED Broker ReciprocitySM thumbnail logo (a little black house) and detailed information about them includes the name of the listing brokers.
The broker providing these data believes them to be correct, but advises interested parties to confirm them before relying on them in a purchase decision.
Copyright 2026 MRED. All rights reserved.

The broker providing these data believes them to be correct, but advises interested parties to confirm them before relying on them in a purchase decision.
Copyright 2026 MRED. All rights reserved.
This IDX solution is (c) Diverse Solutions 2026.