|
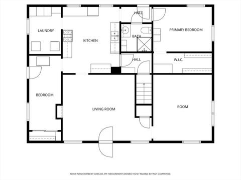
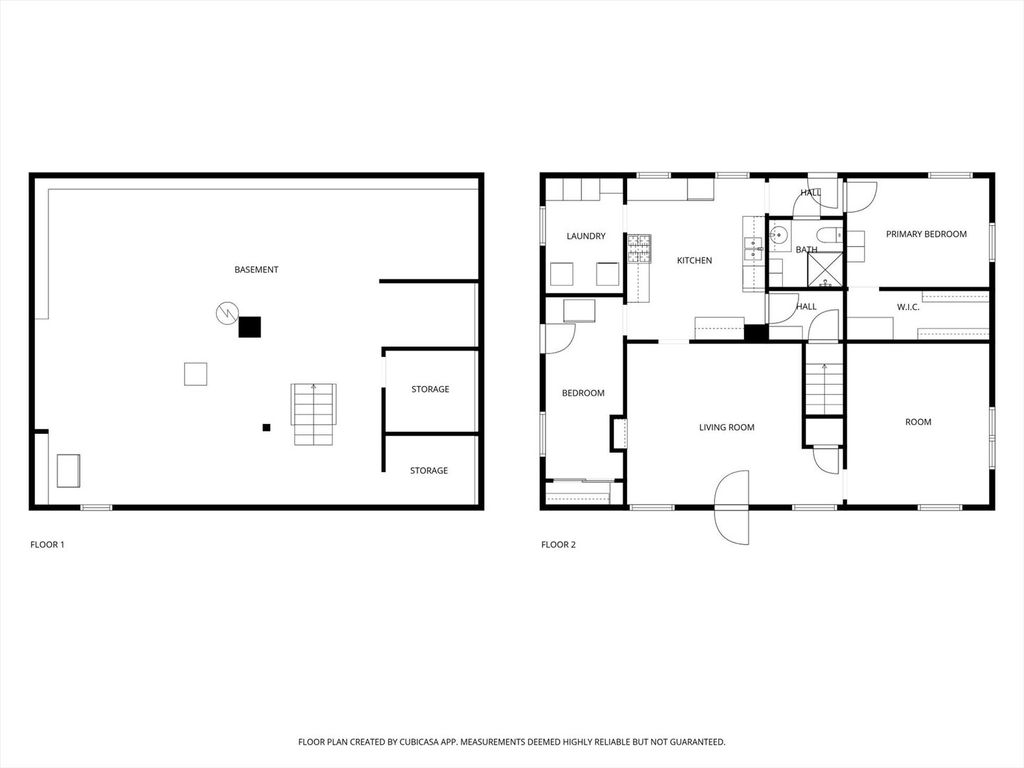
The perfect place to make memories! This charming 3-bedroom ranch on a corner lot is hitting the market for the first time. Located in the heart of Newark, it offers a bright, sunny eat-in kitchen with abundant cabinetry and all appliances included, a spacious carpeted family room, three main-level bedrooms, and first-floor laundry. The full unfinished basement provides plenty of storage, and there's a large, detached garage too. All of this sits on a great yard with plenty of space to roam. Welcome to your happy place-see it today! Sold as-is; home is part of an estate.
| DAYS ON MARKET | 57 | LAST UPDATED | 4/11/2026 |
|---|---|---|---|
| YEAR BUILT | 1870 | COMMUNITY | Newark |
| GARAGE SPACES | 2.0 | COUNTY | Kendall |
| STATUS | Conditional | PROPERTY TYPE(S) | Single Family |
| School District | Newark Community High School |
|---|---|
| High School | Newark Community High School |
| ADDITIONAL DETAILS | |
| AIR | Central Air |
|---|---|
| AIR CONDITIONING | Yes |
| AREA | Newark |
| BASEMENT | Full, Unfinished, Yes |
| CONSTRUCTION | Aluminum Siding |
| GARAGE | Yes |
| HEAT | Natural Gas |
| LOT | 0 |
| LOT DIMENSIONS | 121x61x121x61 |
| PARKING | Detached, Garage |
| SEWER | Public Sewer |
| TAXES | 3066.88 |
| WATER | Public |
MORTGAGE CALCULATOR
TOTAL MONTHLY PAYMENT
0
P
I
*Estimate only
| SATELLITE VIEW |
| / | |
We respect your online privacy and will never spam you. By submitting this form with your telephone number
you are consenting for Humderto
Garcia to contact you even if your name is on a Federal or State
"Do not call List".
Listed with Legacy Properties, A Sarah Leonard Company, LLC
The data relating to real estate for sale on this web site comes in part from the Broker ReciprocitySM Program of MRED. All real estate listings are marked with the Broker ReciprocitySM logo or the MRED Broker ReciprocitySM thumbnail logo (a little black house) and detailed information about them includes the name of the listing brokers.
The broker providing these data believes them to be correct, but advises interested parties to confirm them before relying on them in a purchase decision.
Copyright 2026 MRED. All rights reserved.

The broker providing these data believes them to be correct, but advises interested parties to confirm them before relying on them in a purchase decision.
Copyright 2026 MRED. All rights reserved.
This IDX solution is (c) Diverse Solutions 2026.