|
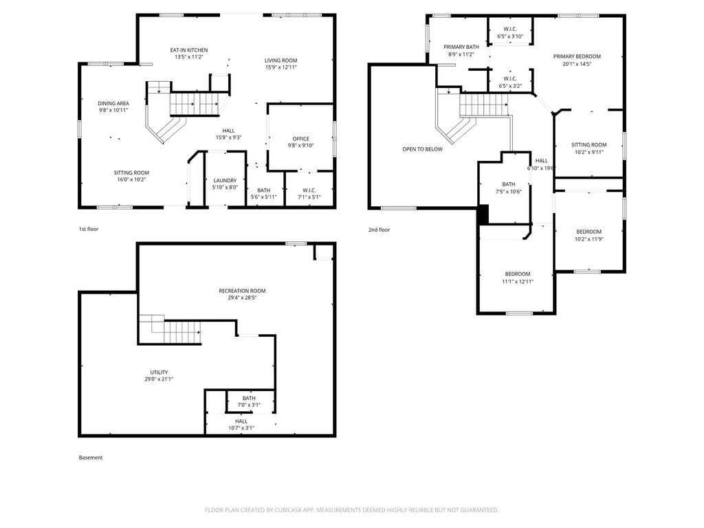
Welcome to this spacious and meticulously maintained 4-bedroom, 2.2-bath home that perfectly blends comfort and style. Nestled on a quiet cul-de-sac, this home offers exceptional curb appeal with new siding, roof, and windows (2018) along with a large, inviting front porch-perfect for relaxing with morning coffee or greeting guests. Step inside to a bright and open floor plan designed for both everyday living and entertaining. The impressive living room features soaring cathedral ceilings that create a sense of openness and natural light. The cozy family room provides the perfect gathering space for movie nights, holidays, or simply unwinding at the end of the day. The kitchen is equipped with stainless steel appliances (2020), ample cabinetry, and convenient access to the first-floor laundry room with washer and dryer (2019) for everyday ease. Upstairs, the primary suite serves as a private retreat, featuring two spacious walk-in closets with custom built-ins and a luxurious ensuite bath with double vanities, a relaxing Jacuzzi tub, and plenty of space to unwind. The finished basement offers additional living space ideal for a recreation room, home theater, workout area, or playroom, along with a convenient half bath. Step outside and enjoy the maintenance-free Trex deck, perfect for summer barbecues and outdoor gatherings. The fully fenced backyard (2019) provides privacy and plenty of space for pets, gardening, or outdoor activities.
| DAYS ON MARKET | 17 | LAST UPDATED | 3/23/2026 |
|---|---|---|---|
| YEAR BUILT | 1998 | COMMUNITY | Carpentersville |
| GARAGE SPACES | 2.0 | COUNTY | Kane |
| STATUS | Conditional | PROPERTY TYPE(S) | Single Family |
| School District | H D Jacobs High School |
|---|---|
| Elementary School | Sleepy Hollow Elementary School |
| Jr. High School | Dundee Middle School |
| High School | H D Jacobs High School |
| ADDITIONAL DETAILS | |
| AIR | Central Air |
|---|---|
| AIR CONDITIONING | Yes |
| APPLIANCES | Dishwasher, Dryer, Freezer, Microwave, Range, Refrigerator, Stainless Steel Appliance(s), Washer, Wine Refrigerator |
| AREA | Carpentersville |
| BASEMENT | Finished, Full, Yes |
| CONSTRUCTION | Aluminum Siding |
| GARAGE | Attached Garage, Yes |
| HEAT | Forced Air, Natural Gas |
| HOA DUES | 85 |
| INTERIOR | Cathedral Ceiling(s) |
| LOT | 7405 sq ft |
| LOT DIMENSIONS | 66X108x66x107 |
| PARKING | Asphalt, Garage Door Opener, Attached, Garage |
| SEWER | Public Sewer |
| STYLE | Traditional |
| TAXES | 8702 |
| WATER | Public |
MORTGAGE CALCULATOR
TOTAL MONTHLY PAYMENT
0
P
I
*Estimate only
| SATELLITE VIEW |
| / | |
We respect your online privacy and will never spam you. By submitting this form with your telephone number
you are consenting for Humderto
Garcia to contact you even if your name is on a Federal or State
"Do not call List".
Listed with Keller Williams Inspire
The data relating to real estate for sale on this web site comes in part from the Broker ReciprocitySM Program of MRED. All real estate listings are marked with the Broker ReciprocitySM logo or the MRED Broker ReciprocitySM thumbnail logo (a little black house) and detailed information about them includes the name of the listing brokers.
The broker providing these data believes them to be correct, but advises interested parties to confirm them before relying on them in a purchase decision.
Copyright 2026 MRED. All rights reserved.

The broker providing these data believes them to be correct, but advises interested parties to confirm them before relying on them in a purchase decision.
Copyright 2026 MRED. All rights reserved.
This IDX solution is (c) Diverse Solutions 2026.