|
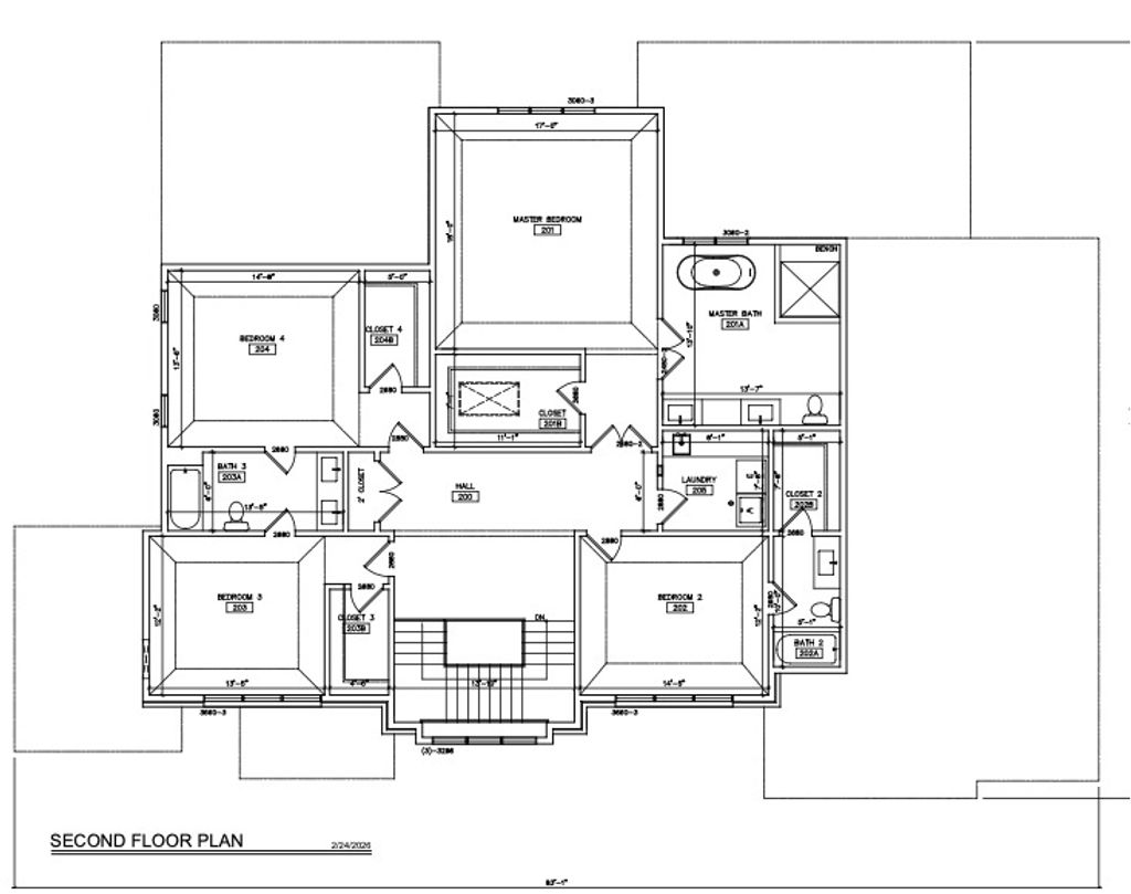
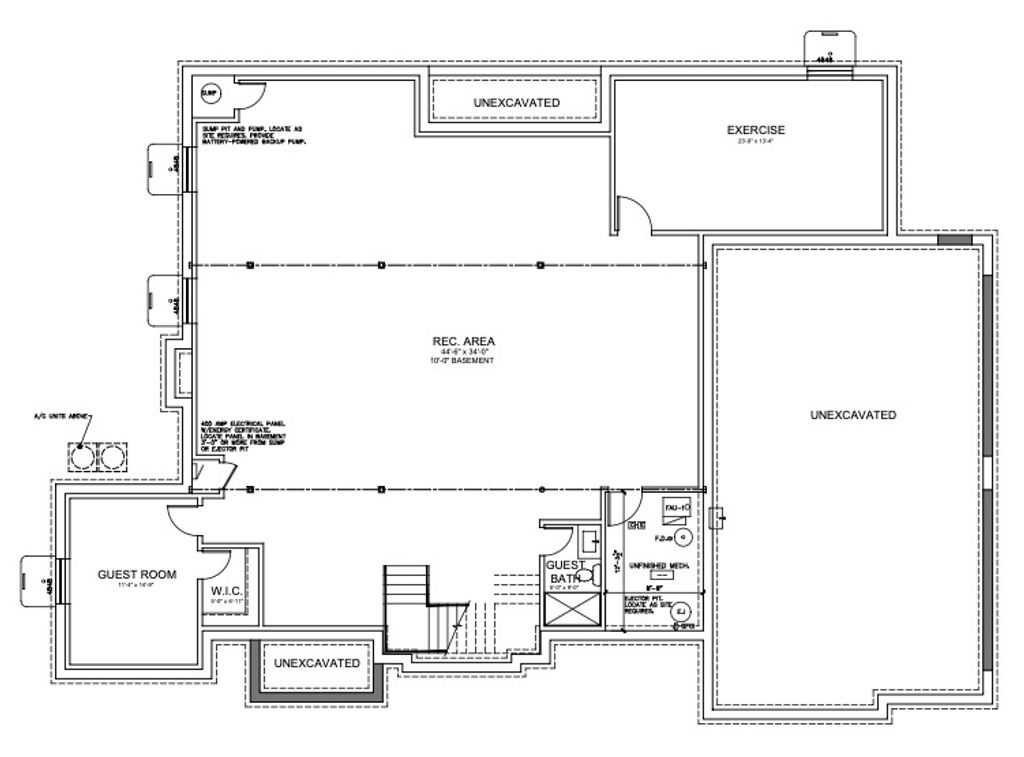
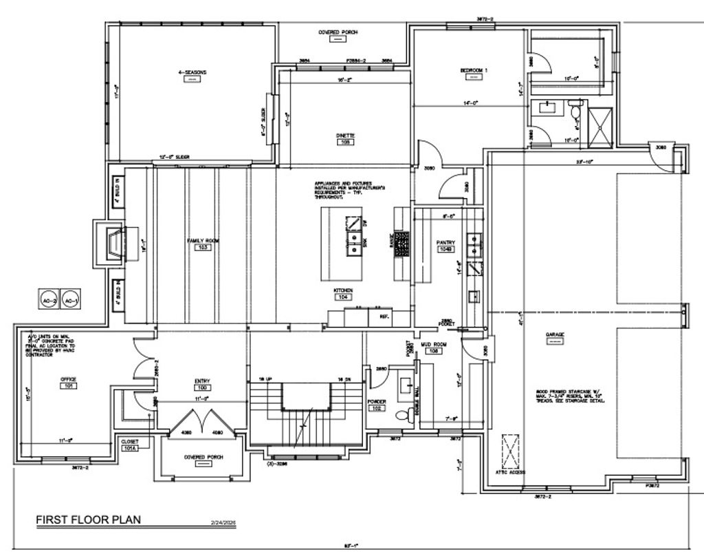
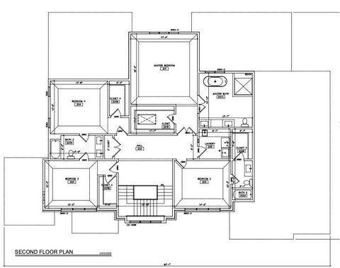
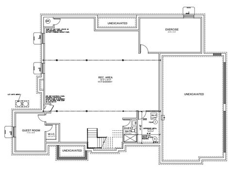
New construction to-be-built by Pyramid Builders. Open floorplan featuring 4732 square feet above ground plus another 2832 square feet in the lower level. Ten feet ceiling height on 1st floor. Nine feet ceiling height on 2nd floor. Ten foot deep basement ceiling height. Four car attached garage. On trend design featuring a first floor office, family-sized mud room and scullery off the kitchen. The first floor bedroom suite is configured for related living. Four additional bedroom suites on the second floor with private or semi-private bathrooms. Finished lower level with recreation, exercise, bathroom and mechanical/storage.
| DAYS ON MARKET | 1 | LAST UPDATED | 3/23/2026 |
|---|---|---|---|
| YEAR BUILT | 2026 | COMMUNITY | Burr Ridge |
| GARAGE SPACES | 4.0 | COUNTY | DuPage |
| STATUS | Active | PROPERTY TYPE(S) | Single Family |
| School District | Hinsdale South High School |
|---|---|
| Elementary School | Anne M Jeans Elementary School |
| Jr. High School | Burr Ridge Middle School |
| High School | Hinsdale South High School |
| ADDITIONAL DETAILS | |
| AIR | Central Air |
|---|---|
| AIR CONDITIONING | Yes |
| AREA | Burr Ridge |
| BASEMENT | Finished, Full, Yes |
| CONSTRUCTION | Brick |
| GARAGE | Attached Garage, Yes |
| HEAT | Forced Air, Natural Gas |
| INTERIOR | Pantry |
| LOT | 0.79 acre(s) |
| LOT DIMENSIONS | 291 x 118 |
| PARKING | Attached, Garage |
| SEWER | Public Sewer |
| TAXES | 7891.9 |
MORTGAGE CALCULATOR
TOTAL MONTHLY PAYMENT
0
P
I
*Estimate only
| / | |
We respect your online privacy and will never spam you. By submitting this form with your telephone number
you are consenting for Humderto
Garcia to contact you even if your name is on a Federal or State
"Do not call List".
Listed with @properties Christie's International Real Estate
The data relating to real estate for sale on this web site comes in part from the Broker ReciprocitySM Program of MRED. All real estate listings are marked with the Broker ReciprocitySM logo or the MRED Broker ReciprocitySM thumbnail logo (a little black house) and detailed information about them includes the name of the listing brokers.
The broker providing these data believes them to be correct, but advises interested parties to confirm them before relying on them in a purchase decision.
Copyright 2026 MRED. All rights reserved.

The broker providing these data believes them to be correct, but advises interested parties to confirm them before relying on them in a purchase decision.
Copyright 2026 MRED. All rights reserved.
This IDX solution is (c) Diverse Solutions 2026.