|
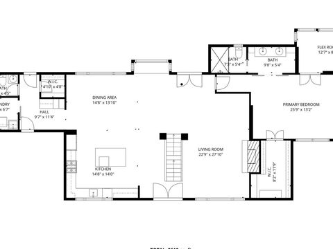
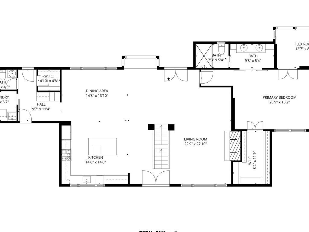
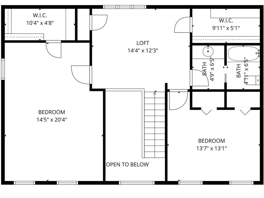
Set far back from the road and approached by a scenic winding driveway, this beautifully remodeled home sits on 10 breathtaking acres offering privacy, space, and sweeping countryside views. Completely renovated, the home blends modern upgrades with timeless country charm with the potential of over 3,700 square feet of living space. Step inside to find rich hickory hardwood flooring throughout the main level and an expansive open-concept kitchen designed for both everyday living and entertaining. The kitchen features granite countertops, a large custom island, country-style farmhouse sink, gourmet Bertazzoni range with hood, and new refrigerator. Oversized doors, custom wood framing, crown molding, and detailed trim work add warmth and craftsmanship throughout the first floor. The first-floor primary suite is a true retreat with vaulted ceilings, a spacious sitting room or office overlooking the backyard, and private access to a secluded deck. The fully updated primary bath and massive 12'x8' walk-in closet complete the suite. A second full bathroom near the rear entrance includes a large walk-in shower-perfect for cleaning up after time outdoors. Upstairs offers two additional bedrooms, an updated full bathroom, and a flexible loft space ideal for an office, reading nook, or play area. Major improvements provide peace of mind, including new windows, composite siding, roof, dual-zone HVAC, updated plumbing, and a beautiful stone fireplace. Outdoor living is just as impressive with a large brick paver patio featuring a sitting wall, a brick paver walkway, and concrete parking and RV pads. The property also includes a 26' x 33' pole barn, currently used as storage for off-road vehicles and equipment. The rear three acres were previously used as a horse riding area, offering plenty of potential for hobby farming (zoned A-5), recreation, or animals. Enjoy peaceful mornings or sunset views from the spacious covered front porch. The unfinished basement provides additional storage or future finishing possibilities for a 4th bedroom or more entertainment space. A rare opportunity to own a move-in ready country estate with modern updates, functional outbuildings, and room to roam-all while enjoying the beauty and tranquility of Spring Grove.
| DAYS ON MARKET | 31 | LAST UPDATED | 3/15/2026 |
|---|---|---|---|
| YEAR BUILT | 1988 | COMMUNITY | Spring Grove |
| GARAGE SPACES | 6.0 | COUNTY | McHenry |
| STATUS | Active | PROPERTY TYPE(S) | Single Family |
| School District | Richmond-Burton Community High S |
|---|---|
| High School | Richmond-Burton Community High S |
| ADDITIONAL DETAILS | |
| AIR | Central Air |
|---|---|
| AIR CONDITIONING | Yes |
| APPLIANCES | Dishwasher, Dryer, Microwave, Range, Range Hood, Refrigerator, Washer |
| AREA | Spring Grove |
| BARN/EQUESTRIAN | Yes |
| BASEMENT | Full, Unfinished, Yes |
| CONSTRUCTION | Fiber Cement |
| GARAGE | Attached Garage, Yes |
| HEAT | Forced Air, Natural Gas |
| INTERIOR | Open Floorplan, Pantry, Vaulted Ceiling(s), Walk-In Closet(s) |
| LOT | 10 acre(s) |
| LOT DIMENSIONS | 330 X 1266 X 330 X 1267 |
| PARKING | Garage Door Opener, Garage, Attached |
| SEWER | Septic Tank |
| TAXES | 12314.96 |
| WATER | Well |
MORTGAGE CALCULATOR
TOTAL MONTHLY PAYMENT
0
P
I
*Estimate only
| SATELLITE VIEW |
| / | |
We respect your online privacy and will never spam you. By submitting this form with your telephone number
you are consenting for Humderto
Garcia to contact you even if your name is on a Federal or State
"Do not call List".
Listed with Century 21 Integra
The data relating to real estate for sale on this web site comes in part from the Broker ReciprocitySM Program of MRED. All real estate listings are marked with the Broker ReciprocitySM logo or the MRED Broker ReciprocitySM thumbnail logo (a little black house) and detailed information about them includes the name of the listing brokers.
The broker providing these data believes them to be correct, but advises interested parties to confirm them before relying on them in a purchase decision.
Copyright 2026 MRED. All rights reserved.

The broker providing these data believes them to be correct, but advises interested parties to confirm them before relying on them in a purchase decision.
Copyright 2026 MRED. All rights reserved.
This IDX solution is (c) Diverse Solutions 2026.