|
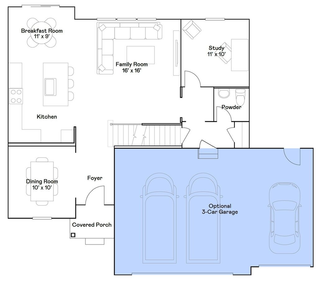
SPECIAL FINANCING OFFERS AVAILABLE! READY FOR MARCH DELIVERY! Homesite #0021. Discover the elegance and thoughtful design of the Biscayne plan-an inspired layout that redefines modern living. Just off the foyer, a formal dining room offers a welcoming space for special gatherings and everyday meals alike. From there, the home opens to an inviting first floor where the kitchen, family room, and breakfast room flow together seamlessly, creating a perfect backdrop for daily life and entertaining. Complementing this open-concept design, a private study on the main level offers a quiet retreat for work or reading. The heart of the home shines with a large center island, stylish quartz countertops, extensive cabinetry, and stainless steel appliances-all enhanced with luxury vinyl plank flooring, energy-efficient LED lighting, and refined finishes that radiate warmth and contemporary charm. Ascend to the second floor to find a welcoming loft space-a versatile area perfect for a homework zone, play nook, or casual lounge. The luxurious owner's suite serves as a serene escape, featuring a generous walk-in closet and a spa-inspired en-suite bathroom. Two additional bedrooms share a well-appointed full bathroom, providing comfort and flexibility for family or guests. A convenient second-floor laundry room adds practical ease to your routine. For added convenience, a half bath on the main floor ensures easy access for visitors. This plan is completed by thoughtful details, such as a three-car garage and stylish, functional finishes throughout. Exterior will be Espresso color vinyl siding with Benton color brick. (pic for reference ONLY) *Photos are not this actual home* The homesite is located near a beautiful pond. Nestled in a beautifully planned community, Algonquin Meadows offers a variety of thoughtfully designed single-family homes, traditional townhomes, and urban townhomes - all set among serene green spaces and tranquil ponds. Winding streets, cul-de-sacs, and walking paths create a peaceful neighborhood atmosphere that feels private, yet perfectly connected. Just minutes away, charming downtown Algonquin awaits with scenic riverfront parks, fishing spots, and a vibrant local culture. You'll enjoy convenient access to premier destinations like Northwestern Medicine, top-rated golf courses, and fitness centers such as Lifetime Fitness. Located right off the Randall Road corridor, you're surrounded by some of the area's best shopping and dining - including Trader Joe's, Cooper's Hawk, Target, Costco, and Algonquin Commons. Whether you're looking for daily essentials or a relaxing night out, everything you need is within easy reach. Come home to Algonquin Meadows - where natural beauty, community charm, and modern convenience meet.
| DAYS ON MARKET | 38 | LAST UPDATED | 4/7/2026 |
|---|---|---|---|
| TRACT | Algonquin Meadows | YEAR BUILT | 2026 |
| COMMUNITY | Algonquin | GARAGE SPACES | 3.0 |
| COUNTY | Kane | STATUS | Active |
| PROPERTY TYPE(S) | Single Family |
| School District | H D Jacobs High School |
|---|---|
| Elementary School | Westfield Community School |
| Jr. High School | Westfield Community School |
| High School | H D Jacobs High School |
| PRICE HISTORY | |
| Prior to Mar 31, '26 | $602,340 |
|---|---|
| Mar 31, '26 - Apr 1, '26 | $584,340 |
| Apr 1, '26 - Apr 7, '26 | $587,340 |
| Apr 7, '26 - Today | $584,340 |
| ADDITIONAL DETAILS | |
| AIR | Central Air |
|---|---|
| AIR CONDITIONING | Yes |
| APPLIANCES | Dishwasher, Disposal, Microwave, Range, Stainless Steel Appliance(s) |
| AREA | Algonquin |
| BASEMENT | Full, Unfinished, Yes |
| CONSTRUCTION | Brick, Vinyl Siding |
| GARAGE | Attached Garage, Yes |
| HEAT | Forced Air, Natural Gas |
| INTERIOR | Entrance Foyer |
| LOT | 0 |
| LOT DIMENSIONS | 10427 |
| PARKING | Asphalt, Garage Door Opener, Attached, Garage |
| SEWER | Public Sewer |
| SUBDIVISION | Algonquin Meadows |
| WATER | Public |
MORTGAGE CALCULATOR
TOTAL MONTHLY PAYMENT
0
P
I
*Estimate only
| SATELLITE VIEW |
| / | |
We respect your online privacy and will never spam you. By submitting this form with your telephone number
you are consenting for Humderto
Garcia to contact you even if your name is on a Federal or State
"Do not call List".
Listed with HomeSmart Connect LLC
The data relating to real estate for sale on this web site comes in part from the Broker ReciprocitySM Program of MRED. All real estate listings are marked with the Broker ReciprocitySM logo or the MRED Broker ReciprocitySM thumbnail logo (a little black house) and detailed information about them includes the name of the listing brokers.
The broker providing these data believes them to be correct, but advises interested parties to confirm them before relying on them in a purchase decision.
Copyright 2026 MRED. All rights reserved.

The broker providing these data believes them to be correct, but advises interested parties to confirm them before relying on them in a purchase decision.
Copyright 2026 MRED. All rights reserved.
This IDX solution is (c) Diverse Solutions 2026.