|
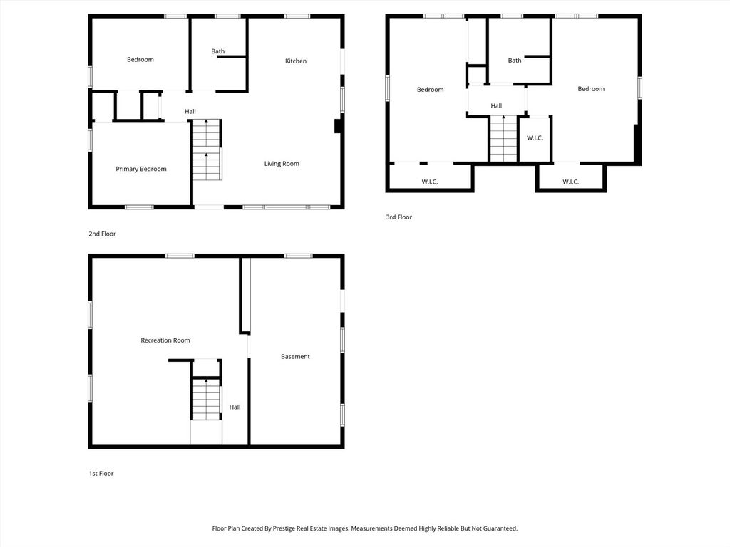
Welcome to 3719 211th Place in Matteson, a truly move-in ready home that combines stylish updates, functional space, and exceptional care throughout. Immaculately maintained and beautifully decorated, this home offers comfortable living with modern finishes and a flexible layout designed for today's lifestyle. The main level features beautiful hardwood floors and a timeless open-concept kitchen complete with granite countertops, cherry cabinetry, and a large island with custom lighting and seating for four, perfect for everyday living and entertaining. Two spacious bedrooms and an updated full bathroom complete the first floor. Upstairs, you'll find two generously sized bedrooms and an additional full bath, providing ideal space for family, guests, or home office needs. The finished basement expands the living area with an L-shaped family room plus a large laundry and storage space. Exterior access from the basement leads directly to the side drive and the yard. Step outside to a huge backyard featuring a newer privacy fence and plenty of space for outdoor enjoyment, gardening, or summer gatherings. Relax and entertain on the patio while enjoying your sheltered oasis. Conveniently located near parks, shopping, dining, and major commuter routes, this home offers space, updates, and move-in-ready convenience in a desirable Matteson neighborhood. Interior pictures coming soon.
| DAYS ON MARKET | 31 | LAST UPDATED | 3/15/2026 |
|---|---|---|---|
| YEAR BUILT | 1951 | COMMUNITY | Matteson |
| GARAGE SPACES | 2.0 | COUNTY | Cook |
| STATUS | Conditional | PROPERTY TYPE(S) | Single Family |
| ADDITIONAL DETAILS | |
| AIR | Central Air |
|---|---|
| AIR CONDITIONING | Yes |
| AREA | Matteson |
| BASEMENT | Full, Partially Finished, Yes |
| CONSTRUCTION | Brick, Vinyl Siding |
| GARAGE | Yes |
| HEAT | Forced Air, Natural Gas |
| LOT | 6708 sq ft |
| LOT DIMENSIONS | 39x57x71x54x125 |
| PARKING | Detached, Garage |
| SEWER | Public Sewer |
| TAXES | 5901 |
MORTGAGE CALCULATOR
TOTAL MONTHLY PAYMENT
0
P
I
*Estimate only
| SATELLITE VIEW |
| / | |
We respect your online privacy and will never spam you. By submitting this form with your telephone number
you are consenting for Humderto
Garcia to contact you even if your name is on a Federal or State
"Do not call List".
Listed with RE/MAX 10 in the Park
The data relating to real estate for sale on this web site comes in part from the Broker ReciprocitySM Program of MRED. All real estate listings are marked with the Broker ReciprocitySM logo or the MRED Broker ReciprocitySM thumbnail logo (a little black house) and detailed information about them includes the name of the listing brokers.
The broker providing these data believes them to be correct, but advises interested parties to confirm them before relying on them in a purchase decision.
Copyright 2026 MRED. All rights reserved.

The broker providing these data believes them to be correct, but advises interested parties to confirm them before relying on them in a purchase decision.
Copyright 2026 MRED. All rights reserved.
This IDX solution is (c) Diverse Solutions 2026.