|
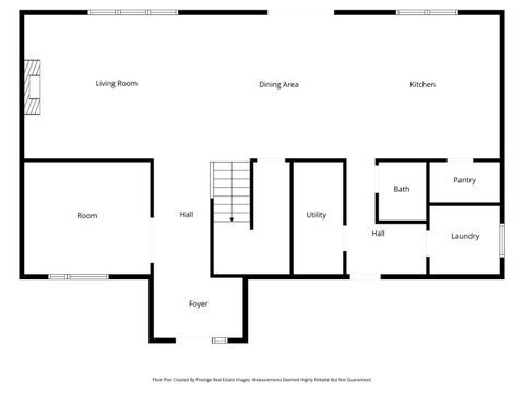
New construction. Never occupied. Master bedroom with Master bath and walk in closet. Three bedrooms with double closets each. Real hardwood flooring throughout. Spacy master bath with double shower. Study room could be 1st floor bedroom. All baths ceramic flooring and quartz counters. Skylight in full bath, double sink and quartz surround oversized tub. Top of the line kitchen fully equipped with SS appliances with large pantry and wine cooler included. Oversized kitchen island with build in Sharp microwave and wine cooler. Decorative electric fireplace in family room. 19 ft foyer and the oak stairway to the second floor with matching landing. 1st floor ceiling 10 ft. Sliding door to 20x16 patio. Two laundry rooms with a set of Samsung washer and dryer -1st floor. Separate utility room with American Standard zoned furnace and tankless hot water heater. Fire protection sprinklers system throughout. Entire property prewired and ready for security system. Sump pump and Radon gas vent installed as required by city code. Three car attached garage with unique soundless electric door openers. The garage is equipped with electric car charging outlet. Casement high energy efficiency windows throughout. Upgraded all doors and locks. The foundation built in compliance with FEMA requirements under inspection of the city of Justice engineer and licensed flood elevation engineering company.
| DAYS ON MARKET | 20 | LAST UPDATED | 3/17/2026 |
|---|---|---|---|
| YEAR BUILT | 2025 | COMMUNITY | Justice |
| GARAGE SPACES | 3.0 | COUNTY | Cook |
| STATUS | Conditional | PROPERTY TYPE(S) | Single Family |
| School District | Argo Community High School |
|---|---|
| High School | Argo Community High School |
| ADDITIONAL DETAILS | |
| AIR | Ceiling Fan(s), Central Air |
|---|---|
| AIR CONDITIONING | Yes |
| APPLIANCES | Dishwasher, Disposal, Dryer, ENERGY STAR Qualified Appliances, Gas Oven, Microwave, Range, Refrigerator, Stainless Steel Appliance(s), Washer, Wine Refrigerator |
| AREA | Justice |
| BASEMENT | Crawl Space, Sump Pump |
| CONSTRUCTION | Aluminum Siding, Brick, Frame |
| FIREPLACE | Yes |
| GARAGE | Attached Garage, Yes |
| HEAT | Natural Gas |
| INTERIOR | Cathedral Ceiling(s), Entrance Foyer, Granite Counters, Pantry, Walk-In Closet(s) |
| LOT | 0 |
| LOT DIMENSIONS | 65X135 |
| PARKING | Asphalt, Garage Door Opener, Attached, Garage |
| SEWER | Public Sewer |
| STYLE | Contemporary |
| TAXES | 1574.44 |
MORTGAGE CALCULATOR
TOTAL MONTHLY PAYMENT
0
P
I
*Estimate only
| SATELLITE VIEW |
| / | |
We respect your online privacy and will never spam you. By submitting this form with your telephone number
you are consenting for Humderto
Garcia to contact you even if your name is on a Federal or State
"Do not call List".
Listed with Fleet Realty Inc.
The data relating to real estate for sale on this web site comes in part from the Broker ReciprocitySM Program of MRED. All real estate listings are marked with the Broker ReciprocitySM logo or the MRED Broker ReciprocitySM thumbnail logo (a little black house) and detailed information about them includes the name of the listing brokers.
The broker providing these data believes them to be correct, but advises interested parties to confirm them before relying on them in a purchase decision.
Copyright 2026 MRED. All rights reserved.

The broker providing these data believes them to be correct, but advises interested parties to confirm them before relying on them in a purchase decision.
Copyright 2026 MRED. All rights reserved.
This IDX solution is (c) Diverse Solutions 2026.