|
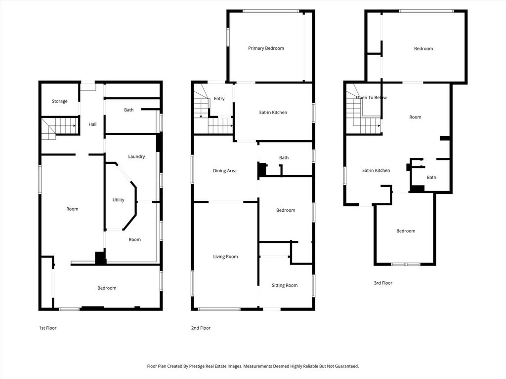
Welcome to Dunning! This single family home has tons of space and even more potential. You can either purchase as is and make it your own or maybe you are looking to update and build the equity. Maybe you're an investor looking for a good deal. This has it all. 3 floors of possible living space. The main floor has a formal living room, dining room, 2 bedrooms, kitchen, full bathroomm and huge mudroom as soon as you walk in. The Second floor offers an independant in law arrangement with a 2nd kitchen, 2 bedrooms and full bathroom. The basement has a large space as well that includes a bathroom, bedroom and what was a kitchen at some point. Like I said tons of space! Your new home lays on a larger than normal Chicago 40 ft wide lot with a nice size backyard, 2 car garage and 2 more parking spaces next it. Located in one of the most sought after neighborhoods in Chicago close to parks, schools, shopping (The Hip mall) and dining. Being Sold AS-IS
| DAYS ON MARKET | 11 | LAST UPDATED | 3/14/2026 |
|---|---|---|---|
| YEAR BUILT | 1913 | COMMUNITY | CHI - Dunning |
| GARAGE SPACES | 2.0 | COUNTY | Cook |
| STATUS | Conditional | PROPERTY TYPE(S) | Single Family |
| ADDITIONAL DETAILS | |
| AIR | Central Air, Window Unit(s) |
|---|---|
| AIR CONDITIONING | Yes |
| AREA | CHI - Dunning |
| BASEMENT | Full, Partially Finished, Yes |
| CONSTRUCTION | Vinyl Siding |
| GARAGE | Yes |
| HEAT | Forced Air, Natural Gas, Radiant, Steam |
| LOT | 0 |
| LOT DIMENSIONS | 40x125 |
| PARKING | Detached, Garage |
| SEWER | Public Sewer |
| TAXES | 2796.48 |
| WATER | Public |
MORTGAGE CALCULATOR
TOTAL MONTHLY PAYMENT
0
P
I
*Estimate only
| SATELLITE VIEW |
| / | |
We respect your online privacy and will never spam you. By submitting this form with your telephone number
you are consenting for Humderto
Garcia to contact you even if your name is on a Federal or State
"Do not call List".
Listed with 606 Brokers LLC
The data relating to real estate for sale on this web site comes in part from the Broker ReciprocitySM Program of MRED. All real estate listings are marked with the Broker ReciprocitySM logo or the MRED Broker ReciprocitySM thumbnail logo (a little black house) and detailed information about them includes the name of the listing brokers.
The broker providing these data believes them to be correct, but advises interested parties to confirm them before relying on them in a purchase decision.
Copyright 2026 MRED. All rights reserved.

The broker providing these data believes them to be correct, but advises interested parties to confirm them before relying on them in a purchase decision.
Copyright 2026 MRED. All rights reserved.
This IDX solution is (c) Diverse Solutions 2026.