|
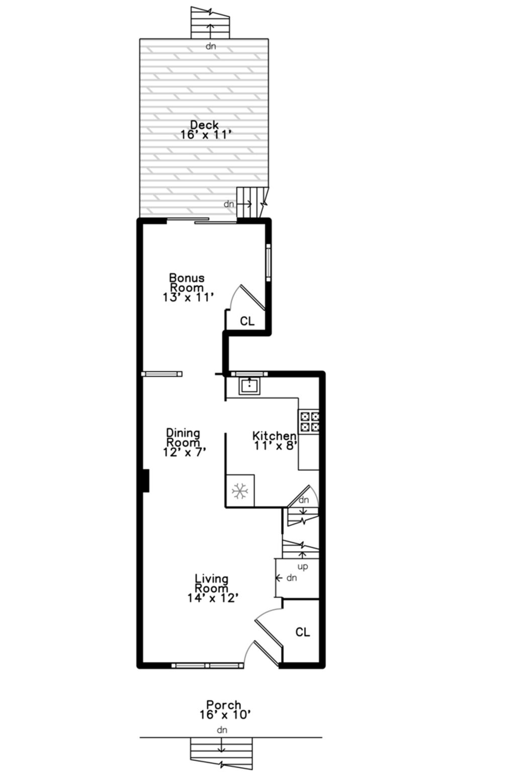
Charming brick townhouse in Chrysler Village: 2 bedrooms, 1 bath, plus a rear addition with a sliding glass door that opens to a wood deck, private yard and 1-car garage. Unfinished basement offers easy potential for a family room and the attic provides extra storage. Recent updates include a ~2-year-old furnace and less-than-1-year-old roof and water heater; interior has been freshly painted. Bedrooms have hardwood flooring under the tile. Features central A/C and basement laundry. Shared front porch. Selling AS-IS - great value-add opportunity in a desirable neighborhood. Lawler Park just a few blocks east of the home.
| DAYS ON MARKET | 6 | LAST UPDATED | 3/12/2026 |
|---|---|---|---|
| YEAR BUILT | 1943 | COMMUNITY | CHI - Clearing |
| GARAGE SPACES | 1.0 | COUNTY | Cook |
| STATUS | Active | PROPERTY TYPE(S) | Condo/Townhouse/Co-Op |
| School District | Kennedy High School |
|---|---|
| Elementary School | Grimes Elementary School |
| Jr. High School | Grimes Elementary School |
| High School | Kennedy High School |
| ADDITIONAL DETAILS | |
| AIR | Central Air |
|---|---|
| AIR CONDITIONING | Yes |
| APPLIANCES | Dryer, Range, Refrigerator, Washer |
| AREA | CHI - Clearing |
| BASEMENT | Full, Unfinished, Yes |
| CONSTRUCTION | Brick, Vinyl Siding |
| GARAGE | Yes |
| HEAT | Forced Air, Natural Gas |
| LOT | 0 |
| LOT DIMENSIONS | 16 X 125 |
| PARKING | Detached, Garage |
| SEWER | Public Sewer |
| STORIES | 2 |
| TAXES | 713.28 |
MORTGAGE CALCULATOR
TOTAL MONTHLY PAYMENT
0
P
I
*Estimate only
| SATELLITE VIEW |
| / | |
We respect your online privacy and will never spam you. By submitting this form with your telephone number
you are consenting for Humderto
Garcia to contact you even if your name is on a Federal or State
"Do not call List".
Listed with Jameson Sotheby's Intl Realty
The data relating to real estate for sale on this web site comes in part from the Broker ReciprocitySM Program of MRED. All real estate listings are marked with the Broker ReciprocitySM logo or the MRED Broker ReciprocitySM thumbnail logo (a little black house) and detailed information about them includes the name of the listing brokers.
The broker providing these data believes them to be correct, but advises interested parties to confirm them before relying on them in a purchase decision.
Copyright 2026 MRED. All rights reserved.

The broker providing these data believes them to be correct, but advises interested parties to confirm them before relying on them in a purchase decision.
Copyright 2026 MRED. All rights reserved.
This IDX solution is (c) Diverse Solutions 2026.