|
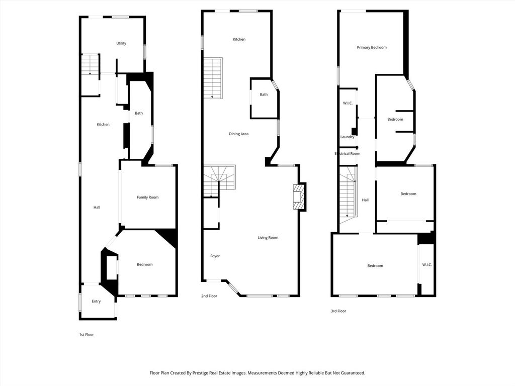
Exceptional updated Greystone with a duplexed owner's residence, and an income-producing garden apartment. Zoned as a legal 2-unit but currently used as a single family residence. Thoughtfully renovated throughout, this distinctive property offers the perfect blend of classic Chicago architecture and refined modern living. The main residence features oak flooring, expansive sun-filled living spaces, a formal dining room, and a stunning designer kitchen appointed with quartz countertops, a large island with sink, stainless steel appliances, wine refrigerator, and abundant pantry storage. The kitchen opens to a private wood deck, ideal for everyday enjoyment and entertaining alike. The elegant winding oak staircase with overhead skylight leads to the second level, where you'll find three spacious bedrooms with Oak flooring throughout, second-floor laundry, and a spa-inspired bath complete with double vanity, separate shower, and whirlpool tub. The primary suite is a true retreat, featuring a walk-in closet and French doors opening to a private balcony overlooking the backyard. The duplex also features a separate furnace and central air systems for the main and second levels for comfort and efficiency. The garden unit offers private front and rear access -making it ideal for related living or supplemental rental income. It features a cozy kitchen complete with appliances, a large living room with combined eating area, one bedroom, a spacious bathroom with sleek contemporary finishes, and a thoughtfully designed layout for both comfort and style. Separate laundry and utility room. The outdoor amenities include a wood deck leading to a brick paver patio, an enclosed yard with well a maintained lawn perfect for pets or relaxing. A garage with large overhead door with remote access connected to a covered carport that accommodates 4 vehicles. Conveniently located near I-290, the United Center, UIC Medical District, shopping, dining, and views of the Chicago downtown skyline. This is a rare opportunity for homeowners and investors alike. Schedule a private tour today!
| DAYS ON MARKET | 6 | LAST UPDATED | 3/10/2026 |
|---|---|---|---|
| YEAR BUILT | 1885 | COMMUNITY | CHI - Near West Side |
| GARAGE SPACES | 2.0 | COUNTY | Cook |
| STATUS | Active | PROPERTY TYPE(S) | Single Family |
| ADDITIONAL DETAILS | |
| AIR | Central Air |
|---|---|
| AIR CONDITIONING | Yes |
| AREA | CHI - Near West Side |
| BASEMENT | Finished, Full, Yes |
| CONSTRUCTION | Brick, Stone |
| EXTERIOR | Balcony |
| GARAGE | Yes |
| HEAT | Natural Gas |
| INTERIOR | In-Law Floorplan, Walk-In Closet(s) |
| LOT | 3433 sq ft |
| LOT DIMENSIONS | 25X130 |
| PARKING | Garage Door Opener, Carport, Detached, Garage |
| SEWER | Public Sewer |
| TAXES | 9216.58 |
MORTGAGE CALCULATOR
TOTAL MONTHLY PAYMENT
0
P
I
*Estimate only
| SATELLITE VIEW |
| / | |
We respect your online privacy and will never spam you. By submitting this form with your telephone number
you are consenting for Humderto
Garcia to contact you even if your name is on a Federal or State
"Do not call List".
Listed with RE/MAX Mi Casa
The data relating to real estate for sale on this web site comes in part from the Broker ReciprocitySM Program of MRED. All real estate listings are marked with the Broker ReciprocitySM logo or the MRED Broker ReciprocitySM thumbnail logo (a little black house) and detailed information about them includes the name of the listing brokers.
The broker providing these data believes them to be correct, but advises interested parties to confirm them before relying on them in a purchase decision.
Copyright 2026 MRED. All rights reserved.

The broker providing these data believes them to be correct, but advises interested parties to confirm them before relying on them in a purchase decision.
Copyright 2026 MRED. All rights reserved.
This IDX solution is (c) Diverse Solutions 2026.